Get the free BUILDING 840 RESTROOM RENOVATION - North Orange County ...
Show details
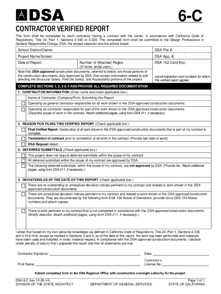
BUILDING 840 RESTROOM RENOVATION Fullerton College321 East Chapman Avenue Fullerton, CA 928322095August 23rd, 2021BUILDING 840 RESTROOM RENOVATION 08/23/2021Table of Contents 1. 2. 3. 4. Scope of
We are not affiliated with any brand or entity on this form
Get, Create, Make and Sign building 840 restroom renovation
Edit your building 840 restroom renovation form online
Type text, complete fillable fields, insert images, highlight or blackout data for discretion, add comments, and more.
Add your legally-binding signature
Draw or type your signature, upload a signature image, or capture it with your digital camera.
Share your form instantly
Email, fax, or share your building 840 restroom renovation form via URL. You can also download, print, or export forms to your preferred cloud storage service.
How to edit building 840 restroom renovation online
Use the instructions below to start using our professional PDF editor:
1
Log in. Click Start Free Trial and create a profile if necessary.
2
Upload a document. Select Add New on your Dashboard and transfer a file into the system in one of the following ways: by uploading it from your device or importing from the cloud, web, or internal mail. Then, click Start editing.
3
Edit building 840 restroom renovation. Add and change text, add new objects, move pages, add watermarks and page numbers, and more. Then click Done when you're done editing and go to the Documents tab to merge or split the file. If you want to lock or unlock the file, click the lock or unlock button.
4
Get your file. Select the name of your file in the docs list and choose your preferred exporting method. You can download it as a PDF, save it in another format, send it by email, or transfer it to the cloud.
With pdfFiller, dealing with documents is always straightforward.
Uncompromising security for your PDF editing and eSignature needs
Your private information is safe with pdfFiller. We employ end-to-end encryption, secure cloud storage, and advanced access control to protect your documents and maintain regulatory compliance.
How to fill out building 840 restroom renovation
How to fill out building 840 restroom renovation
01
Assess the current condition of the restroom in building 840
02
Create a detailed plan for the renovation, including budget and timeline
03
Obtain necessary permits and approvals for the renovation project
04
Hire contractors and subcontractors to carry out the renovation work
05
Have regular checkpoints to ensure the renovation is progressing as planned
06
Inspect the completed renovation to ensure it meets quality standards
07
Make any necessary final touches or adjustments before reopening the restroom
Who needs building 840 restroom renovation?
01
Building 840 restroom renovation may be needed by the building management or owners to improve the restroom facilities for occupants and visitors.
02
Restroom renovation may also be necessary if the current facilities are outdated, damaged, or not meeting sanitation or accessibility standards.
Fill
form
: Try Risk Free
For pdfFiller’s FAQs
Below is a list of the most common customer questions. If you can’t find an answer to your question, please don’t hesitate to reach out to us.
How do I make edits in building 840 restroom renovation without leaving Chrome?
Download and install the pdfFiller Google Chrome Extension to your browser to edit, fill out, and eSign your building 840 restroom renovation, which you can open in the editor with a single click from a Google search page. Fillable documents may be executed from any internet-connected device without leaving Chrome.
Can I sign the building 840 restroom renovation electronically in Chrome?
Yes, you can. With pdfFiller, you not only get a feature-rich PDF editor and fillable form builder but a powerful e-signature solution that you can add directly to your Chrome browser. Using our extension, you can create your legally-binding eSignature by typing, drawing, or capturing a photo of your signature using your webcam. Choose whichever method you prefer and eSign your building 840 restroom renovation in minutes.
Can I edit building 840 restroom renovation on an iOS device?
Create, modify, and share building 840 restroom renovation using the pdfFiller iOS app. Easy to install from the Apple Store. You may sign up for a free trial and then purchase a membership.
What is building 840 restroom renovation?
Building 840 restroom renovation is a project to renovate the restroom facilities in building 840.
Who is required to file building 840 restroom renovation?
The owner or manager of building 840 is required to file for the restroom renovation.
How to fill out building 840 restroom renovation?
The building owner or manager can fill out the renovation request form with all the necessary details.
What is the purpose of building 840 restroom renovation?
The purpose of building 840 restroom renovation is to improve the restroom facilities for the occupants of the building.
What information must be reported on building 840 restroom renovation?
The renovation request must include details about the current restroom facilities, proposed changes, budget, and timeline.
Fill out your building 840 restroom renovation online with pdfFiller!
pdfFiller is an end-to-end solution for managing, creating, and editing documents and forms in the cloud. Save time and hassle by preparing your tax forms online.
Building 840 Restroom Renovation is not the form you're looking for?Search for another form here.
Relevant keywords
Related Forms
If you believe that this page should be taken down, please follow our DMCA take down process
here
.
This form may include fields for payment information. Data entered in these fields is not covered by PCI DSS compliance.