
Get the free Viewing Copy
Show details
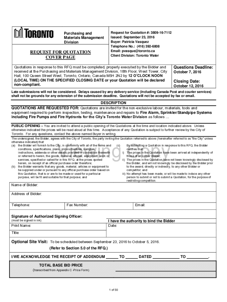
Purchasing and Materials Management DivisionREQUEST FOR QUOTATION COVER PAGERequest for Quotation #: 3809167112 Issued: September 23, 2016, Buyer: Patricia Vasquez Telephone No.: (416) 3926808 Email:
We are not affiliated with any brand or entity on this form
Get, Create, Make and Sign viewing copy

Edit your viewing copy form online
Type text, complete fillable fields, insert images, highlight or blackout data for discretion, add comments, and more.

Add your legally-binding signature
Draw or type your signature, upload a signature image, or capture it with your digital camera.

Share your form instantly
Email, fax, or share your viewing copy form via URL. You can also download, print, or export forms to your preferred cloud storage service.
Editing viewing copy online
Follow the steps down below to benefit from a competent PDF editor:
1
Register the account. Begin by clicking Start Free Trial and create a profile if you are a new user.
2
Prepare a file. Use the Add New button. Then upload your file to the system from your device, importing it from internal mail, the cloud, or by adding its URL.
3
Edit viewing copy. Add and replace text, insert new objects, rearrange pages, add watermarks and page numbers, and more. Click Done when you are finished editing and go to the Documents tab to merge, split, lock or unlock the file.
4
Save your file. Select it in the list of your records. Then, move the cursor to the right toolbar and choose one of the available exporting methods: save it in multiple formats, download it as a PDF, send it by email, or store it in the cloud.
pdfFiller makes working with documents easier than you could ever imagine. Register for an account and see for yourself!
Uncompromising security for your PDF editing and eSignature needs
Your private information is safe with pdfFiller. We employ end-to-end encryption, secure cloud storage, and advanced access control to protect your documents and maintain regulatory compliance.
How to fill out viewing copy

How to fill out viewing copy
01
Take out the viewing copy form.
02
Fill in the required details such as title of the piece, date, time, venue, and contact information.
03
Ensure that all information provided is accurate and up to date.
04
Double check the form for any errors before submitting.
Who needs viewing copy?
01
Artists who want their work to be viewed by potential buyers or clients.
02
Gallery owners who want to showcase artworks to visitors.
03
Event organizers who need to display information about upcoming shows or exhibitions.
Fill
form
: Try Risk Free
For pdfFiller’s FAQs
Below is a list of the most common customer questions. If you can’t find an answer to your question, please don’t hesitate to reach out to us.
How can I send viewing copy to be eSigned by others?
When your viewing copy is finished, send it to recipients securely and gather eSignatures with pdfFiller. You may email, text, fax, mail, or notarize a PDF straight from your account. Create an account today to test it.
How do I fill out the viewing copy form on my smartphone?
On your mobile device, use the pdfFiller mobile app to complete and sign viewing copy. Visit our website (https://edit-pdf-ios-android.pdffiller.com/) to discover more about our mobile applications, the features you'll have access to, and how to get started.
How do I edit viewing copy on an Android device?
Yes, you can. With the pdfFiller mobile app for Android, you can edit, sign, and share viewing copy on your mobile device from any location; only an internet connection is needed. Get the app and start to streamline your document workflow from anywhere.
What is viewing copy?
Viewing copy is a copy of a film, TV show, or other media content that is submitted to regulators or authorities for review and approval before it can be distributed or broadcast.
Who is required to file viewing copy?
Production companies, filmmakers, or distributors are typically required to file viewing copy for regulatory purposes.
How to fill out viewing copy?
Viewing copy is usually filled out with details about the content, such as title, duration, language, intended audience, and any other relevant information requested by the authorities.
What is the purpose of viewing copy?
The purpose of viewing copy is to ensure that the content complies with regulations and standards regarding its distribution or broadcast.
What information must be reported on viewing copy?
Information such as title, duration, language, intended audience, and any other relevant details requested by the authorities must be reported on viewing copy.
Fill out your viewing copy online with pdfFiller!
pdfFiller is an end-to-end solution for managing, creating, and editing documents and forms in the cloud. Save time and hassle by preparing your tax forms online.

Viewing Copy is not the form you're looking for?Search for another form here.
Relevant keywords
Related Forms
If you believe that this page should be taken down, please follow our DMCA take down process
here
.
This form may include fields for payment information. Data entered in these fields is not covered by PCI DSS compliance.