
Get the free Canandaigua Town Supervisor, 5440 State Route ... - MapQuest
Show details
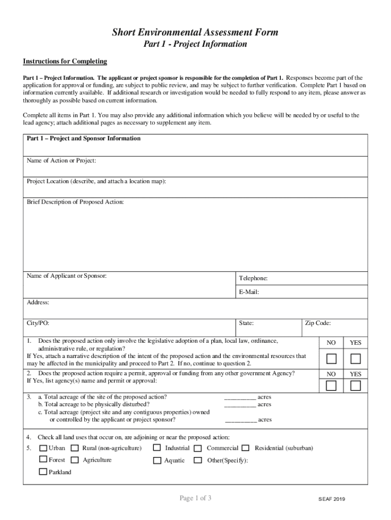
G y TTT|at 5440 Routes 5 & 20 West Canandaigua, NY 14424 Phone: (585) 3941120 / Fax: (585) 3949476NOTICE TO ALL PLANNING BOARD APPLICANTS FOR PRELIMINARY SUBDIVISION PHASED Projects applicant is responsible
We are not affiliated with any brand or entity on this form
Get, Create, Make and Sign canandaigua town supervisor 5440

Edit your canandaigua town supervisor 5440 form online
Type text, complete fillable fields, insert images, highlight or blackout data for discretion, add comments, and more.

Add your legally-binding signature
Draw or type your signature, upload a signature image, or capture it with your digital camera.

Share your form instantly
Email, fax, or share your canandaigua town supervisor 5440 form via URL. You can also download, print, or export forms to your preferred cloud storage service.
How to edit canandaigua town supervisor 5440 online
To use the services of a skilled PDF editor, follow these steps below:
1
Log in. Click Start Free Trial and create a profile if necessary.
2
Upload a file. Select Add New on your Dashboard and upload a file from your device or import it from the cloud, online, or internal mail. Then click Edit.
3
Edit canandaigua town supervisor 5440. Add and replace text, insert new objects, rearrange pages, add watermarks and page numbers, and more. Click Done when you are finished editing and go to the Documents tab to merge, split, lock or unlock the file.
4
Save your file. Select it from your records list. Then, click the right toolbar and select one of the various exporting options: save in numerous formats, download as PDF, email, or cloud.
pdfFiller makes dealing with documents a breeze. Create an account to find out!
Uncompromising security for your PDF editing and eSignature needs
Your private information is safe with pdfFiller. We employ end-to-end encryption, secure cloud storage, and advanced access control to protect your documents and maintain regulatory compliance.
How to fill out canandaigua town supervisor 5440

How to fill out canandaigua town supervisor 5440
01
Obtain a copy of the Canandaigua Town Supervisor 5440 form.
02
Start by filling out your personal information accurately in the designated spaces.
03
Provide information about the specific town in Canandaigua that you are supervising.
04
Include details about your qualifications and experience that make you a suitable candidate for the position.
05
Double-check the form for any errors or missing information before submitting it.
Who needs canandaigua town supervisor 5440?
01
Individuals who are interested in running for the position of Canandaigua Town Supervisor.
02
The Canandaigua Town government officials who require this form for official documentation purposes.
Fill
form
: Try Risk Free
For pdfFiller’s FAQs
Below is a list of the most common customer questions. If you can’t find an answer to your question, please don’t hesitate to reach out to us.
How do I complete canandaigua town supervisor 5440 online?
Filling out and eSigning canandaigua town supervisor 5440 is now simple. The solution allows you to change and reorganize PDF text, add fillable fields, and eSign the document. Start a free trial of pdfFiller, the best document editing solution.
How do I fill out canandaigua town supervisor 5440 using my mobile device?
Use the pdfFiller mobile app to complete and sign canandaigua town supervisor 5440 on your mobile device. Visit our web page (https://edit-pdf-ios-android.pdffiller.com/) to learn more about our mobile applications, the capabilities you’ll have access to, and the steps to take to get up and running.
How do I complete canandaigua town supervisor 5440 on an Android device?
On an Android device, use the pdfFiller mobile app to finish your canandaigua town supervisor 5440. The program allows you to execute all necessary document management operations, such as adding, editing, and removing text, signing, annotating, and more. You only need a smartphone and an internet connection.
What is canandaigua town supervisor 5440?
Canandaigua Town Supervisor 5440 is a form used for reporting financial information by town supervisors in Canandaigua.
Who is required to file canandaigua town supervisor 5440?
Town supervisors in Canandaigua are required to file Canandaigua Town Supervisor 5440 form.
How to fill out canandaigua town supervisor 5440?
You can fill out Canandaigua Town Supervisor 5440 by providing accurate financial information as required on the form.
What is the purpose of canandaigua town supervisor 5440?
The purpose of Canandaigua Town Supervisor 5440 is to ensure transparency and accountability in financial reporting by town supervisors.
What information must be reported on canandaigua town supervisor 5440?
Information such as income, expenses, assets, and liabilities must be reported on Canandaigua Town Supervisor 5440.
Fill out your canandaigua town supervisor 5440 online with pdfFiller!
pdfFiller is an end-to-end solution for managing, creating, and editing documents and forms in the cloud. Save time and hassle by preparing your tax forms online.

Canandaigua Town Supervisor 5440 is not the form you're looking for?Search for another form here.
Relevant keywords
Related Forms
If you believe that this page should be taken down, please follow our DMCA take down process
here
.
This form may include fields for payment information. Data entered in these fields is not covered by PCI DSS compliance.