Form preview

Get the free Blog: RFP vs. IFB: What's the Difference? - BidNet

Get Form
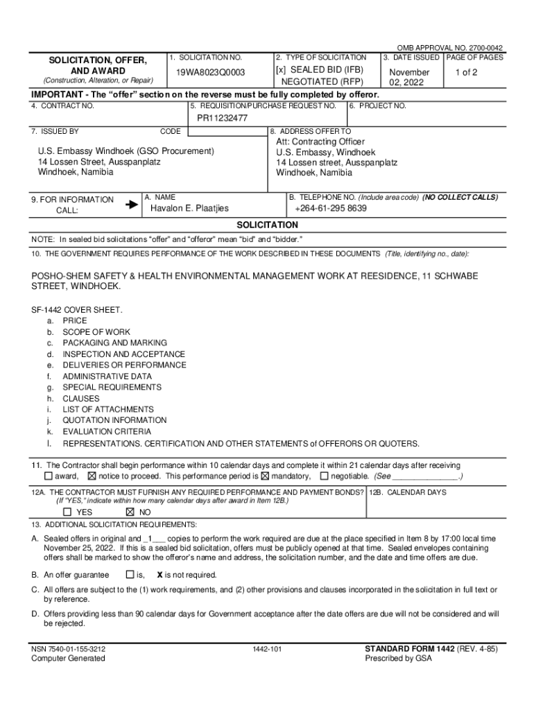
1. SOLICITATION NO.SOLICITATION, OFFER, AND AWARD2. TYPE OF SOLICITATION[x] SEALED BID (IF) NEGOTIATED (RFP) IMPORTANT The offer section on the reverse must be fully completed by offer or. 19WA8023Q0003(Construction,
We are not affiliated with any brand or entity on this form

Get, Create, Make and Sign blog rfp vs ifb

Edit
Edit your blog rfp vs ifb form online
Type text, complete fillable fields, insert images, highlight or blackout data for discretion, add comments, and more.
Add
Add your legally-binding signature
Draw or type your signature, upload a signature image, or capture it with your digital camera.
Share
Share your form instantly
Email, fax, or share your blog rfp vs ifb form via URL. You can also download, print, or export forms to your preferred cloud storage service.

Editing blog rfp vs ifb online

9.5
Ease of Setup
pdfFiller User Ratings on G2
9.0
Ease of Use
pdfFiller User Ratings on G2
Follow the guidelines below to benefit from a competent PDF editor:
1
Set up an account. If you are a new user, click Start Free Trial and establish a profile.
2
Prepare a file. Use the Add New button to start a new project. Then, using your device, upload your file to the system by importing it from internal mail, the cloud, or adding its URL.
3
Edit blog rfp vs ifb. Text may be added and replaced, new objects can be included, pages can be rearranged, watermarks and page numbers can be added, and so on. When you're done editing, click Done and then go to the Documents tab to combine, divide, lock, or unlock the file.
4
Get your file. Select your file from the documents list and pick your export method. You may save it as a PDF, email it, or upload it to the cloud.
With pdfFiller, it's always easy to work with documents. Check it out!

Uncompromising security for your PDF editing and eSignature needs

Your private information is safe with pdfFiller. We employ end-to-end encryption, secure cloud storage, and advanced access control to protect your documents and maintain regulatory compliance.
GDPR
AICPA SOC 2
PCI
HIPAA
CCPA
FDA

How to fill out blog rfp vs ifb

Illustration

How to fill out blog rfp vs ifb

01
Identify the specific requirements for the blog project
02
Create a detailed Request for Proposal (RFP) document outlining the project scope, objectives, timeline, budget, and evaluation criteria
03
Send the RFP to potential vendors or contractors for their proposals
04
Review and evaluate the proposals based on criteria such as experience, cost, and fit with project goals
05
Select a vendor and negotiate a contract

Who needs blog rfp vs ifb?

01
Companies or organizations looking to outsource their blog content creation and management
02
Individuals or businesses seeking specialized expertise and resources for their blog projects
Fill form : Try Risk Free
Users Most Likely To Recommend - Summer 2025
Grid Leader in Small-Business - Summer 2025
High Performer - Summer 2025
Regional Leader - Summer 2025
Easiest To Do Business With - Summer 2025
Best Meets Requirements- Summer 2025
Rate the form
4.6
Satisfied
24 Votes

For pdfFiller’s FAQs

Below is a list of the most common customer questions. If you can’t find an answer to your question, please don’t hesitate to reach out to us.

It’s easy with pdfFiller, a comprehensive online solution for professional document management. Access our extensive library of online forms (over 25M fillable forms are available) and locate the blog rfp vs ifb in a matter of seconds. Open it right away and start customizing it using advanced editing features.
With pdfFiller's add-on, you may upload, type, or draw a signature in Gmail. You can eSign your blog rfp vs ifb and other papers directly in your mailbox with pdfFiller. To preserve signed papers and your personal signatures, create an account.
Use the pdfFiller mobile app and complete your blog rfp vs ifb and other documents on your Android device. The app provides you with all essential document management features, such as editing content, eSigning, annotating, sharing files, etc. You will have access to your documents at any time, as long as there is an internet connection.
Blog RFP stands for Request for Proposal and IFB stands for Invitation for Bid. Blog RFP is used when a company wants to receive proposals from vendors or service providers, while IFB is used when a company wants to receive bids for a specific project or product.
Companies or organizations looking to procure goods or services are required to file Blog RFP or IFB depending on the procurement process they choose.
To fill out Blog RFP or IFB, companies need to provide detailed information about the project or product requirements, evaluation criteria, terms and conditions, and any other relevant information needed for vendors or bidders to submit their proposals or bids.
The purpose of Blog RFP and IFB is to solicit proposals or bids from vendors or bidders to fulfill the company's procurement needs in a transparent and competitive manner.
The information that must be reported on Blog RFP or IFB includes project requirements, evaluation criteria, terms and conditions, submission instructions, deadline, and any other relevant details.
Fill out your blog rfp vs ifb online with pdfFiller!

pdfFiller is an end-to-end solution for managing, creating, and editing documents and forms in the cloud. Save time and hassle by preparing your tax forms online.

Get started now
Form preview
If you believe that this page should be taken down, please follow our DMCA take down process here .
This form may include fields for payment information. Data entered in these fields is not covered by PCI DSS compliance.