
Get the free Part 1 Project and Sponsor Information
Show details
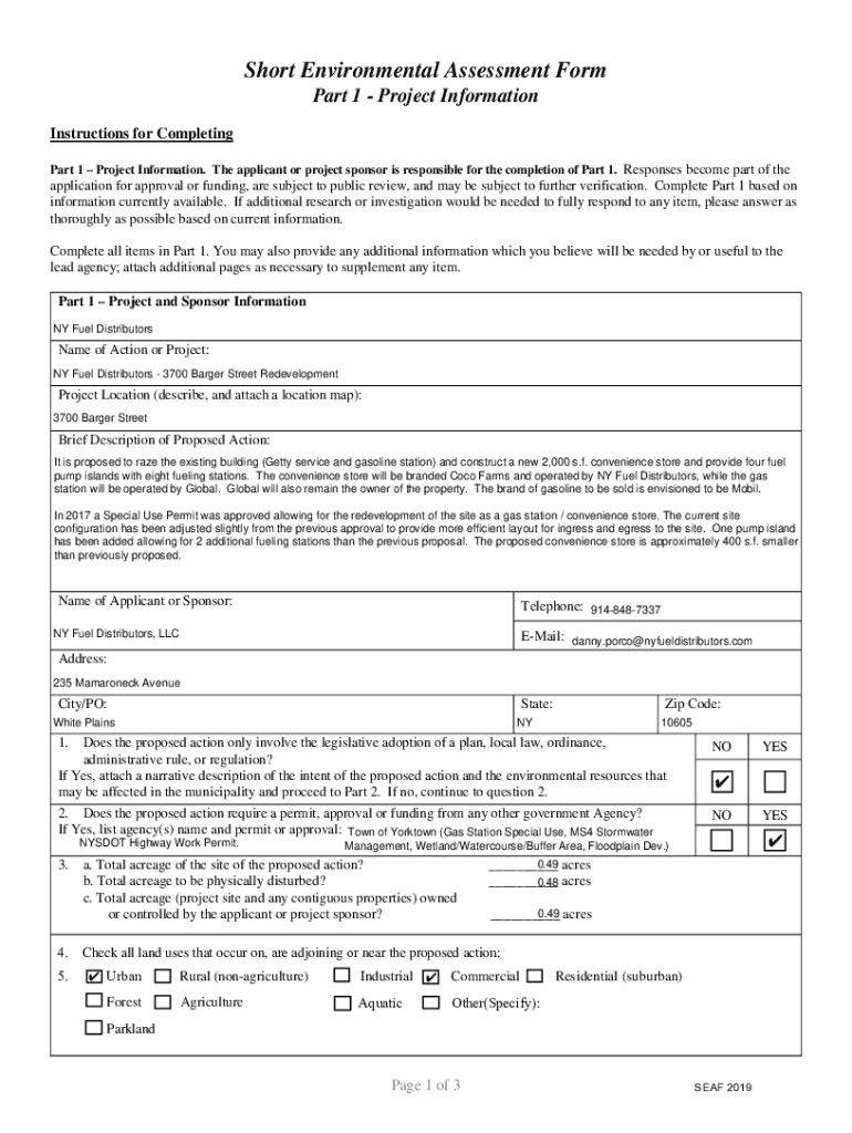
Short Environmental Assessment Form Part 1 Project Information Instructions for Completing Part 1 Project Information. The applicant or project sponsor is responsible for the completion of Part 1.
We are not affiliated with any brand or entity on this form
Get, Create, Make and Sign part 1 project and

Edit your part 1 project and form online
Type text, complete fillable fields, insert images, highlight or blackout data for discretion, add comments, and more.

Add your legally-binding signature
Draw or type your signature, upload a signature image, or capture it with your digital camera.

Share your form instantly
Email, fax, or share your part 1 project and form via URL. You can also download, print, or export forms to your preferred cloud storage service.
Editing part 1 project and online
To use our professional PDF editor, follow these steps:
1
Set up an account. If you are a new user, click Start Free Trial and establish a profile.
2
Prepare a file. Use the Add New button to start a new project. Then, using your device, upload your file to the system by importing it from internal mail, the cloud, or adding its URL.
3
Edit part 1 project and. Add and change text, add new objects, move pages, add watermarks and page numbers, and more. Then click Done when you're done editing and go to the Documents tab to merge or split the file. If you want to lock or unlock the file, click the lock or unlock button.
4
Save your file. Select it from your list of records. Then, move your cursor to the right toolbar and choose one of the exporting options. You can save it in multiple formats, download it as a PDF, send it by email, or store it in the cloud, among other things.
pdfFiller makes working with documents easier than you could ever imagine. Register for an account and see for yourself!
Uncompromising security for your PDF editing and eSignature needs
Your private information is safe with pdfFiller. We employ end-to-end encryption, secure cloud storage, and advanced access control to protect your documents and maintain regulatory compliance.
How to fill out part 1 project and

How to fill out part 1 project and
01
Read the instructions provided for the project form
02
Fill in your personal details accurately in the designated fields
03
Provide a thorough description of the project including goals, objectives, methods, and outcomes
04
Include any relevant documents or supporting materials as necessary
05
Review the completed form for any errors or missing information before submission
Who needs part 1 project and?
01
Students working on a research project
02
Professionals developing a new product
03
Grant applicants seeking funding for a specific initiative
Fill
form
: Try Risk Free
For pdfFiller’s FAQs
Below is a list of the most common customer questions. If you can’t find an answer to your question, please don’t hesitate to reach out to us.
How can I modify part 1 project and without leaving Google Drive?
You can quickly improve your document management and form preparation by integrating pdfFiller with Google Docs so that you can create, edit and sign documents directly from your Google Drive. The add-on enables you to transform your part 1 project and into a dynamic fillable form that you can manage and eSign from any internet-connected device.
How can I get part 1 project and?
The premium subscription for pdfFiller provides you with access to an extensive library of fillable forms (over 25M fillable templates) that you can download, fill out, print, and sign. You won’t have any trouble finding state-specific part 1 project and and other forms in the library. Find the template you need and customize it using advanced editing functionalities.
Can I edit part 1 project and on an iOS device?
Create, modify, and share part 1 project and using the pdfFiller iOS app. Easy to install from the Apple Store. You may sign up for a free trial and then purchase a membership.
What is part 1 project and?
Part 1 project is a document that outlines the initial stages of a project, including the scope, objectives, and expected outcomes.
Who is required to file part 1 project and?
Project managers or team leaders are typically required to file part 1 project.
How to fill out part 1 project and?
Part 1 project can be filled out by providing detailed information about the project goals, timeline, budget, and resources needed.
What is the purpose of part 1 project and?
The purpose of part 1 project is to establish a clear direction for the project and ensure that all stakeholders are on the same page.
What information must be reported on part 1 project and?
Information such as project goals, objectives, timelines, milestones, budget, and resources must be reported on part 1 project.
Fill out your part 1 project and online with pdfFiller!
pdfFiller is an end-to-end solution for managing, creating, and editing documents and forms in the cloud. Save time and hassle by preparing your tax forms online.

Part 1 Project And is not the form you're looking for?Search for another form here.
Relevant keywords
Related Forms
If you believe that this page should be taken down, please follow our DMCA take down process
here
.
This form may include fields for payment information. Data entered in these fields is not covered by PCI DSS compliance.