
Get the free SELLER'S PROPERTY CONDITION DISCLOSURE - LoopNet
Show details
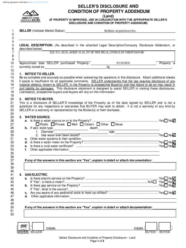
Dot loop signature verification: dtlp.us/ITc5lH9EPmkISELLERS DISCLOSURE AND CONDITION OF PROPERTY ADDENDUM (Land) (IF PROPERTY IS IMPROVED, USE IN CONJUNCTION WITH THE APPROPRIATE SELLERS DISCLOSURE
We are not affiliated with any brand or entity on this form
Get, Create, Make and Sign sellers property condition disclosure

Edit your sellers property condition disclosure form online
Type text, complete fillable fields, insert images, highlight or blackout data for discretion, add comments, and more.

Add your legally-binding signature
Draw or type your signature, upload a signature image, or capture it with your digital camera.

Share your form instantly
Email, fax, or share your sellers property condition disclosure form via URL. You can also download, print, or export forms to your preferred cloud storage service.
How to edit sellers property condition disclosure online
To use our professional PDF editor, follow these steps:
1
Check your account. In case you're new, it's time to start your free trial.
2
Upload a file. Select Add New on your Dashboard and upload a file from your device or import it from the cloud, online, or internal mail. Then click Edit.
3
Edit sellers property condition disclosure. Add and change text, add new objects, move pages, add watermarks and page numbers, and more. Then click Done when you're done editing and go to the Documents tab to merge or split the file. If you want to lock or unlock the file, click the lock or unlock button.
4
Get your file. When you find your file in the docs list, click on its name and choose how you want to save it. To get the PDF, you can save it, send an email with it, or move it to the cloud.
It's easier to work with documents with pdfFiller than you can have believed. You can sign up for an account to see for yourself.
Uncompromising security for your PDF editing and eSignature needs
Your private information is safe with pdfFiller. We employ end-to-end encryption, secure cloud storage, and advanced access control to protect your documents and maintain regulatory compliance.
How to fill out sellers property condition disclosure

How to fill out sellers property condition disclosure
01
Review the sellers property condition disclosure form provided by the listing agent.
02
Carefully read each question and provide accurate and detailed answers.
03
Disclose any known defects or issues with the property, including past repairs or insurance claims.
04
Be honest and transparent to avoid any legal issues in the future.
05
Sign and date the disclosure form once you have completed it.
Who needs sellers property condition disclosure?
01
Anyone selling a residential property in the United States typically needs to provide a sellers property condition disclosure.
02
This document is required by law in most states to inform potential buyers of any known issues with the property.
Fill
form
: Try Risk Free
For pdfFiller’s FAQs
Below is a list of the most common customer questions. If you can’t find an answer to your question, please don’t hesitate to reach out to us.
How do I modify my sellers property condition disclosure in Gmail?
It's easy to use pdfFiller's Gmail add-on to make and edit your sellers property condition disclosure and any other documents you get right in your email. You can also eSign them. Take a look at the Google Workspace Marketplace and get pdfFiller for Gmail. Get rid of the time-consuming steps and easily manage your documents and eSignatures with the help of an app.
How can I get sellers property condition disclosure?
The pdfFiller premium subscription gives you access to a large library of fillable forms (over 25 million fillable templates) that you can download, fill out, print, and sign. In the library, you'll have no problem discovering state-specific sellers property condition disclosure and other forms. Find the template you want and tweak it with powerful editing tools.
Can I create an eSignature for the sellers property condition disclosure in Gmail?
You may quickly make your eSignature using pdfFiller and then eSign your sellers property condition disclosure right from your mailbox using pdfFiller's Gmail add-on. Please keep in mind that in order to preserve your signatures and signed papers, you must first create an account.
What is sellers property condition disclosure?
Sellers property condition disclosure is a document provided by the seller of a property that discloses any known material defects or issues with the property.
Who is required to file sellers property condition disclosure?
In most states, sellers are required to file sellers property condition disclosure when selling a property.
How to fill out sellers property condition disclosure?
To fill out sellers property condition disclosure, sellers must provide accurate information about the condition of the property and any known defects.
What is the purpose of sellers property condition disclosure?
The purpose of sellers property condition disclosure is to inform potential buyers of any known issues with the property before they make an offer.
What information must be reported on sellers property condition disclosure?
Sellers must report any known material defects or issues with the property, such as issues with the roof, foundation, plumbing, or electrical systems.
Fill out your sellers property condition disclosure online with pdfFiller!
pdfFiller is an end-to-end solution for managing, creating, and editing documents and forms in the cloud. Save time and hassle by preparing your tax forms online.

Sellers Property Condition Disclosure is not the form you're looking for?Search for another form here.
Relevant keywords
Related Forms
If you believe that this page should be taken down, please follow our DMCA take down process
here
.
This form may include fields for payment information. Data entered in these fields is not covered by PCI DSS compliance.