
Get the free Project Title: TR-8623, 4738 Proctor Road Subdivision VESTING TENTATIVE TRACT MAP, P...
Show details
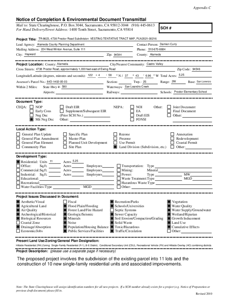
Appendix Notice of Completion & Environmental Document Transmittal Mail to: State Clearinghouse, P.O. Box 3044, Sacramento, CA 958123044 (916) 4450613 For Hand Delivery/Street Address: 1400 Tenth
We are not affiliated with any brand or entity on this form
Get, Create, Make and Sign project title tr-8623 4738

Edit your project title tr-8623 4738 form online
Type text, complete fillable fields, insert images, highlight or blackout data for discretion, add comments, and more.

Add your legally-binding signature
Draw or type your signature, upload a signature image, or capture it with your digital camera.

Share your form instantly
Email, fax, or share your project title tr-8623 4738 form via URL. You can also download, print, or export forms to your preferred cloud storage service.
Editing project title tr-8623 4738 online
Here are the steps you need to follow to get started with our professional PDF editor:
1
Log in. Click Start Free Trial and create a profile if necessary.
2
Simply add a document. Select Add New from your Dashboard and import a file into the system by uploading it from your device or importing it via the cloud, online, or internal mail. Then click Begin editing.
3
Edit project title tr-8623 4738. Rearrange and rotate pages, add and edit text, and use additional tools. To save changes and return to your Dashboard, click Done. The Documents tab allows you to merge, divide, lock, or unlock files.
4
Save your file. Select it from your list of records. Then, move your cursor to the right toolbar and choose one of the exporting options. You can save it in multiple formats, download it as a PDF, send it by email, or store it in the cloud, among other things.
With pdfFiller, dealing with documents is always straightforward. Now is the time to try it!
Uncompromising security for your PDF editing and eSignature needs
Your private information is safe with pdfFiller. We employ end-to-end encryption, secure cloud storage, and advanced access control to protect your documents and maintain regulatory compliance.
How to fill out project title tr-8623 4738

How to fill out project title tr-8623 4738
01
Locate the project title field labeled tr-8623 4738 on the project form
02
Click on the project title field to activate it
03
Type in the desired project title following any specific formatting guidelines provided
04
Double-check the project title for accuracy and completeness
05
Save the project title by clicking on the save or submit button
Who needs project title tr-8623 4738?
01
Anyone working on the project that requires a unique identifier for tracking and organization purposes
Fill
form
: Try Risk Free
For pdfFiller’s FAQs
Below is a list of the most common customer questions. If you can’t find an answer to your question, please don’t hesitate to reach out to us.
Can I sign the project title tr-8623 4738 electronically in Chrome?
You certainly can. You get not just a feature-rich PDF editor and fillable form builder with pdfFiller, but also a robust e-signature solution that you can add right to your Chrome browser. You may use our addon to produce a legally enforceable eSignature by typing, sketching, or photographing your signature with your webcam. Choose your preferred method and eSign your project title tr-8623 4738 in minutes.
How do I fill out project title tr-8623 4738 using my mobile device?
Use the pdfFiller mobile app to fill out and sign project title tr-8623 4738. Visit our website (https://edit-pdf-ios-android.pdffiller.com/) to learn more about our mobile applications, their features, and how to get started.
How do I edit project title tr-8623 4738 on an Android device?
You can edit, sign, and distribute project title tr-8623 4738 on your mobile device from anywhere using the pdfFiller mobile app for Android; all you need is an internet connection. Download the app and begin streamlining your document workflow from anywhere.
What is project title tr-8623 4738?
Project title tr-8623 4738 is a unique identifier for a specific project.
Who is required to file project title tr-8623 4738?
The project manager or the person responsible for the project is required to file project title tr-8623 4738.
How to fill out project title tr-8623 4738?
Project title tr-8623 4738 should be filled out with accurate and up-to-date information about the project.
What is the purpose of project title tr-8623 4738?
The purpose of project title tr-8623 4738 is to ensure proper identification and tracking of the project.
What information must be reported on project title tr-8623 4738?
Information such as project details, timelines, budget, and stakeholders must be reported on project title tr-8623 4738.
Fill out your project title tr-8623 4738 online with pdfFiller!
pdfFiller is an end-to-end solution for managing, creating, and editing documents and forms in the cloud. Save time and hassle by preparing your tax forms online.

Project Title Tr-8623 4738 is not the form you're looking for?Search for another form here.
Relevant keywords
Related Forms
If you believe that this page should be taken down, please follow our DMCA take down process
here
.
This form may include fields for payment information. Data entered in these fields is not covered by PCI DSS compliance.