Form preview

Get the free State of Idaho - Occupational and Professional Licenses - dbs idaho

Get Form
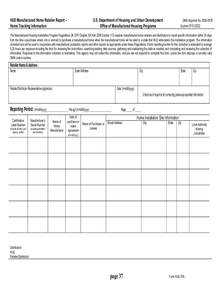
DIVISION OF OCCUPATIONAL AND PROFESSIONAL LICENSES FACTORY BUILT STRUCTURES ADVISORY BOARD MEETING AUGUST 10, 2022Idaho Division of Occupational and Professional Licenses Brad Little Governor Russell
We are not affiliated with any brand or entity on this form

Get, Create, Make and Sign state of idaho

Edit
Edit your state of idaho form online
Type text, complete fillable fields, insert images, highlight or blackout data for discretion, add comments, and more.
Add
Add your legally-binding signature
Draw or type your signature, upload a signature image, or capture it with your digital camera.
Share
Share your form instantly
Email, fax, or share your state of idaho form via URL. You can also download, print, or export forms to your preferred cloud storage service.

Editing state of idaho online

9.5
Ease of Setup
pdfFiller User Ratings on G2
9.0
Ease of Use
pdfFiller User Ratings on G2
Here are the steps you need to follow to get started with our professional PDF editor:
1
Check your account. If you don't have a profile yet, click Start Free Trial and sign up for one.
2
Upload a file. Select Add New on your Dashboard and upload a file from your device or import it from the cloud, online, or internal mail. Then click Edit.
3
Edit state of idaho. Rearrange and rotate pages, add and edit text, and use additional tools. To save changes and return to your Dashboard, click Done. The Documents tab allows you to merge, divide, lock, or unlock files.
4
Save your file. Select it from your records list. Then, click the right toolbar and select one of the various exporting options: save in numerous formats, download as PDF, email, or cloud.
pdfFiller makes working with documents easier than you could ever imagine. Try it for yourself by creating an account!

Uncompromising security for your PDF editing and eSignature needs

Your private information is safe with pdfFiller. We employ end-to-end encryption, secure cloud storage, and advanced access control to protect your documents and maintain regulatory compliance.
GDPR
AICPA SOC 2
PCI
HIPAA
CCPA
FDA

How to fill out state of idaho

Illustration

How to fill out state of idaho

01
Obtain the state of Idaho form from the official website or local government office.
02
Fill in personal information such as name, address, date of birth, and any other required details.
03
Provide information about any dependents you may have if applicable.
04
Check for any additional documents or proof that may be required to submit along with the form.
05
Review the form for any errors or missing information before submitting it.

Who needs state of idaho?

01
Residents of Idaho who need to apply for government services or benefits.
02
Individuals who are required to provide proof of their identity or residency in the state.
Fill form : Try Risk Free
Users Most Likely To Recommend - Summer 2025
Grid Leader in Small-Business - Summer 2025
High Performer - Summer 2025
Regional Leader - Summer 2025
Easiest To Do Business With - Summer 2025
Best Meets Requirements- Summer 2025
Rate the form
4.8
Satisfied
38 Votes

For pdfFiller’s FAQs

Below is a list of the most common customer questions. If you can’t find an answer to your question, please don’t hesitate to reach out to us.

pdfFiller and Google Docs can be used together to make your documents easier to work with and to make fillable forms right in your Google Drive. The integration will let you make, change, and sign documents, like state of idaho, without leaving Google Drive. Add pdfFiller's features to Google Drive, and you'll be able to do more with your paperwork on any internet-connected device.
You can do so easily with pdfFiller’s applications for iOS and Android devices, which can be found at the Apple Store and Google Play Store, respectively. Alternatively, you can get the app on our web page: https://edit-pdf-ios-android.pdffiller.com/. Install the application, log in, and start editing state of idaho right away.
Use the pdfFiller mobile app to create, edit, and share state of idaho from your iOS device. Install it from the Apple Store in seconds. You can benefit from a free trial and choose a subscription that suits your needs.
The State of Idaho refers to the government and laws within the state of Idaho.
Individuals and businesses that meet the filing requirements set by the state of Idaho are required to file.
State of Idaho forms can be filled out online or by mail following the instructions provided by the Idaho State Tax Commission.
The State of Idaho forms are used to report and pay state taxes or fees required by the Idaho State Tax Commission.
The State of Idaho forms typically require information such as income, deductions, credits, and any other relevant tax information.
Fill out your state of idaho online with pdfFiller!

pdfFiller is an end-to-end solution for managing, creating, and editing documents and forms in the cloud. Save time and hassle by preparing your tax forms online.

Get started now
Form preview
If you believe that this page should be taken down, please follow our DMCA take down process here .
This form may include fields for payment information. Data entered in these fields is not covered by PCI DSS compliance.