Get the free township of ewing land development application
Show details
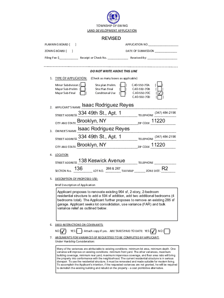
TOWNSHIP OF EWING LAND DEVELOPMENT APPLICATIONREVISED PLANNING BOARD [ZONING BOARD []APPLICATION NO.___]DATE OF SUBMISSION ___Filing Fee $___ Receipt or Check No. ___ Received By: ___DO NOT WR/TE
We are not affiliated with any brand or entity on this form
Get, Create, Make and Sign township of ewing land
Edit your township of ewing land form online
Type text, complete fillable fields, insert images, highlight or blackout data for discretion, add comments, and more.
Add your legally-binding signature
Draw or type your signature, upload a signature image, or capture it with your digital camera.
Share your form instantly
Email, fax, or share your township of ewing land form via URL. You can also download, print, or export forms to your preferred cloud storage service.
Editing township of ewing land online
To use the professional PDF editor, follow these steps:
1
Create an account. Begin by choosing Start Free Trial and, if you are a new user, establish a profile.
2
Upload a file. Select Add New on your Dashboard and upload a file from your device or import it from the cloud, online, or internal mail. Then click Edit.
3
Edit township of ewing land. Replace text, adding objects, rearranging pages, and more. Then select the Documents tab to combine, divide, lock or unlock the file.
4
Save your file. Select it from your list of records. Then, move your cursor to the right toolbar and choose one of the exporting options. You can save it in multiple formats, download it as a PDF, send it by email, or store it in the cloud, among other things.
With pdfFiller, it's always easy to work with documents. Check it out!
Uncompromising security for your PDF editing and eSignature needs
Your private information is safe with pdfFiller. We employ end-to-end encryption, secure cloud storage, and advanced access control to protect your documents and maintain regulatory compliance.
How to fill out township of ewing land
How to fill out township of ewing land
01
Obtain the necessary forms from the Township of Ewing website or office.
02
Fill out the forms completely, providing detailed information about the land you are registering.
03
Make sure to include any required documentation, such as property deeds or survey reports.
04
Submit the completed forms and documentation to the Township of Ewing office for review.
05
Pay any required fees for the land registration process.
06
Wait for confirmation from the Township of Ewing that your land registration has been approved.
Who needs township of ewing land?
01
Property owners in the Township of Ewing who want to ensure their land is properly documented and registered.
02
Real estate developers and investors who are acquiring new properties in the Township of Ewing.
03
Government agencies and departments that need accurate information about land ownership and use within the township.
Fill
form
: Try Risk Free
For pdfFiller’s FAQs
Below is a list of the most common customer questions. If you can’t find an answer to your question, please don’t hesitate to reach out to us.
How can I send township of ewing land for eSignature?
When your township of ewing land is finished, send it to recipients securely and gather eSignatures with pdfFiller. You may email, text, fax, mail, or notarize a PDF straight from your account. Create an account today to test it.
How do I complete township of ewing land online?
pdfFiller has made it simple to fill out and eSign township of ewing land. The application has capabilities that allow you to modify and rearrange PDF content, add fillable fields, and eSign the document. Begin a free trial to discover all of the features of pdfFiller, the best document editing solution.
How do I fill out township of ewing land on an Android device?
Complete your township of ewing land and other papers on your Android device by using the pdfFiller mobile app. The program includes all of the necessary document management tools, such as editing content, eSigning, annotating, sharing files, and so on. You will be able to view your papers at any time as long as you have an internet connection.
What is township of ewing land?
Township of Ewing land refers to the assessment of property within the Ewing Township boundaries.
Who is required to file township of ewing land?
Property owners within the Ewing Township boundaries are required to file township of Ewing land.
How to fill out township of ewing land?
Township of Ewing land can be filled out by submitting the necessary forms and information to the Ewing Township tax assessor's office.
What is the purpose of township of ewing land?
The purpose of township of Ewing land is to assess the value of properties within the Ewing Township boundaries for tax purposes.
What information must be reported on township of ewing land?
Information such as property value, location, ownership details, and any improvements made to the property must be reported on township of Ewing land.
Fill out your township of ewing land online with pdfFiller!
pdfFiller is an end-to-end solution for managing, creating, and editing documents and forms in the cloud. Save time and hassle by preparing your tax forms online.
Township Of Ewing Land is not the form you're looking for?Search for another form here.
Relevant keywords
Related Forms
If you believe that this page should be taken down, please follow our DMCA take down process
here
.
This form may include fields for payment information. Data entered in these fields is not covered by PCI DSS compliance.