
Get the free A Compendium Of 4chan's Redpills And Conspiracy Facts in 4 ...
Show details
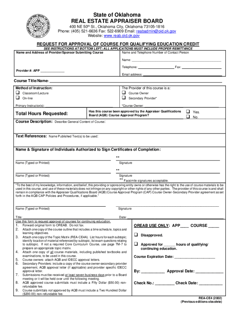
State of Oklahoma REAL ESTATE APPRAISER BOARD 400 NE 50th St., Oklahoma City, Oklahoma 731051816 Phone: (405) 5216636 Fax: 5226909 Email: reabadmin@oid.ok.gov Website: www.reab.oid.ok.govREQUEST FOR
We are not affiliated with any brand or entity on this form
Get, Create, Make and Sign a compendium of 4chans

Edit your a compendium of 4chans form online
Type text, complete fillable fields, insert images, highlight or blackout data for discretion, add comments, and more.

Add your legally-binding signature
Draw or type your signature, upload a signature image, or capture it with your digital camera.

Share your form instantly
Email, fax, or share your a compendium of 4chans form via URL. You can also download, print, or export forms to your preferred cloud storage service.
Editing a compendium of 4chans online
To use our professional PDF editor, follow these steps:
1
Log into your account. It's time to start your free trial.
2
Prepare a file. Use the Add New button to start a new project. Then, using your device, upload your file to the system by importing it from internal mail, the cloud, or adding its URL.
3
Edit a compendium of 4chans. Rearrange and rotate pages, add new and changed texts, add new objects, and use other useful tools. When you're done, click Done. You can use the Documents tab to merge, split, lock, or unlock your files.
4
Save your file. Select it from your records list. Then, click the right toolbar and select one of the various exporting options: save in numerous formats, download as PDF, email, or cloud.
Dealing with documents is always simple with pdfFiller.
Uncompromising security for your PDF editing and eSignature needs
Your private information is safe with pdfFiller. We employ end-to-end encryption, secure cloud storage, and advanced access control to protect your documents and maintain regulatory compliance.
How to fill out a compendium of 4chans

How to fill out a compendium of 4chans
01
Start by creating a list of all the 4chans you want to include in the compendium.
02
Collect relevant information for each 4chan, such as its name, description, rules, and popular threads.
03
Organize the information in a clear and concise manner, making sure to include any important details that users may find useful.
04
Design a visually appealing layout for the compendium, including graphics and illustrations if desired.
05
Proofread and edit the content to ensure accuracy and readability before publishing the compendium.
Who needs a compendium of 4chans?
01
Anyone who is new to 4chan and wants a comprehensive guide to navigate the platform effectively.
02
Moderators or administrators of 4chan communities who want to provide users with a centralized resource for information and guidelines.
Fill
form
: Try Risk Free
For pdfFiller’s FAQs
Below is a list of the most common customer questions. If you can’t find an answer to your question, please don’t hesitate to reach out to us.
How can I send a compendium of 4chans for eSignature?
Once your a compendium of 4chans is ready, you can securely share it with recipients and collect eSignatures in a few clicks with pdfFiller. You can send a PDF by email, text message, fax, USPS mail, or notarize it online - right from your account. Create an account now and try it yourself.
How do I complete a compendium of 4chans online?
pdfFiller has made filling out and eSigning a compendium of 4chans easy. The solution is equipped with a set of features that enable you to edit and rearrange PDF content, add fillable fields, and eSign the document. Start a free trial to explore all the capabilities of pdfFiller, the ultimate document editing solution.
Can I edit a compendium of 4chans on an Android device?
With the pdfFiller Android app, you can edit, sign, and share a compendium of 4chans on your mobile device from any place. All you need is an internet connection to do this. Keep your documents in order from anywhere with the help of the app!
What is a compendium of 4chans?
A compendium of 4chans is a collection or summary of information related to the 4chan online platform.
Who is required to file a compendium of 4chans?
Users or administrators of 4chan may be required to file a compendium of 4chans.
How to fill out a compendium of 4chans?
To fill out a compendium of 4chans, one must gather all relevant information and accurately document it in the required format.
What is the purpose of a compendium of 4chans?
The purpose of a compendium of 4chans is to provide a comprehensive overview of the content and activity on the 4chan platform.
What information must be reported on a compendium of 4chans?
Information such as user statistics, popular threads, trending topics, and any noteworthy incidents or discussions may need to be reported on a compendium of 4chans.
Fill out your a compendium of 4chans online with pdfFiller!
pdfFiller is an end-to-end solution for managing, creating, and editing documents and forms in the cloud. Save time and hassle by preparing your tax forms online.

A Compendium Of 4chans is not the form you're looking for?Search for another form here.
Relevant keywords
Related Forms
If you believe that this page should be taken down, please follow our DMCA take down process
here
.
This form may include fields for payment information. Data entered in these fields is not covered by PCI DSS compliance.