
Get the free Statement of Information - Single residential ... - Harlow Tarneit
Show details
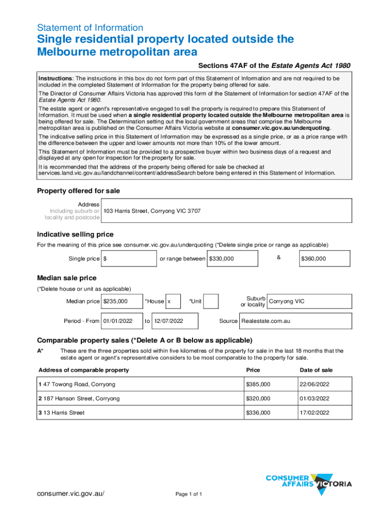
Statement of InformationSingle residential property located outside the Melbourne metropolitan area Sections 47AF of the Estate Agents Act 1980 Instructions: The instructions in this box do not form
We are not affiliated with any brand or entity on this form
Get, Create, Make and Sign statement of information

Edit your statement of information form online
Type text, complete fillable fields, insert images, highlight or blackout data for discretion, add comments, and more.

Add your legally-binding signature
Draw or type your signature, upload a signature image, or capture it with your digital camera.

Share your form instantly
Email, fax, or share your statement of information form via URL. You can also download, print, or export forms to your preferred cloud storage service.
How to edit statement of information online
Follow the guidelines below to use a professional PDF editor:
1
Create an account. Begin by choosing Start Free Trial and, if you are a new user, establish a profile.
2
Prepare a file. Use the Add New button to start a new project. Then, using your device, upload your file to the system by importing it from internal mail, the cloud, or adding its URL.
3
Edit statement of information. Rearrange and rotate pages, insert new and alter existing texts, add new objects, and take advantage of other helpful tools. Click Done to apply changes and return to your Dashboard. Go to the Documents tab to access merging, splitting, locking, or unlocking functions.
4
Save your file. Select it from your list of records. Then, move your cursor to the right toolbar and choose one of the exporting options. You can save it in multiple formats, download it as a PDF, send it by email, or store it in the cloud, among other things.
pdfFiller makes dealing with documents a breeze. Create an account to find out!
Uncompromising security for your PDF editing and eSignature needs
Your private information is safe with pdfFiller. We employ end-to-end encryption, secure cloud storage, and advanced access control to protect your documents and maintain regulatory compliance.
How to fill out statement of information

How to fill out statement of information
01
Gather all necessary information such as company name, address, entity number, and relevant dates.
02
Access the Secretary of State website for the state where the business is registered.
03
Look for the specific form for statement of information and download it.
04
Fill out all required fields on the form accurately and completely.
05
Double check all information for accuracy before submitting.
06
Pay any required fees and submit the form either online or by mail.
Who needs statement of information?
01
Business entities such as corporations and limited liability companies are typically required to file a statement of information.
02
Individuals who are in charge of running or managing the business may also need to fill out a statement of information.
Fill
form
: Try Risk Free
For pdfFiller’s FAQs
Below is a list of the most common customer questions. If you can’t find an answer to your question, please don’t hesitate to reach out to us.
Where do I find statement of information?
It's simple with pdfFiller, a full online document management tool. Access our huge online form collection (over 25M fillable forms are accessible) and find the statement of information in seconds. Open it immediately and begin modifying it with powerful editing options.
How do I execute statement of information online?
With pdfFiller, you may easily complete and sign statement of information online. It lets you modify original PDF material, highlight, blackout, erase, and write text anywhere on a page, legally eSign your document, and do a lot more. Create a free account to handle professional papers online.
Can I create an electronic signature for the statement of information in Chrome?
As a PDF editor and form builder, pdfFiller has a lot of features. It also has a powerful e-signature tool that you can add to your Chrome browser. With our extension, you can type, draw, or take a picture of your signature with your webcam to make your legally-binding eSignature. Choose how you want to sign your statement of information and you'll be done in minutes.
What is statement of information?
The statement of information is a document that provides updated information about a business entity, including details about its officers, directors, and address.
Who is required to file statement of information?
Corporations and LLCs registered in the state are typically required to file a statement of information.
How to fill out statement of information?
To fill out a statement of information, you will need to provide details about the business entity, such as names of officers and directors, business address, and other relevant information.
What is the purpose of statement of information?
The purpose of the statement of information is to ensure that the state has accurate and up-to-date information about business entities operating within its jurisdiction.
What information must be reported on statement of information?
The statement of information typically requires information about officers, directors, business address, and other key details about the business entity.
Fill out your statement of information online with pdfFiller!
pdfFiller is an end-to-end solution for managing, creating, and editing documents and forms in the cloud. Save time and hassle by preparing your tax forms online.

Statement Of Information is not the form you're looking for?Search for another form here.
Relevant keywords
Related Forms
If you believe that this page should be taken down, please follow our DMCA take down process
here
.
This form may include fields for payment information. Data entered in these fields is not covered by PCI DSS compliance.