Get the free Brownfield Cleanup Program Pre-Application Worksheet
Show details
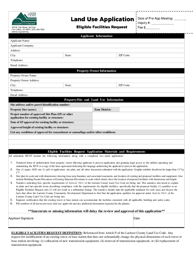
Date of Preamp Meeting: ___ Inquiry #: ___ Fee $___200 W. Oak Street, 3rd Floor, Fort Collins, CO 80521 (970) 4987683 larimer.org/planningApplicant Information Applicant Name: Applicant Company: Address:
We are not affiliated with any brand or entity on this form
Get, Create, Make and Sign brownfield cleanup program pre-application
Edit your brownfield cleanup program pre-application form online
Type text, complete fillable fields, insert images, highlight or blackout data for discretion, add comments, and more.
Add your legally-binding signature
Draw or type your signature, upload a signature image, or capture it with your digital camera.
Share your form instantly
Email, fax, or share your brownfield cleanup program pre-application form via URL. You can also download, print, or export forms to your preferred cloud storage service.
Editing brownfield cleanup program pre-application online
To use the services of a skilled PDF editor, follow these steps below:
1
Log in. Click Start Free Trial and create a profile if necessary.
2
Simply add a document. Select Add New from your Dashboard and import a file into the system by uploading it from your device or importing it via the cloud, online, or internal mail. Then click Begin editing.
3
Edit brownfield cleanup program pre-application. Rearrange and rotate pages, insert new and alter existing texts, add new objects, and take advantage of other helpful tools. Click Done to apply changes and return to your Dashboard. Go to the Documents tab to access merging, splitting, locking, or unlocking functions.
4
Save your file. Choose it from the list of records. Then, shift the pointer to the right toolbar and select one of the several exporting methods: save it in multiple formats, download it as a PDF, email it, or save it to the cloud.
Dealing with documents is always simple with pdfFiller.
Uncompromising security for your PDF editing and eSignature needs
Your private information is safe with pdfFiller. We employ end-to-end encryption, secure cloud storage, and advanced access control to protect your documents and maintain regulatory compliance.
How to fill out brownfield cleanup program pre-application
How to fill out brownfield cleanup program pre-application
01
Obtain a pre-application form from the brownfield cleanup program office.
02
Fill out the form completely with accurate information about the property and proposed cleanup plan.
03
Attach any required documents, such as site assessments, ownership information, and proposed budget.
04
Submit the completed pre-application form and supporting documents to the brownfield cleanup program office for review.
Who needs brownfield cleanup program pre-application?
01
Property owners or developers looking to clean up and redevelop contaminated sites may need the brownfield cleanup program pre-application.
Fill
form
: Try Risk Free
For pdfFiller’s FAQs
Below is a list of the most common customer questions. If you can’t find an answer to your question, please don’t hesitate to reach out to us.
Can I create an eSignature for the brownfield cleanup program pre-application in Gmail?
Create your eSignature using pdfFiller and then eSign your brownfield cleanup program pre-application immediately from your email with pdfFiller's Gmail add-on. To keep your signatures and signed papers, you must create an account.
How do I fill out brownfield cleanup program pre-application using my mobile device?
On your mobile device, use the pdfFiller mobile app to complete and sign brownfield cleanup program pre-application. Visit our website (https://edit-pdf-ios-android.pdffiller.com/) to discover more about our mobile applications, the features you'll have access to, and how to get started.
How can I fill out brownfield cleanup program pre-application on an iOS device?
Download and install the pdfFiller iOS app. Then, launch the app and log in or create an account to have access to all of the editing tools of the solution. Upload your brownfield cleanup program pre-application from your device or cloud storage to open it, or input the document URL. After filling out all of the essential areas in the document and eSigning it (if necessary), you may save it or share it with others.
What is brownfield cleanup program pre-application?
The brownfield cleanup program pre-application is a preliminary step in the process of applying for assistance from the program, which helps to identify and assess contaminated sites for cleanup.
Who is required to file brownfield cleanup program pre-application?
Property owners or developers who are seeking assistance for cleaning up contaminated sites are required to file the pre-application.
How to fill out brownfield cleanup program pre-application?
The pre-application can be filled out online through the designated portal provided by the program with all relevant information and documentation.
What is the purpose of brownfield cleanup program pre-application?
The purpose of the pre-application is to provide basic information about the site and the proposed cleanup activities to determine eligibility for the program.
What information must be reported on brownfield cleanup program pre-application?
The pre-application typically requires information about the location of the site, potential contaminants, proposed cleanup methods, and estimated costs.
Fill out your brownfield cleanup program pre-application online with pdfFiller!
pdfFiller is an end-to-end solution for managing, creating, and editing documents and forms in the cloud. Save time and hassle by preparing your tax forms online.
Brownfield Cleanup Program Pre-Application is not the form you're looking for?Search for another form here.
Relevant keywords
Related Forms
If you believe that this page should be taken down, please follow our DMCA take down process
here
.
This form may include fields for payment information. Data entered in these fields is not covered by PCI DSS compliance.