Get the free Anthony Marciano - Supreme Court of the United States
Show details
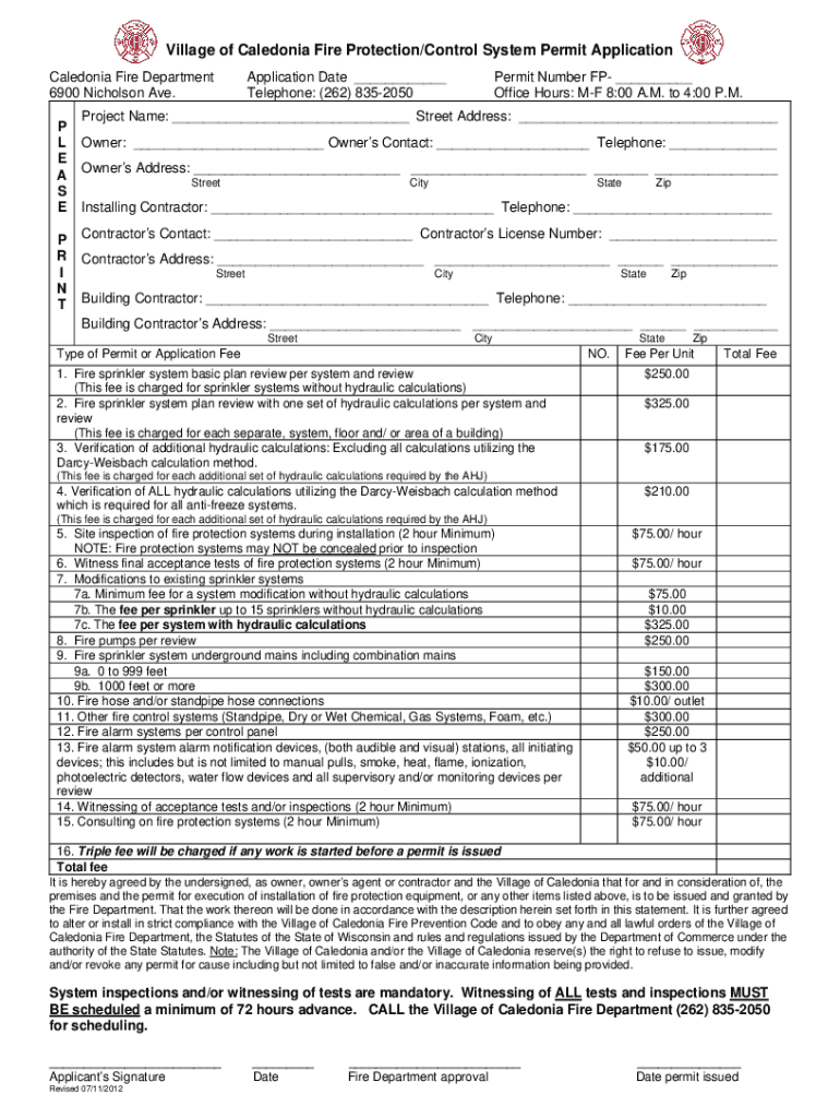
Village of Caledonia Fire Protection/Control System Permit Application Caledonia Fire Department 6900 Nicholson Ave. P L E A S E P R I NT Application Date ___ Telephone: (262) 8352050Permit Number
We are not affiliated with any brand or entity on this form
Get, Create, Make and Sign anthony marciano - supreme
Edit your anthony marciano - supreme form online
Type text, complete fillable fields, insert images, highlight or blackout data for discretion, add comments, and more.
Add your legally-binding signature
Draw or type your signature, upload a signature image, or capture it with your digital camera.
Share your form instantly
Email, fax, or share your anthony marciano - supreme form via URL. You can also download, print, or export forms to your preferred cloud storage service.
Editing anthony marciano - supreme online
To use the professional PDF editor, follow these steps:
1
Create an account. Begin by choosing Start Free Trial and, if you are a new user, establish a profile.
2
Upload a file. Select Add New on your Dashboard and upload a file from your device or import it from the cloud, online, or internal mail. Then click Edit.
3
Edit anthony marciano - supreme. Add and change text, add new objects, move pages, add watermarks and page numbers, and more. Then click Done when you're done editing and go to the Documents tab to merge or split the file. If you want to lock or unlock the file, click the lock or unlock button.
4
Save your file. Select it from your list of records. Then, move your cursor to the right toolbar and choose one of the exporting options. You can save it in multiple formats, download it as a PDF, send it by email, or store it in the cloud, among other things.
With pdfFiller, it's always easy to work with documents.
Uncompromising security for your PDF editing and eSignature needs
Your private information is safe with pdfFiller. We employ end-to-end encryption, secure cloud storage, and advanced access control to protect your documents and maintain regulatory compliance.
How to fill out anthony marciano - supreme
How to fill out anthony marciano - supreme
01
Begin by gathering all necessary information required for filling out the Anthony Marciano - Supreme form.
02
Carefully read the instructions provided on the form to ensure accurate completion.
03
Fill in the personal details accurately such as name, address, contact information, etc.
04
Provide any additional information or details as requested on the form.
05
Review the completed form for any errors or missing information before submitting it.
Who needs anthony marciano - supreme?
01
Individuals who are designated by Anthony Marciano or the Supreme organization to complete the form on their behalf.
Fill
form
: Try Risk Free
For pdfFiller’s FAQs
Below is a list of the most common customer questions. If you can’t find an answer to your question, please don’t hesitate to reach out to us.
How can I manage my anthony marciano - supreme directly from Gmail?
anthony marciano - supreme and other documents can be changed, filled out, and signed right in your Gmail inbox. You can use pdfFiller's add-on to do this, as well as other things. When you go to Google Workspace, you can find pdfFiller for Gmail. You should use the time you spend dealing with your documents and eSignatures for more important things, like going to the gym or going to the dentist.
How do I make changes in anthony marciano - supreme?
The editing procedure is simple with pdfFiller. Open your anthony marciano - supreme in the editor. You may also add photos, draw arrows and lines, insert sticky notes and text boxes, and more.
How do I fill out anthony marciano - supreme on an Android device?
Use the pdfFiller mobile app to complete your anthony marciano - supreme on an Android device. The application makes it possible to perform all needed document management manipulations, like adding, editing, and removing text, signing, annotating, and more. All you need is your smartphone and an internet connection.
What is anthony marciano - supreme?
Anthony Marciano - Supreme is a financial disclosure form required by certain officials to report their financial interests and potential conflicts of interest.
Who is required to file anthony marciano - supreme?
Officials holding specific positions within government agencies or organizations may be required to file Anthony Marciano - Supreme.
How to fill out anthony marciano - supreme?
Anthony Marciano - Supreme can typically be filled out online or via a paper form provided by the appropriate governing body.
What is the purpose of anthony marciano - supreme?
The purpose of Anthony Marciano - Supreme is to increase transparency by disclosing potential financial conflicts of interest for officials in certain positions.
What information must be reported on anthony marciano - supreme?
Information such as assets, income, investments, and potential conflicts of interest must be reported on Anthony Marciano - Supreme.
Fill out your anthony marciano - supreme online with pdfFiller!
pdfFiller is an end-to-end solution for managing, creating, and editing documents and forms in the cloud. Save time and hassle by preparing your tax forms online.
Anthony Marciano - Supreme is not the form you're looking for?Search for another form here.
Relevant keywords
Related Forms
If you believe that this page should be taken down, please follow our DMCA take down process
here
.
This form may include fields for payment information. Data entered in these fields is not covered by PCI DSS compliance.