
Get the free MATTOX ISABEL WORTHY ATTORNEY AT LAW - Yelp
Show details
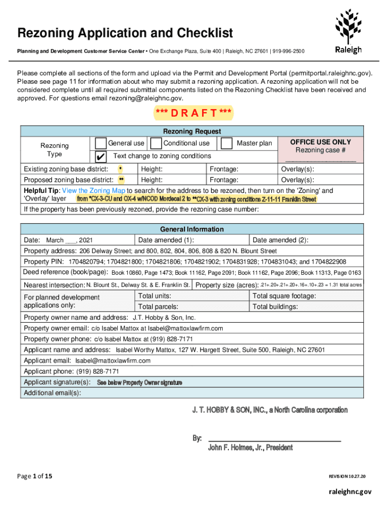
MATTER LAW FIRM Isabel Worthy Matt ox Isabel@mattoxlawfirm.comTelephone (919) 8287171Matthew J. Carpenter Matthew@mattoxlawfirm.comMarch 5, 2021TO ALL ADDRESSEES: RE:NOTICE OF MEETING Regarding Potential
We are not affiliated with any brand or entity on this form
Get, Create, Make and Sign mattox isabel worthy attorney

Edit your mattox isabel worthy attorney form online
Type text, complete fillable fields, insert images, highlight or blackout data for discretion, add comments, and more.

Add your legally-binding signature
Draw or type your signature, upload a signature image, or capture it with your digital camera.

Share your form instantly
Email, fax, or share your mattox isabel worthy attorney form via URL. You can also download, print, or export forms to your preferred cloud storage service.
How to edit mattox isabel worthy attorney online
To use the professional PDF editor, follow these steps below:
1
Set up an account. If you are a new user, click Start Free Trial and establish a profile.
2
Prepare a file. Use the Add New button. Then upload your file to the system from your device, importing it from internal mail, the cloud, or by adding its URL.
3
Edit mattox isabel worthy attorney. Replace text, adding objects, rearranging pages, and more. Then select the Documents tab to combine, divide, lock or unlock the file.
4
Get your file. Select the name of your file in the docs list and choose your preferred exporting method. You can download it as a PDF, save it in another format, send it by email, or transfer it to the cloud.
It's easier to work with documents with pdfFiller than you could have believed. You can sign up for an account to see for yourself.
Uncompromising security for your PDF editing and eSignature needs
Your private information is safe with pdfFiller. We employ end-to-end encryption, secure cloud storage, and advanced access control to protect your documents and maintain regulatory compliance.
How to fill out mattox isabel worthy attorney

How to fill out mattox isabel worthy attorney
01
Gather all necessary information and documents related to the legal matter.
02
Contact Mattox Isabel Worthy Attorney to schedule a consultation.
03
During the consultation, provide all the details of the case and ask any relevant questions.
04
Listen to the advice and recommendations given by the attorney.
05
Fill out any required forms or paperwork accurately and honestly.
06
Review and sign any agreements or contracts as necessary.
07
Keep in contact with the attorney for updates and follow any instructions given.
Who needs mattox isabel worthy attorney?
01
Individuals facing legal issues or disputes that may require representation.
02
Businesses in need of legal advice or assistance with contracts and agreements.
03
Anyone seeking professional legal guidance and representation in a specific area of law.
Fill
form
: Try Risk Free
For pdfFiller’s FAQs
Below is a list of the most common customer questions. If you can’t find an answer to your question, please don’t hesitate to reach out to us.
How can I edit mattox isabel worthy attorney on a smartphone?
You can do so easily with pdfFiller’s applications for iOS and Android devices, which can be found at the Apple Store and Google Play Store, respectively. Alternatively, you can get the app on our web page: https://edit-pdf-ios-android.pdffiller.com/. Install the application, log in, and start editing mattox isabel worthy attorney right away.
How do I fill out mattox isabel worthy attorney using my mobile device?
You can easily create and fill out legal forms with the help of the pdfFiller mobile app. Complete and sign mattox isabel worthy attorney and other documents on your mobile device using the application. Visit pdfFiller’s webpage to learn more about the functionalities of the PDF editor.
Can I edit mattox isabel worthy attorney on an Android device?
With the pdfFiller mobile app for Android, you may make modifications to PDF files such as mattox isabel worthy attorney. Documents may be edited, signed, and sent directly from your mobile device. Install the app and you'll be able to manage your documents from anywhere.
What is mattox isabel worthy attorney?
Mattox Isabel Worthy Attorney is a legal document that is filled out by individuals who meet certain eligibility criteria to claim certain legal rights.
Who is required to file mattox isabel worthy attorney?
Individuals who meet the eligibility criteria defined by the legal system are required to file Mattox Isabel Worthy Attorney.
How to fill out mattox isabel worthy attorney?
Mattox Isabel Worthy Attorney can be filled out by providing accurate information about the individual's eligibility and legal rights. It is recommended to seek legal assistance for accurate completion.
What is the purpose of mattox isabel worthy attorney?
The purpose of Mattox Isabel Worthy Attorney is to allow individuals to claim certain legal rights based on their eligibility and compliance with the legal system.
What information must be reported on mattox isabel worthy attorney?
The information reported on Mattox Isabel Worthy Attorney typically includes personal details, eligibility criteria, legal rights claimed, and any other relevant information required by the legal system.
Fill out your mattox isabel worthy attorney online with pdfFiller!
pdfFiller is an end-to-end solution for managing, creating, and editing documents and forms in the cloud. Save time and hassle by preparing your tax forms online.

Mattox Isabel Worthy Attorney is not the form you're looking for?Search for another form here.
Relevant keywords
Related Forms
If you believe that this page should be taken down, please follow our DMCA take down process
here
.
This form may include fields for payment information. Data entered in these fields is not covered by PCI DSS compliance.