Get the free Confined Space Program - Environmental Health & Safety
Show details
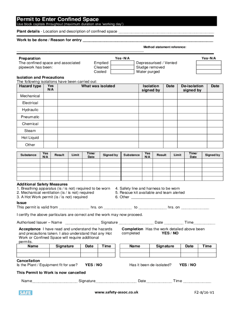
Permit entering Confined Space Use block capitals throughout (maximum duration one working day)Plant details Location and description of confined space ___ Work to be done / Reason for entry ___ Method
We are not affiliated with any brand or entity on this form
Get, Create, Make and Sign confined space program
Edit your confined space program form online
Type text, complete fillable fields, insert images, highlight or blackout data for discretion, add comments, and more.
Add your legally-binding signature
Draw or type your signature, upload a signature image, or capture it with your digital camera.
Share your form instantly
Email, fax, or share your confined space program form via URL. You can also download, print, or export forms to your preferred cloud storage service.
How to edit confined space program online
To use the professional PDF editor, follow these steps:
1
Log in. Click Start Free Trial and create a profile if necessary.
2
Upload a file. Select Add New on your Dashboard and upload a file from your device or import it from the cloud, online, or internal mail. Then click Edit.
3
Edit confined space program. Rearrange and rotate pages, add new and changed texts, add new objects, and use other useful tools. When you're done, click Done. You can use the Documents tab to merge, split, lock, or unlock your files.
4
Save your file. Select it from your records list. Then, click the right toolbar and select one of the various exporting options: save in numerous formats, download as PDF, email, or cloud.
pdfFiller makes dealing with documents a breeze. Create an account to find out!
Uncompromising security for your PDF editing and eSignature needs
Your private information is safe with pdfFiller. We employ end-to-end encryption, secure cloud storage, and advanced access control to protect your documents and maintain regulatory compliance.
How to fill out confined space program
How to fill out confined space program
01
Identify all confined spaces in the workplace
02
Assess the risks associated with each confined space
03
Develop entry procedures for each confined space
04
Train employees on the hazards of confined spaces and proper entry procedures
05
Implement a permit system for confined space entry
06
Regularly review and update the confined space program
Who needs confined space program?
01
Any workplace that has confined spaces where employees may need to enter for work purposes.
Fill
form
: Try Risk Free
For pdfFiller’s FAQs
Below is a list of the most common customer questions. If you can’t find an answer to your question, please don’t hesitate to reach out to us.
How can I manage my confined space program directly from Gmail?
confined space program and other documents can be changed, filled out, and signed right in your Gmail inbox. You can use pdfFiller's add-on to do this, as well as other things. When you go to Google Workspace, you can find pdfFiller for Gmail. You should use the time you spend dealing with your documents and eSignatures for more important things, like going to the gym or going to the dentist.
How can I get confined space program?
The premium pdfFiller subscription gives you access to over 25M fillable templates that you can download, fill out, print, and sign. The library has state-specific confined space program and other forms. Find the template you need and change it using powerful tools.
Can I edit confined space program on an Android device?
Yes, you can. With the pdfFiller mobile app for Android, you can edit, sign, and share confined space program on your mobile device from any location; only an internet connection is needed. Get the app and start to streamline your document workflow from anywhere.
What is confined space program?
A confined space program is a set of procedures and protocols designed to ensure the safety of workers who enter confined spaces.
Who is required to file confined space program?
Employers who have employees entering confined spaces are required to have a confined space program in place.
How to fill out confined space program?
To fill out a confined space program, employers must assess the hazards of the confined space, implement control measures, provide training to employees, and document all procedures.
What is the purpose of confined space program?
The purpose of a confined space program is to protect workers from hazards in confined spaces and prevent accidents and injuries.
What information must be reported on confined space program?
A confined space program must include information on hazard assessment, control measures, training records, emergency procedures, and rescue protocols.
Fill out your confined space program online with pdfFiller!
pdfFiller is an end-to-end solution for managing, creating, and editing documents and forms in the cloud. Save time and hassle by preparing your tax forms online.
Confined Space Program is not the form you're looking for?Search for another form here.
Relevant keywords
Related Forms
If you believe that this page should be taken down, please follow our DMCA take down process
here
.
This form may include fields for payment information. Data entered in these fields is not covered by PCI DSS compliance.