
Get the free Forms and Instructions - Iowa Department of Cultural Affairs
Show details
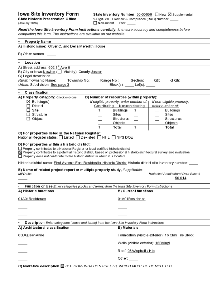
Iowa Site Inventory Formulate Inventory Number: 5000656New 9Digit SHOO Review & Compliance (R&C) Number: Nonextant Year:State Historic Preservation Office (January 2016)SupplementalRead the Iowa Site
We are not affiliated with any brand or entity on this form
Get, Create, Make and Sign forms and instructions

Edit your forms and instructions form online
Type text, complete fillable fields, insert images, highlight or blackout data for discretion, add comments, and more.

Add your legally-binding signature
Draw or type your signature, upload a signature image, or capture it with your digital camera.

Share your form instantly
Email, fax, or share your forms and instructions form via URL. You can also download, print, or export forms to your preferred cloud storage service.
How to edit forms and instructions online
Follow the steps down below to use a professional PDF editor:
1
Log in to your account. Start Free Trial and sign up a profile if you don't have one.
2
Upload a file. Select Add New on your Dashboard and upload a file from your device or import it from the cloud, online, or internal mail. Then click Edit.
3
Edit forms and instructions. Rearrange and rotate pages, add and edit text, and use additional tools. To save changes and return to your Dashboard, click Done. The Documents tab allows you to merge, divide, lock, or unlock files.
4
Save your file. Select it from your records list. Then, click the right toolbar and select one of the various exporting options: save in numerous formats, download as PDF, email, or cloud.
It's easier to work with documents with pdfFiller than you can have believed. Sign up for a free account to view.
Uncompromising security for your PDF editing and eSignature needs
Your private information is safe with pdfFiller. We employ end-to-end encryption, secure cloud storage, and advanced access control to protect your documents and maintain regulatory compliance.
How to fill out forms and instructions

How to fill out forms and instructions
01
Read all the instructions provided with the form.
02
Gather all necessary information and documents required to fill out the form.
03
Fill out the form accurately and completely, following the guidelines provided.
04
Double-check all information entered before submitting the form.
05
Submit the form to the appropriate authority or organization as instructed.
Who needs forms and instructions?
01
Anyone who needs to complete a formal request, application, or legal document may need forms and instructions to ensure they are filled out correctly and submitted accurately.
Fill
form
: Try Risk Free
For pdfFiller’s FAQs
Below is a list of the most common customer questions. If you can’t find an answer to your question, please don’t hesitate to reach out to us.
How can I edit forms and instructions from Google Drive?
pdfFiller and Google Docs can be used together to make your documents easier to work with and to make fillable forms right in your Google Drive. The integration will let you make, change, and sign documents, like forms and instructions, without leaving Google Drive. Add pdfFiller's features to Google Drive, and you'll be able to do more with your paperwork on any internet-connected device.
How can I send forms and instructions to be eSigned by others?
When you're ready to share your forms and instructions, you can send it to other people and get the eSigned document back just as quickly. Share your PDF by email, fax, text message, or USPS mail. You can also notarize your PDF on the web. You don't have to leave your account to do this.
How do I edit forms and instructions online?
pdfFiller not only lets you change the content of your files, but you can also change the number and order of pages. Upload your forms and instructions to the editor and make any changes in a few clicks. The editor lets you black out, type, and erase text in PDFs. You can also add images, sticky notes, and text boxes, as well as many other things.
What is forms and instructions?
Forms and instructions are documents provided by government agencies or organizations to guide individuals or businesses in filling out necessary paperwork.
Who is required to file forms and instructions?
Individuals or businesses who are required by law to report certain information to the government are required to file forms and instructions.
How to fill out forms and instructions?
Forms and instructions typically provide step-by-step guidance on how to correctly fill out the required information.
What is the purpose of forms and instructions?
The purpose of forms and instructions is to ensure that accurate and complete information is reported to the government in a standardized format.
What information must be reported on forms and instructions?
Forms and instructions may require personal information, financial information, or other relevant data depending on the specific requirements of the form.
Fill out your forms and instructions online with pdfFiller!
pdfFiller is an end-to-end solution for managing, creating, and editing documents and forms in the cloud. Save time and hassle by preparing your tax forms online.

Forms And Instructions is not the form you're looking for?Search for another form here.
Relevant keywords
Related Forms
If you believe that this page should be taken down, please follow our DMCA take down process
here
.
This form may include fields for payment information. Data entered in these fields is not covered by PCI DSS compliance.