
Get the free Violation Detail(s): Remedy: RESPONDENT: (FIRST NAME/ENTITY ...
Show details
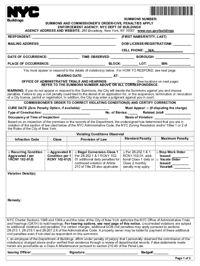
SUMMONS NUMBER: SUMMONS AND COMMISSIONERS PRE-CIVIL PENALTIES APPLY ENFORCEMENT AGENCY: NYC DEPT OF BUILDINGS AGENCY ADDRESS AND WEBSITE: 280 Broadway, New York, NY 10007 www.nyc.gov/buildings RESPONDENT:
We are not affiliated with any brand or entity on this form
Get, Create, Make and Sign violation details remedy respondent

Edit your violation details remedy respondent form online
Type text, complete fillable fields, insert images, highlight or blackout data for discretion, add comments, and more.

Add your legally-binding signature
Draw or type your signature, upload a signature image, or capture it with your digital camera.

Share your form instantly
Email, fax, or share your violation details remedy respondent form via URL. You can also download, print, or export forms to your preferred cloud storage service.
Editing violation details remedy respondent online
Follow the guidelines below to take advantage of the professional PDF editor:
1
Create an account. Begin by choosing Start Free Trial and, if you are a new user, establish a profile.
2
Prepare a file. Use the Add New button to start a new project. Then, using your device, upload your file to the system by importing it from internal mail, the cloud, or adding its URL.
3
Edit violation details remedy respondent. Rearrange and rotate pages, add new and changed texts, add new objects, and use other useful tools. When you're done, click Done. You can use the Documents tab to merge, split, lock, or unlock your files.
4
Get your file. When you find your file in the docs list, click on its name and choose how you want to save it. To get the PDF, you can save it, send an email with it, or move it to the cloud.
pdfFiller makes working with documents easier than you could ever imagine. Register for an account and see for yourself!
Uncompromising security for your PDF editing and eSignature needs
Your private information is safe with pdfFiller. We employ end-to-end encryption, secure cloud storage, and advanced access control to protect your documents and maintain regulatory compliance.
How to fill out violation details remedy respondent

How to fill out violation details remedy respondent
01
Identify the specific violation details that need to be addressed.
02
Gather all relevant information and documentation related to the violation.
03
Clearly outline the remedy that is being requested from the respondent.
04
Present the violation details and remedy in a clear and organized manner to the respondent.
05
Provide the respondent with an opportunity to respond and address any concerns or objections they may have.
06
Document all communications and responses related to the violation details and remedy.
Who needs violation details remedy respondent?
01
Anyone who has identified a violation and is seeking a remedy from the respondent.
Fill
form
: Try Risk Free
For pdfFiller’s FAQs
Below is a list of the most common customer questions. If you can’t find an answer to your question, please don’t hesitate to reach out to us.
How can I send violation details remedy respondent for eSignature?
Once you are ready to share your violation details remedy respondent, you can easily send it to others and get the eSigned document back just as quickly. Share your PDF by email, fax, text message, or USPS mail, or notarize it online. You can do all of this without ever leaving your account.
How do I complete violation details remedy respondent online?
pdfFiller makes it easy to finish and sign violation details remedy respondent online. It lets you make changes to original PDF content, highlight, black out, erase, and write text anywhere on a page, legally eSign your form, and more, all from one place. Create a free account and use the web to keep track of professional documents.
How do I edit violation details remedy respondent straight from my smartphone?
You may do so effortlessly with pdfFiller's iOS and Android apps, which are available in the Apple Store and Google Play Store, respectively. You may also obtain the program from our website: https://edit-pdf-ios-android.pdffiller.com/. Open the application, sign in, and begin editing violation details remedy respondent right away.
What is violation details remedy respondent?
Violation details remedy respondent refers to the process of addressing and correcting any violations or issues identified by a respondent in response to a complaint or notice.
Who is required to file violation details remedy respondent?
The respondent who has been notified of violations is required to file violation details remedy respondent.
How to fill out violation details remedy respondent?
To fill out violation details remedy respondent, the respondent should carefully review the violations identified, provide a detailed explanation of the remedies implemented or planned, and submit any supporting documentation.
What is the purpose of violation details remedy respondent?
The purpose of violation details remedy respondent is to ensure that respondents take appropriate actions to address and rectify any violations or issues identified in a timely manner.
What information must be reported on violation details remedy respondent?
The violation details remedy respondent should include a description of the violations, the steps taken or planned to remedy them, and any supporting documentation.
Fill out your violation details remedy respondent online with pdfFiller!
pdfFiller is an end-to-end solution for managing, creating, and editing documents and forms in the cloud. Save time and hassle by preparing your tax forms online.

Violation Details Remedy Respondent is not the form you're looking for?Search for another form here.
Relevant keywords
Related Forms
If you believe that this page should be taken down, please follow our DMCA take down process
here
.
This form may include fields for payment information. Data entered in these fields is not covered by PCI DSS compliance.