Get the free pdffiller
Show details
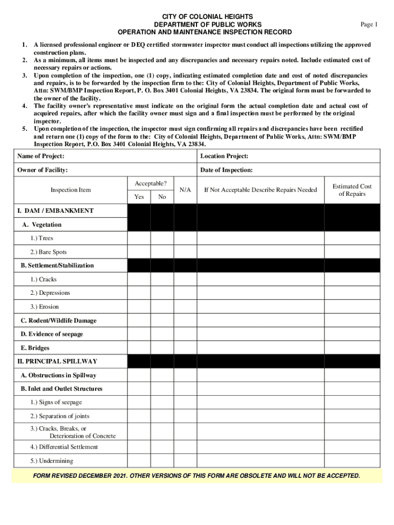
CITY OF COLONIAL HEIGHTS DEPARTMENT OF PUBLIC WORKS OPERATION AND MAINTENANCE INSPECTION RECORD 1. 2. 3.4. 5. Page 1A licensed professional engineer or DEQ certified stormwater inspector must conduct
We are not affiliated with any brand or entity on this form
Get, Create, Make and Sign pdffiller form
Edit your pdffiller form form online
Type text, complete fillable fields, insert images, highlight or blackout data for discretion, add comments, and more.
Add your legally-binding signature
Draw or type your signature, upload a signature image, or capture it with your digital camera.
Share your form instantly
Email, fax, or share your pdffiller form form via URL. You can also download, print, or export forms to your preferred cloud storage service.
Editing pdffiller form online
Follow the guidelines below to benefit from a competent PDF editor:
1
Set up an account. If you are a new user, click Start Free Trial and establish a profile.
2
Prepare a file. Use the Add New button to start a new project. Then, using your device, upload your file to the system by importing it from internal mail, the cloud, or adding its URL.
3
Edit pdffiller form. Replace text, adding objects, rearranging pages, and more. Then select the Documents tab to combine, divide, lock or unlock the file.
4
Save your file. Select it from your list of records. Then, move your cursor to the right toolbar and choose one of the exporting options. You can save it in multiple formats, download it as a PDF, send it by email, or store it in the cloud, among other things.
With pdfFiller, it's always easy to deal with documents. Try it right now
Uncompromising security for your PDF editing and eSignature needs
Your private information is safe with pdfFiller. We employ end-to-end encryption, secure cloud storage, and advanced access control to protect your documents and maintain regulatory compliance.
How to fill out pdffiller form
How to fill out bmp maintenance inspection form
01
Gather all necessary information and tools needed to fill out the form.
02
Start by entering the date of the inspection at the top of the form.
03
Fill out all required fields including site location, inspector's name, and any observed issues or maintenance needs.
04
Use specific details and descriptions when documenting any findings to ensure accurate reporting.
05
Once all sections of the form are completed, review for any errors or missing information before submitting.
Who needs bmp maintenance inspection form?
01
Environmental agencies
02
Construction companies
03
Land developers
04
Property owners
Fill
form
: Try Risk Free
For pdfFiller’s FAQs
Below is a list of the most common customer questions. If you can’t find an answer to your question, please don’t hesitate to reach out to us.
How do I edit pdffiller form online?
The editing procedure is simple with pdfFiller. Open your pdffiller form in the editor. You may also add photos, draw arrows and lines, insert sticky notes and text boxes, and more.
Can I sign the pdffiller form electronically in Chrome?
As a PDF editor and form builder, pdfFiller has a lot of features. It also has a powerful e-signature tool that you can add to your Chrome browser. With our extension, you can type, draw, or take a picture of your signature with your webcam to make your legally-binding eSignature. Choose how you want to sign your pdffiller form and you'll be done in minutes.
How do I edit pdffiller form straight from my smartphone?
The best way to make changes to documents on a mobile device is to use pdfFiller's apps for iOS and Android. You may get them from the Apple Store and Google Play. Learn more about the apps here. To start editing pdffiller form, you need to install and log in to the app.
What is bmp maintenance inspection form?
The BMP maintenance inspection form is a document used to assess the condition and functionality of Best Management Practices (BMPs) for stormwater management.
Who is required to file bmp maintenance inspection form?
Property owners, developers, or contractors responsible for the maintenance of BMPs are required to file the BMP maintenance inspection form.
How to fill out bmp maintenance inspection form?
To fill out the BMP maintenance inspection form, one must conduct a thorough inspection of the BMPs, document any issues or maintenance needs, and submit the completed form to the appropriate regulatory agency.
What is the purpose of bmp maintenance inspection form?
The purpose of the BMP maintenance inspection form is to ensure that BMPs are properly maintained, function effectively, and comply with stormwater regulations.
What information must be reported on bmp maintenance inspection form?
Information reported on the BMP maintenance inspection form typically includes details of the BMPs inspected, their condition, any maintenance performed, and any issues or concerns noted.
Fill out your pdffiller form online with pdfFiller!
pdfFiller is an end-to-end solution for managing, creating, and editing documents and forms in the cloud. Save time and hassle by preparing your tax forms online.
Pdffiller Form is not the form you're looking for?Search for another form here.
Relevant keywords
Related Forms
If you believe that this page should be taken down, please follow our DMCA take down process
here
.
This form may include fields for payment information. Data entered in these fields is not covered by PCI DSS compliance.