Get the free A Complete Guide to Mass Save's Heat Pump Rebates
Show details
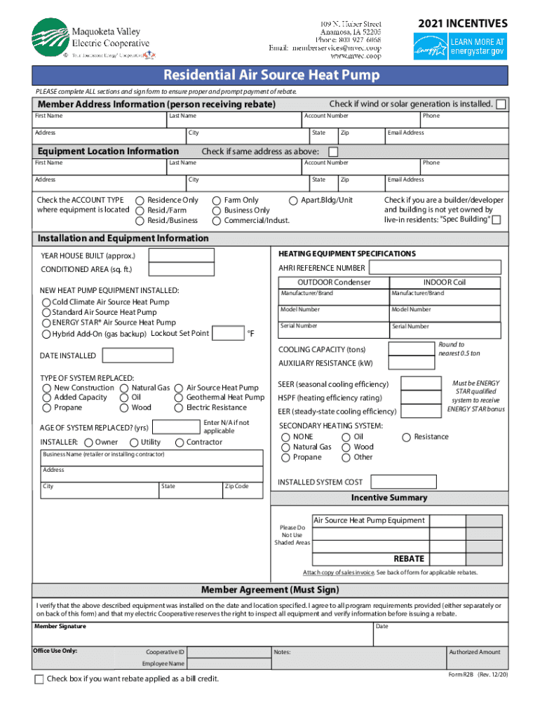
2021 INCENTIVESResidential Air Source Heat Pump
PLEASE complete ALL sections and sign form to ensure proper and prompt payment of rebate. Member Address Information (person receiving rebate)
First
We are not affiliated with any brand or entity on this form
Get, Create, Make and Sign a complete guide to
Edit your a complete guide to form online
Type text, complete fillable fields, insert images, highlight or blackout data for discretion, add comments, and more.
Add your legally-binding signature
Draw or type your signature, upload a signature image, or capture it with your digital camera.
Share your form instantly
Email, fax, or share your a complete guide to form via URL. You can also download, print, or export forms to your preferred cloud storage service.
How to edit a complete guide to online
To use our professional PDF editor, follow these steps:
1
Set up an account. If you are a new user, click Start Free Trial and establish a profile.
2
Prepare a file. Use the Add New button to start a new project. Then, using your device, upload your file to the system by importing it from internal mail, the cloud, or adding its URL.
3
Edit a complete guide to. Replace text, adding objects, rearranging pages, and more. Then select the Documents tab to combine, divide, lock or unlock the file.
4
Save your file. Select it from your records list. Then, click the right toolbar and select one of the various exporting options: save in numerous formats, download as PDF, email, or cloud.
With pdfFiller, it's always easy to deal with documents. Try it right now
Uncompromising security for your PDF editing and eSignature needs
Your private information is safe with pdfFiller. We employ end-to-end encryption, secure cloud storage, and advanced access control to protect your documents and maintain regulatory compliance.
How to fill out a complete guide to
How to fill out a complete guide to
01
Start by gathering all the necessary information and resources for the topic of the guide.
02
Create a clear outline or structure for the guide, including sections and sub-sections.
03
Write detailed and informative content for each section, providing step-by-step instructions or explanations.
04
Use visuals like images, diagrams, or videos to enhance understanding and engagement.
05
Review and revise the guide for accuracy, clarity, and completeness.
06
Publish the guide in a format that is easily accessible to your target audience, such as a PDF or an online webpage.
Who needs a complete guide to?
01
Anyone looking to learn about a specific topic or process in a comprehensive and detailed manner.
02
Students, professionals, hobbyists, or enthusiasts seeking in-depth information and guidance.
Fill
form
: Try Risk Free
For pdfFiller’s FAQs
Below is a list of the most common customer questions. If you can’t find an answer to your question, please don’t hesitate to reach out to us.
Can I create an electronic signature for the a complete guide to in Chrome?
You certainly can. You get not just a feature-rich PDF editor and fillable form builder with pdfFiller, but also a robust e-signature solution that you can add right to your Chrome browser. You may use our addon to produce a legally enforceable eSignature by typing, sketching, or photographing your signature with your webcam. Choose your preferred method and eSign your a complete guide to in minutes.
Can I create an electronic signature for signing my a complete guide to in Gmail?
Create your eSignature using pdfFiller and then eSign your a complete guide to immediately from your email with pdfFiller's Gmail add-on. To keep your signatures and signed papers, you must create an account.
Can I edit a complete guide to on an Android device?
With the pdfFiller Android app, you can edit, sign, and share a complete guide to on your mobile device from any place. All you need is an internet connection to do this. Keep your documents in order from anywhere with the help of the app!
What is a complete guide to?
A complete guide typically provides detailed instructions or information on a specific topic or process.
Who is required to file a complete guide to?
Individuals or businesses who need to provide comprehensive instructions or information may be required to file a complete guide.
How to fill out a complete guide to?
To fill out a complete guide, gather all relevant information and follow the instructions provided in the guide.
What is the purpose of a complete guide to?
The purpose of a complete guide is to provide guidance, instructions, or information in a structured format.
What information must be reported on a complete guide to?
The information required on a complete guide will depend on the specific topic or process being covered.
Fill out your a complete guide to online with pdfFiller!
pdfFiller is an end-to-end solution for managing, creating, and editing documents and forms in the cloud. Save time and hassle by preparing your tax forms online.
A Complete Guide To is not the form you're looking for?Search for another form here.
Relevant keywords
Related Forms
If you believe that this page should be taken down, please follow our DMCA take down process
here
.
This form may include fields for payment information. Data entered in these fields is not covered by PCI DSS compliance.