Get the free Including suburb or 51 Sailors Gully Court, Heathcote VIC 3523
Show details
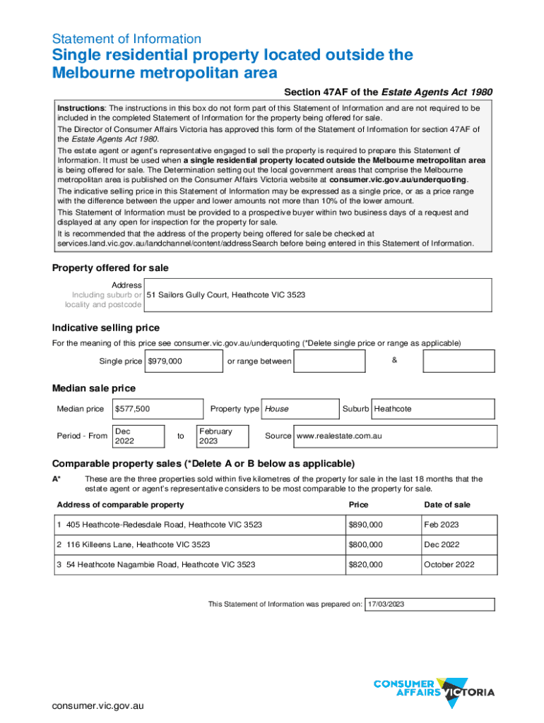
Statement of InformationSingle residential property located outside the Melbourne metropolitan area Section 47AF of the Estate Agents Act 1980 Instructions: The instructions in this box do not form
We are not affiliated with any brand or entity on this form
Get, Create, Make and Sign including suburb or 51
Edit your including suburb or 51 form online
Type text, complete fillable fields, insert images, highlight or blackout data for discretion, add comments, and more.
Add your legally-binding signature
Draw or type your signature, upload a signature image, or capture it with your digital camera.
Share your form instantly
Email, fax, or share your including suburb or 51 form via URL. You can also download, print, or export forms to your preferred cloud storage service.
How to edit including suburb or 51 online
To use the services of a skilled PDF editor, follow these steps:
1
Register the account. Begin by clicking Start Free Trial and create a profile if you are a new user.
2
Prepare a file. Use the Add New button to start a new project. Then, using your device, upload your file to the system by importing it from internal mail, the cloud, or adding its URL.
3
Edit including suburb or 51. Rearrange and rotate pages, add and edit text, and use additional tools. To save changes and return to your Dashboard, click Done. The Documents tab allows you to merge, divide, lock, or unlock files.
4
Get your file. Select the name of your file in the docs list and choose your preferred exporting method. You can download it as a PDF, save it in another format, send it by email, or transfer it to the cloud.
pdfFiller makes dealing with documents a breeze. Create an account to find out!
Uncompromising security for your PDF editing and eSignature needs
Your private information is safe with pdfFiller. We employ end-to-end encryption, secure cloud storage, and advanced access control to protect your documents and maintain regulatory compliance.
How to fill out including suburb or 51
How to fill out including suburb or 51
01
Start by providing the necessary personal information such as name, address, and contact details.
02
Specify the suburb or code 51 where applicable.
03
Fill out any additional fields as required, paying attention to accuracy and completeness.
04
Review the information before submitting to ensure all details are correct.
Who needs including suburb or 51?
01
Individuals residing in suburb or area code 51 who are required to provide personal information for various purposes such as official documentation, applications, or registrations.
Fill
form
: Try Risk Free
For pdfFiller’s FAQs
Below is a list of the most common customer questions. If you can’t find an answer to your question, please don’t hesitate to reach out to us.
How do I modify my including suburb or 51 in Gmail?
It's easy to use pdfFiller's Gmail add-on to make and edit your including suburb or 51 and any other documents you get right in your email. You can also eSign them. Take a look at the Google Workspace Marketplace and get pdfFiller for Gmail. Get rid of the time-consuming steps and easily manage your documents and eSignatures with the help of an app.
Can I create an electronic signature for the including suburb or 51 in Chrome?
Yes. By adding the solution to your Chrome browser, you may use pdfFiller to eSign documents while also enjoying all of the PDF editor's capabilities in one spot. Create a legally enforceable eSignature by sketching, typing, or uploading a photo of your handwritten signature using the extension. Whatever option you select, you'll be able to eSign your including suburb or 51 in seconds.
Can I edit including suburb or 51 on an iOS device?
Use the pdfFiller app for iOS to make, edit, and share including suburb or 51 from your phone. Apple's store will have it up and running in no time. It's possible to get a free trial and choose a subscription plan that fits your needs.
What is including suburb or 51?
Including suburb or 51 refers to the process of including information regarding suburbs or areas with a specific code of 51 in a particular form or document.
Who is required to file including suburb or 51?
Individuals or entities who have suburbs or areas with code 51 within their jurisdiction are required to file including suburb or 51.
How to fill out including suburb or 51?
Including suburb or 51 can be filled out by entering the relevant information about suburbs or areas with code 51 in the designated fields of the form.
What is the purpose of including suburb or 51?
The purpose of including suburb or 51 is to accurately report information about suburbs or areas with code 51 for administrative or statistical purposes.
What information must be reported on including suburb or 51?
The information that must be reported on including suburb or 51 includes details about the demographics, infrastructure, and development of suburbs or areas with code 51.
Fill out your including suburb or 51 online with pdfFiller!
pdfFiller is an end-to-end solution for managing, creating, and editing documents and forms in the cloud. Save time and hassle by preparing your tax forms online.
Including Suburb Or 51 is not the form you're looking for?Search for another form here.
Relevant keywords
Related Forms
If you believe that this page should be taken down, please follow our DMCA take down process
here
.
This form may include fields for payment information. Data entered in these fields is not covered by PCI DSS compliance.