
Get the free 62 Renaissance Boulevard Mernda VIC 3754
Show details
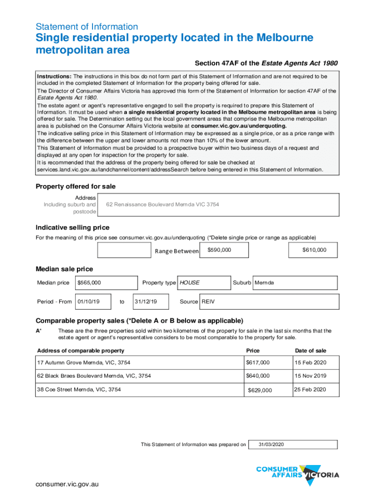
Statement of InformationSingle residential property located in the Melbourne metropolitan area Section 47AF of the Estate Agents Act 1980 Instructions: The instructions in this box do not form part
We are not affiliated with any brand or entity on this form
Get, Create, Make and Sign 62 renaissance boulevard mernda

Edit your 62 renaissance boulevard mernda form online
Type text, complete fillable fields, insert images, highlight or blackout data for discretion, add comments, and more.

Add your legally-binding signature
Draw or type your signature, upload a signature image, or capture it with your digital camera.

Share your form instantly
Email, fax, or share your 62 renaissance boulevard mernda form via URL. You can also download, print, or export forms to your preferred cloud storage service.
Editing 62 renaissance boulevard mernda online
Follow the steps down below to use a professional PDF editor:
1
Log in. Click Start Free Trial and create a profile if necessary.
2
Upload a document. Select Add New on your Dashboard and transfer a file into the system in one of the following ways: by uploading it from your device or importing from the cloud, web, or internal mail. Then, click Start editing.
3
Edit 62 renaissance boulevard mernda. Replace text, adding objects, rearranging pages, and more. Then select the Documents tab to combine, divide, lock or unlock the file.
4
Save your file. Choose it from the list of records. Then, shift the pointer to the right toolbar and select one of the several exporting methods: save it in multiple formats, download it as a PDF, email it, or save it to the cloud.
With pdfFiller, it's always easy to work with documents.
Uncompromising security for your PDF editing and eSignature needs
Your private information is safe with pdfFiller. We employ end-to-end encryption, secure cloud storage, and advanced access control to protect your documents and maintain regulatory compliance.
How to fill out 62 renaissance boulevard mernda

How to fill out 62 renaissance boulevard mernda
01
Start by preparing all the necessary information such as name, contact details, and any other relevant details.
02
Begin by indicating the recipient's name and contact information on the designated fields.
03
Write '62 Renaissance Boulevard' in the address field followed by 'Mernda' in the city field.
04
Make sure to include any additional information such as unit or apartment number, if applicable.
05
Double-check all the details filled out to ensure accuracy before sending.
Who needs 62 renaissance boulevard mernda?
01
Individuals or entities who need to send mail or packages to 62 Renaissance Boulevard in Mernda would require this address.
Fill
form
: Try Risk Free
For pdfFiller’s FAQs
Below is a list of the most common customer questions. If you can’t find an answer to your question, please don’t hesitate to reach out to us.
How do I complete 62 renaissance boulevard mernda online?
pdfFiller has made filling out and eSigning 62 renaissance boulevard mernda easy. The solution is equipped with a set of features that enable you to edit and rearrange PDF content, add fillable fields, and eSign the document. Start a free trial to explore all the capabilities of pdfFiller, the ultimate document editing solution.
How do I make edits in 62 renaissance boulevard mernda without leaving Chrome?
Install the pdfFiller Google Chrome Extension to edit 62 renaissance boulevard mernda and other documents straight from Google search results. When reading documents in Chrome, you may edit them. Create fillable PDFs and update existing PDFs using pdfFiller.
How do I fill out the 62 renaissance boulevard mernda form on my smartphone?
On your mobile device, use the pdfFiller mobile app to complete and sign 62 renaissance boulevard mernda. Visit our website (https://edit-pdf-ios-android.pdffiller.com/) to discover more about our mobile applications, the features you'll have access to, and how to get started.
What is 62 renaissance boulevard mernda?
62 Renaissance Boulevard Mernda is a specific address/location.
Who is required to file 62 renaissance boulevard mernda?
The specific requirement to file 62 Renaissance Boulevard Mernda depends on the context, please provide more details.
How to fill out 62 renaissance boulevard mernda?
The method to fill out 62 Renaissance Boulevard Mernda depends on the purpose of the form/documentation associated with it.
What is the purpose of 62 renaissance boulevard mernda?
The purpose of 62 Renaissance Boulevard Mernda may vary depending on the context, please provide more details.
What information must be reported on 62 renaissance boulevard mernda?
The specific information that must be reported on 62 Renaissance Boulevard Mernda depends on the requirements associated with it.
Fill out your 62 renaissance boulevard mernda online with pdfFiller!
pdfFiller is an end-to-end solution for managing, creating, and editing documents and forms in the cloud. Save time and hassle by preparing your tax forms online.

62 Renaissance Boulevard Mernda is not the form you're looking for?Search for another form here.
Relevant keywords
Related Forms
If you believe that this page should be taken down, please follow our DMCA take down process
here
.
This form may include fields for payment information. Data entered in these fields is not covered by PCI DSS compliance.