Get the free Building Division Contact Information - Benton County Oregon
Show details
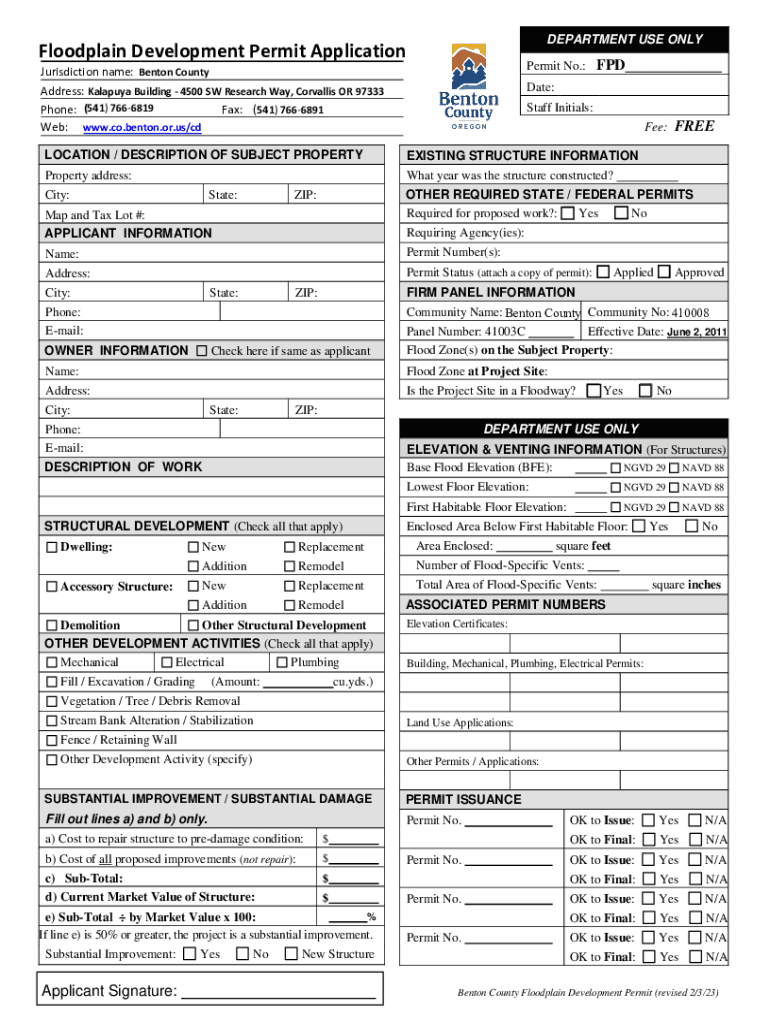
DEPARTMENT USE ONLYFloodplain Development Permit ApplicationPermit No.:Jurisdiction name: Benton County Address: Malaya Building 4500 SW Research Way, Corvallis OR 97333 Phone: (541) 7666819 Fax:
We are not affiliated with any brand or entity on this form
Get, Create, Make and Sign building division contact information
Edit your building division contact information form online
Type text, complete fillable fields, insert images, highlight or blackout data for discretion, add comments, and more.
Add your legally-binding signature
Draw or type your signature, upload a signature image, or capture it with your digital camera.
Share your form instantly
Email, fax, or share your building division contact information form via URL. You can also download, print, or export forms to your preferred cloud storage service.
Editing building division contact information online
To use our professional PDF editor, follow these steps:
1
Set up an account. If you are a new user, click Start Free Trial and establish a profile.
2
Prepare a file. Use the Add New button to start a new project. Then, using your device, upload your file to the system by importing it from internal mail, the cloud, or adding its URL.
3
Edit building division contact information. Add and change text, add new objects, move pages, add watermarks and page numbers, and more. Then click Done when you're done editing and go to the Documents tab to merge or split the file. If you want to lock or unlock the file, click the lock or unlock button.
4
Get your file. Select the name of your file in the docs list and choose your preferred exporting method. You can download it as a PDF, save it in another format, send it by email, or transfer it to the cloud.
It's easier to work with documents with pdfFiller than you can have believed. You may try it out for yourself by signing up for an account.
Uncompromising security for your PDF editing and eSignature needs
Your private information is safe with pdfFiller. We employ end-to-end encryption, secure cloud storage, and advanced access control to protect your documents and maintain regulatory compliance.
How to fill out building division contact information
How to fill out building division contact information
01
Start by gathering all necessary information such as name of the building division, address, phone number, and email.
02
Double check the information to ensure accuracy before filling out the forms or entering the information online.
03
Make sure to include any additional details requested, such as building permit numbers or project information.
04
Submit the completed contact information form through the appropriate channels, whether it be online, in person, or by mail.
Who needs building division contact information?
01
Contractors who need to request building permits or schedule inspections.
02
Architects and engineers who need to submit plans or seek approval for building design.
03
Property owners who are planning construction or renovation projects.
04
Government officials or regulatory agencies overseeing building codes and zoning regulations.
Fill
form
: Try Risk Free
For pdfFiller’s FAQs
Below is a list of the most common customer questions. If you can’t find an answer to your question, please don’t hesitate to reach out to us.
How can I modify building division contact information without leaving Google Drive?
People who need to keep track of documents and fill out forms quickly can connect PDF Filler to their Google Docs account. This means that they can make, edit, and sign documents right from their Google Drive. Make your building division contact information into a fillable form that you can manage and sign from any internet-connected device with this add-on.
How can I get building division contact information?
The pdfFiller premium subscription gives you access to a large library of fillable forms (over 25 million fillable templates) that you can download, fill out, print, and sign. In the library, you'll have no problem discovering state-specific building division contact information and other forms. Find the template you want and tweak it with powerful editing tools.
Can I sign the building division contact information electronically in Chrome?
As a PDF editor and form builder, pdfFiller has a lot of features. It also has a powerful e-signature tool that you can add to your Chrome browser. With our extension, you can type, draw, or take a picture of your signature with your webcam to make your legally-binding eSignature. Choose how you want to sign your building division contact information and you'll be done in minutes.
What is building division contact information?
Building division contact information consists of the contact details for the department responsible for overseeing building construction and permits.
Who is required to file building division contact information?
Property owners, developers, and contractors involved in construction projects are typically required to file building division contact information.
How to fill out building division contact information?
Building division contact information can usually be filled out online through a designated portal or submitted in person at the relevant department's office.
What is the purpose of building division contact information?
The purpose of building division contact information is to ensure effective communication between stakeholders involved in construction projects and the overseeing department.
What information must be reported on building division contact information?
Typically, building division contact information requires details such as project location, contact person's name, phone number, email address, and project description.
Fill out your building division contact information online with pdfFiller!
pdfFiller is an end-to-end solution for managing, creating, and editing documents and forms in the cloud. Save time and hassle by preparing your tax forms online.
Building Division Contact Information is not the form you're looking for?Search for another form here.
Relevant keywords
Related Forms
If you believe that this page should be taken down, please follow our DMCA take down process
here
.
This form may include fields for payment information. Data entered in these fields is not covered by PCI DSS compliance.