Get the free Application for Building Permit Contractor
Show details
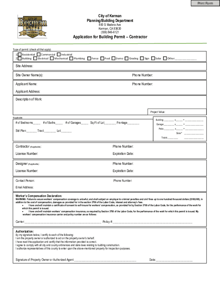
Print Ferocity of German Planning/Building Department 850 S Madera Ave German, CA 93630 (559) 8466121Application for Building Permit Contractor Type of permit: (check all that apply) 1) __ Residential
We are not affiliated with any brand or entity on this form
Get, Create, Make and Sign application for building permit
Edit your application for building permit form online
Type text, complete fillable fields, insert images, highlight or blackout data for discretion, add comments, and more.
Add your legally-binding signature
Draw or type your signature, upload a signature image, or capture it with your digital camera.
Share your form instantly
Email, fax, or share your application for building permit form via URL. You can also download, print, or export forms to your preferred cloud storage service.
How to edit application for building permit online
Use the instructions below to start using our professional PDF editor:
1
Log in. Click Start Free Trial and create a profile if necessary.
2
Upload a file. Select Add New on your Dashboard and upload a file from your device or import it from the cloud, online, or internal mail. Then click Edit.
3
Edit application for building permit. Rearrange and rotate pages, add and edit text, and use additional tools. To save changes and return to your Dashboard, click Done. The Documents tab allows you to merge, divide, lock, or unlock files.
4
Get your file. Select your file from the documents list and pick your export method. You may save it as a PDF, email it, or upload it to the cloud.
It's easier to work with documents with pdfFiller than you could have believed. You can sign up for an account to see for yourself.
Uncompromising security for your PDF editing and eSignature needs
Your private information is safe with pdfFiller. We employ end-to-end encryption, secure cloud storage, and advanced access control to protect your documents and maintain regulatory compliance.
How to fill out application for building permit
How to fill out application for building permit
01
Obtain the necessary forms from your local building department.
02
Fill out the application completely, including all required information such as project description, property owner information, contractor information, and drawings or plans.
03
Submit the completed application along with any required documents and fees to the building department.
04
Wait for the application to be reviewed and either approved or denied by the building department.
05
If approved, obtain the building permit and display it prominently at the construction site.
Who needs application for building permit?
01
Anyone who is planning to construct, alter, or demolish a building or structure within a jurisdiction that requires building permits.
Fill
form
: Try Risk Free
For pdfFiller’s FAQs
Below is a list of the most common customer questions. If you can’t find an answer to your question, please don’t hesitate to reach out to us.
How do I complete application for building permit online?
With pdfFiller, you may easily complete and sign application for building permit online. It lets you modify original PDF material, highlight, blackout, erase, and write text anywhere on a page, legally eSign your document, and do a lot more. Create a free account to handle professional papers online.
How do I make changes in application for building permit?
pdfFiller not only lets you change the content of your files, but you can also change the number and order of pages. Upload your application for building permit to the editor and make any changes in a few clicks. The editor lets you black out, type, and erase text in PDFs. You can also add images, sticky notes, and text boxes, as well as many other things.
Can I sign the application for building permit electronically in Chrome?
Yes. You can use pdfFiller to sign documents and use all of the features of the PDF editor in one place if you add this solution to Chrome. In order to use the extension, you can draw or write an electronic signature. You can also upload a picture of your handwritten signature. There is no need to worry about how long it takes to sign your application for building permit.
What is application for building permit?
An application for building permit is a formal request to obtain approval from the local government to begin construction or renovation of a building.
Who is required to file application for building permit?
Any individual or entity planning to construct or renovate a building is required to file an application for a building permit.
How to fill out application for building permit?
The application for a building permit must be filled out with all necessary information related to the construction or renovation project, including building plans, specifications, and project details.
What is the purpose of application for building permit?
The purpose of the application for building permit is to ensure that construction projects comply with building codes, safety regulations, and zoning requirements.
What information must be reported on application for building permit?
The application for building permit must include details such as project location, type of construction, proposed building materials, and estimated project cost.
Fill out your application for building permit online with pdfFiller!
pdfFiller is an end-to-end solution for managing, creating, and editing documents and forms in the cloud. Save time and hassle by preparing your tax forms online.
Application For Building Permit is not the form you're looking for?Search for another form here.
Relevant keywords
Related Forms
If you believe that this page should be taken down, please follow our DMCA take down process
here
.
This form may include fields for payment information. Data entered in these fields is not covered by PCI DSS compliance.