Get the Need A Free Architecture Designing App? Check Our List
Show details
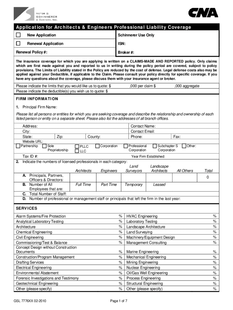
Application for Architects & Engineers Professional Liability Coverage New ApplicationSchinnerer Use OnlyRenewal Application ISN:Renewal Policy #:Broker #:The insurance coverage for which you are
We are not affiliated with any brand or entity on this form
Get, Create, Make and Sign need a architecture designing
Edit your need a architecture designing form online
Type text, complete fillable fields, insert images, highlight or blackout data for discretion, add comments, and more.
Add your legally-binding signature
Draw or type your signature, upload a signature image, or capture it with your digital camera.
Share your form instantly
Email, fax, or share your need a architecture designing form via URL. You can also download, print, or export forms to your preferred cloud storage service.
How to edit need a architecture designing online
Use the instructions below to start using our professional PDF editor:
1
Set up an account. If you are a new user, click Start Free Trial and establish a profile.
2
Upload a file. Select Add New on your Dashboard and upload a file from your device or import it from the cloud, online, or internal mail. Then click Edit.
3
Edit need a architecture designing. Rearrange and rotate pages, insert new and alter existing texts, add new objects, and take advantage of other helpful tools. Click Done to apply changes and return to your Dashboard. Go to the Documents tab to access merging, splitting, locking, or unlocking functions.
4
Get your file. Select your file from the documents list and pick your export method. You may save it as a PDF, email it, or upload it to the cloud.
It's easier to work with documents with pdfFiller than you can have believed. You may try it out for yourself by signing up for an account.
Uncompromising security for your PDF editing and eSignature needs
Your private information is safe with pdfFiller. We employ end-to-end encryption, secure cloud storage, and advanced access control to protect your documents and maintain regulatory compliance.
How to fill out need a architecture designing
How to fill out need a architecture designing
01
Identify project requirements and objectives
02
Determine the budget and resources available
03
Brainstorm and sketch out initial design ideas
04
Consult with clients, stakeholders, and experts to gather feedback
05
Create detailed architectural drawings and plans
06
Incorporate feedback and make any necessary revisions
07
Finalize the design and present it to the client for approval
Who needs need a architecture designing?
01
Architects
02
Developers
03
Property owners
04
Construction companies
Fill
form
: Try Risk Free
For pdfFiller’s FAQs
Below is a list of the most common customer questions. If you can’t find an answer to your question, please don’t hesitate to reach out to us.
How can I send need a architecture designing for eSignature?
Once your need a architecture designing is complete, you can securely share it with recipients and gather eSignatures with pdfFiller in just a few clicks. You may transmit a PDF by email, text message, fax, USPS mail, or online notarization directly from your account. Make an account right now and give it a go.
How do I make changes in need a architecture designing?
pdfFiller allows you to edit not only the content of your files, but also the quantity and sequence of the pages. Upload your need a architecture designing to the editor and make adjustments in a matter of seconds. Text in PDFs may be blacked out, typed in, and erased using the editor. You may also include photos, sticky notes, and text boxes, among other things.
Can I create an eSignature for the need a architecture designing in Gmail?
Upload, type, or draw a signature in Gmail with the help of pdfFiller’s add-on. pdfFiller enables you to eSign your need a architecture designing and other documents right in your inbox. Register your account in order to save signed documents and your personal signatures.
What is need a architecture designing?
Need a architecture designing is a process of planning and creating the structure of a building or space.
Who is required to file need a architecture designing?
Any individual or organization looking to construct a building or renovate a space may require architecture designing.
How to fill out need a architecture designing?
Need a architecture designing can be filled out by hiring a professional architect or design firm.
What is the purpose of need a architecture designing?
The purpose of need a architecture designing is to ensure that the building or space is functional, aesthetically pleasing, and meets the requirements of the client.
What information must be reported on need a architecture designing?
Information such as building plans, materials used, structural details, and budget estimates must be reported on need a architecture designing.
Fill out your need a architecture designing online with pdfFiller!
pdfFiller is an end-to-end solution for managing, creating, and editing documents and forms in the cloud. Save time and hassle by preparing your tax forms online.
Need A Architecture Designing is not the form you're looking for?Search for another form here.
Relevant keywords
Related Forms
If you believe that this page should be taken down, please follow our DMCA take down process
here
.
This form may include fields for payment information. Data entered in these fields is not covered by PCI DSS compliance.