
Get the free How to Prepare for an Appraisal Review Board (ARB) Hearing ...
Show details
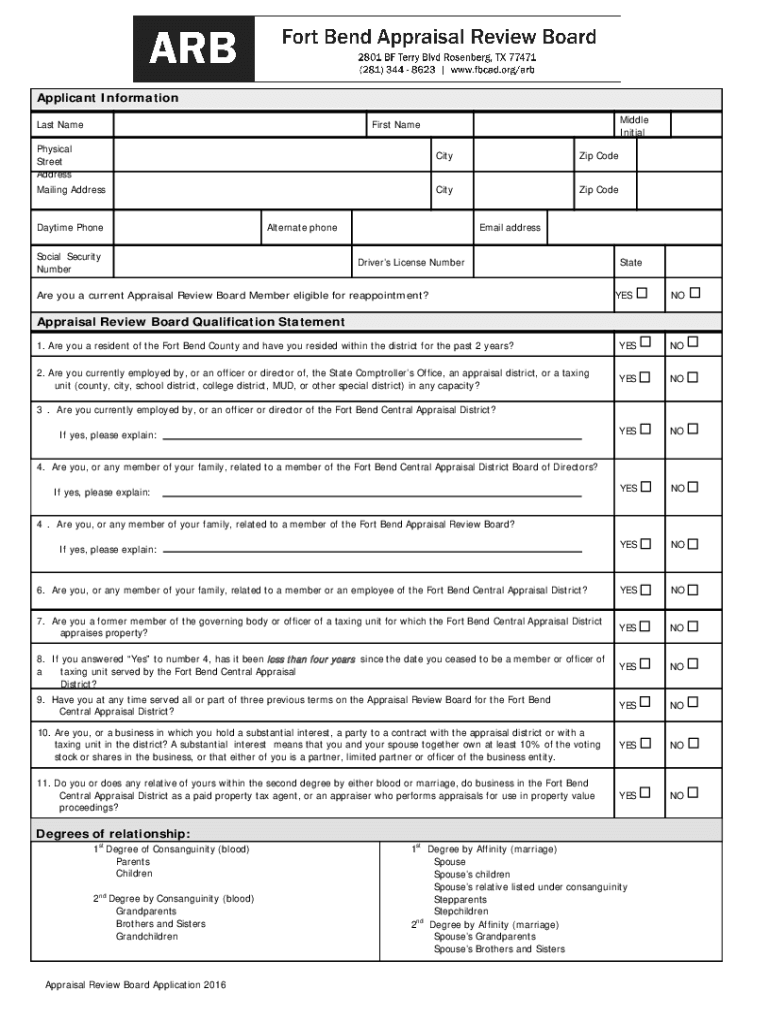
Dear Prospective Appraisal Review Board Member, Your interest in becoming a Fort Bend Appraisal Review Board (ARB) member is appreciated. The ARB comprises independent, private citizens, appointed
We are not affiliated with any brand or entity on this form
Get, Create, Make and Sign how to prepare for

Edit your how to prepare for form online
Type text, complete fillable fields, insert images, highlight or blackout data for discretion, add comments, and more.

Add your legally-binding signature
Draw or type your signature, upload a signature image, or capture it with your digital camera.

Share your form instantly
Email, fax, or share your how to prepare for form via URL. You can also download, print, or export forms to your preferred cloud storage service.
Editing how to prepare for online
Follow the guidelines below to take advantage of the professional PDF editor:
1
Log into your account. If you don't have a profile yet, click Start Free Trial and sign up for one.
2
Prepare a file. Use the Add New button to start a new project. Then, using your device, upload your file to the system by importing it from internal mail, the cloud, or adding its URL.
3
Edit how to prepare for. Add and change text, add new objects, move pages, add watermarks and page numbers, and more. Then click Done when you're done editing and go to the Documents tab to merge or split the file. If you want to lock or unlock the file, click the lock or unlock button.
4
Get your file. Select the name of your file in the docs list and choose your preferred exporting method. You can download it as a PDF, save it in another format, send it by email, or transfer it to the cloud.
pdfFiller makes working with documents easier than you could ever imagine. Register for an account and see for yourself!
Uncompromising security for your PDF editing and eSignature needs
Your private information is safe with pdfFiller. We employ end-to-end encryption, secure cloud storage, and advanced access control to protect your documents and maintain regulatory compliance.
How to fill out how to prepare for

How to fill out how to prepare for
01
Research the topic or area you need to prepare for
02
Create a study schedule and set goals
03
Gather necessary materials and resources
04
Practice regularly and review your progress
05
Stay motivated and focused on your preparation
Who needs how to prepare for?
01
Students preparing for exams
02
Professionals getting ready for a job interview
03
Athletes preparing for a competition
04
Individuals planning for a presentation or speech
Fill
form
: Try Risk Free
For pdfFiller’s FAQs
Below is a list of the most common customer questions. If you can’t find an answer to your question, please don’t hesitate to reach out to us.
How do I modify my how to prepare for in Gmail?
Using pdfFiller's Gmail add-on, you can edit, fill out, and sign your how to prepare for and other papers directly in your email. You may get it through Google Workspace Marketplace. Make better use of your time by handling your papers and eSignatures.
How do I edit how to prepare for on an iOS device?
You can. Using the pdfFiller iOS app, you can edit, distribute, and sign how to prepare for. Install it in seconds at the Apple Store. The app is free, but you must register to buy a subscription or start a free trial.
Can I edit how to prepare for on an Android device?
You can make any changes to PDF files, like how to prepare for, with the help of the pdfFiller Android app. Edit, sign, and send documents right from your phone or tablet. You can use the app to make document management easier wherever you are.
What is how to prepare for?
Preparing for a task or event by gathering necessary information or resources.
Who is required to file how to prepare for?
Anyone who needs to be prepared for a specific task or event.
How to fill out how to prepare for?
By organizing information, creating a plan, and gathering necessary resources.
What is the purpose of how to prepare for?
To ensure successful completion of a task or event by being well-prepared.
What information must be reported on how to prepare for?
Information related to the specific task or event that needs preparation.
Fill out your how to prepare for online with pdfFiller!
pdfFiller is an end-to-end solution for managing, creating, and editing documents and forms in the cloud. Save time and hassle by preparing your tax forms online.

How To Prepare For is not the form you're looking for?Search for another form here.
Relevant keywords
Related Forms
If you believe that this page should be taken down, please follow our DMCA take down process
here
.
This form may include fields for payment information. Data entered in these fields is not covered by PCI DSS compliance.