Get the free Educational Occupancy Fire Inspection Form
Show details
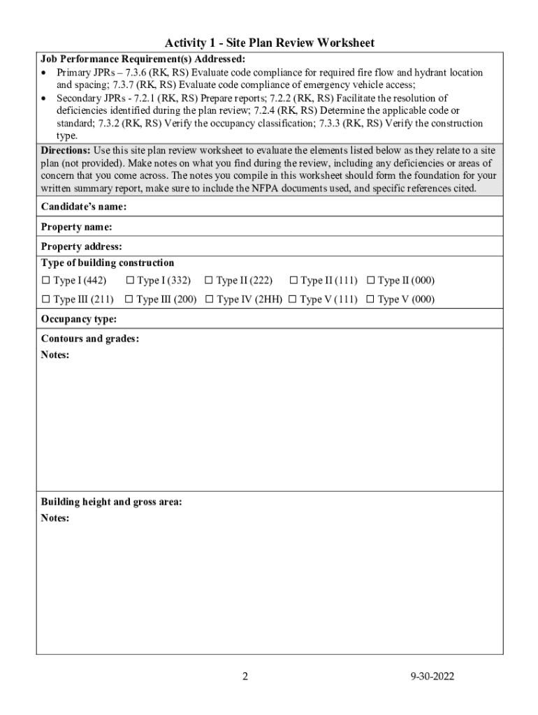
NFPA Certified Fire Plan Examiner PRACTICUM PHASE EXERCISES9/30/221CONTENTS Directions3ACTIVITIES Activity 1 Site Plan Review Worksheet3Activity 2 Fire Alarm System Plan Review Worksheet8Activity
We are not affiliated with any brand or entity on this form
Get, Create, Make and Sign educational occupancy fire inspection
Edit your educational occupancy fire inspection form online
Type text, complete fillable fields, insert images, highlight or blackout data for discretion, add comments, and more.
Add your legally-binding signature
Draw or type your signature, upload a signature image, or capture it with your digital camera.
Share your form instantly
Email, fax, or share your educational occupancy fire inspection form via URL. You can also download, print, or export forms to your preferred cloud storage service.
How to edit educational occupancy fire inspection online
Use the instructions below to start using our professional PDF editor:
1
Register the account. Begin by clicking Start Free Trial and create a profile if you are a new user.
2
Simply add a document. Select Add New from your Dashboard and import a file into the system by uploading it from your device or importing it via the cloud, online, or internal mail. Then click Begin editing.
3
Edit educational occupancy fire inspection. Add and change text, add new objects, move pages, add watermarks and page numbers, and more. Then click Done when you're done editing and go to the Documents tab to merge or split the file. If you want to lock or unlock the file, click the lock or unlock button.
4
Save your file. Select it from your records list. Then, click the right toolbar and select one of the various exporting options: save in numerous formats, download as PDF, email, or cloud.
pdfFiller makes dealing with documents a breeze. Create an account to find out!
Uncompromising security for your PDF editing and eSignature needs
Your private information is safe with pdfFiller. We employ end-to-end encryption, secure cloud storage, and advanced access control to protect your documents and maintain regulatory compliance.
How to fill out educational occupancy fire inspection
How to fill out educational occupancy fire inspection
01
Gather all necessary documentation such as floorplans, building layout, and occupancy permits.
02
Ensure all fire safety equipment is properly installed and functioning, including fire alarms, extinguishers, and sprinkler systems.
03
Conduct regular fire drills and practice evacuation procedures with staff and students.
04
Make sure all exits are clearly marked and unobstructed.
05
Keep all hallways and common areas clear of clutter to prevent fire hazards.
Who needs educational occupancy fire inspection?
01
Educational institutions such as schools, colleges, and universities are required to undergo educational occupancy fire inspections.
Fill
form
: Try Risk Free
For pdfFiller’s FAQs
Below is a list of the most common customer questions. If you can’t find an answer to your question, please don’t hesitate to reach out to us.
How can I send educational occupancy fire inspection to be eSigned by others?
Once you are ready to share your educational occupancy fire inspection, you can easily send it to others and get the eSigned document back just as quickly. Share your PDF by email, fax, text message, or USPS mail, or notarize it online. You can do all of this without ever leaving your account.
How can I edit educational occupancy fire inspection on a smartphone?
Using pdfFiller's mobile-native applications for iOS and Android is the simplest method to edit documents on a mobile device. You may get them from the Apple App Store and Google Play, respectively. More information on the apps may be found here. Install the program and log in to begin editing educational occupancy fire inspection.
How can I fill out educational occupancy fire inspection on an iOS device?
pdfFiller has an iOS app that lets you fill out documents on your phone. A subscription to the service means you can make an account or log in to one you already have. As soon as the registration process is done, upload your educational occupancy fire inspection. You can now use pdfFiller's more advanced features, like adding fillable fields and eSigning documents, as well as accessing them from any device, no matter where you are in the world.
What is educational occupancy fire inspection?
Educational occupancy fire inspection is a routine inspection conducted to ensure that educational facilities comply with fire safety regulations and standards.
Who is required to file educational occupancy fire inspection?
Educational institutions such as schools, colleges, universities, and other educational facilities are required to file educational occupancy fire inspections.
How to fill out educational occupancy fire inspection?
To fill out an educational occupancy fire inspection, the designated inspector must visit the educational facility, assess fire safety measures, document any deficiencies, and submit a report to the appropriate authorities.
What is the purpose of educational occupancy fire inspection?
The purpose of educational occupancy fire inspection is to ensure the safety of students, staff, and visitors by identifying and addressing fire hazards in educational facilities.
What information must be reported on educational occupancy fire inspection?
Information reported on an educational occupancy fire inspection typically includes the status of fire alarms, emergency exits, fire extinguishers, sprinkler systems, and other fire safety measures.
Fill out your educational occupancy fire inspection online with pdfFiller!
pdfFiller is an end-to-end solution for managing, creating, and editing documents and forms in the cloud. Save time and hassle by preparing your tax forms online.
Educational Occupancy Fire Inspection is not the form you're looking for?Search for another form here.
Relevant keywords
Related Forms
If you believe that this page should be taken down, please follow our DMCA take down process
here
.
This form may include fields for payment information. Data entered in these fields is not covered by PCI DSS compliance.