Get the free Sturgeon Bay Plumbing plumbing plan review application - ...
Show details
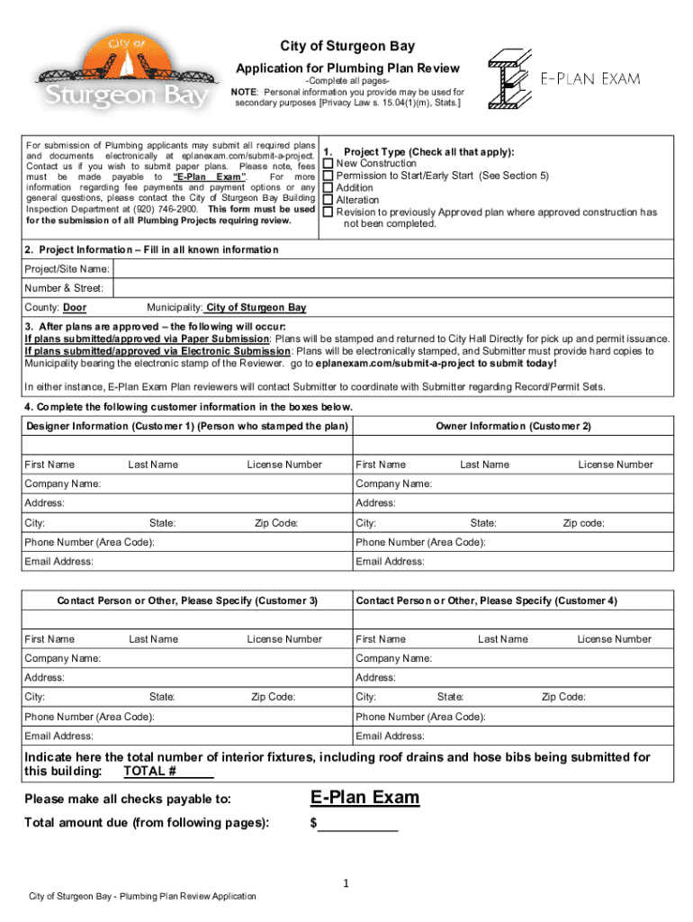
City of Sturgeon Bay Application for Plumbing Plan Review Complete all pageant: Personal information you provide may be used for secondary purposes [Privacy Law s. 15.04(1)(m), Stats.] For submission
We are not affiliated with any brand or entity on this form
Get, Create, Make and Sign sturgeon bay plumbing plumbing
Edit your sturgeon bay plumbing plumbing form online
Type text, complete fillable fields, insert images, highlight or blackout data for discretion, add comments, and more.
Add your legally-binding signature
Draw or type your signature, upload a signature image, or capture it with your digital camera.
Share your form instantly
Email, fax, or share your sturgeon bay plumbing plumbing form via URL. You can also download, print, or export forms to your preferred cloud storage service.
Editing sturgeon bay plumbing plumbing online
To use the professional PDF editor, follow these steps below:
1
Set up an account. If you are a new user, click Start Free Trial and establish a profile.
2
Prepare a file. Use the Add New button to start a new project. Then, using your device, upload your file to the system by importing it from internal mail, the cloud, or adding its URL.
3
Edit sturgeon bay plumbing plumbing. Replace text, adding objects, rearranging pages, and more. Then select the Documents tab to combine, divide, lock or unlock the file.
4
Get your file. Select the name of your file in the docs list and choose your preferred exporting method. You can download it as a PDF, save it in another format, send it by email, or transfer it to the cloud.
With pdfFiller, it's always easy to work with documents. Try it!
Uncompromising security for your PDF editing and eSignature needs
Your private information is safe with pdfFiller. We employ end-to-end encryption, secure cloud storage, and advanced access control to protect your documents and maintain regulatory compliance.
How to fill out sturgeon bay plumbing plumbing
How to fill out sturgeon bay plumbing plumbing
01
Start by gathering all necessary materials and tools such as pipes, fittings, wrenches, plumber's tape, and a plunger.
02
Shut off the main water supply to prevent any leaks or accidents.
03
Remove any obstructions from the drain using a plunger or drain snake.
04
Measure and cut the pipes to the appropriate length using a pipe cutter.
05
Connect the pipes using fittings and plumber's tape to ensure a tight seal.
06
Turn the main water supply back on and check for any leaks or drips.
07
Test the plumbing system by running water through the pipes and checking for proper drainage.
Who needs sturgeon bay plumbing plumbing?
01
Anyone experiencing plumbing issues in Sturgeon Bay, Wisconsin.
Fill
form
: Try Risk Free
For pdfFiller’s FAQs
Below is a list of the most common customer questions. If you can’t find an answer to your question, please don’t hesitate to reach out to us.
How do I edit sturgeon bay plumbing plumbing online?
pdfFiller allows you to edit not only the content of your files, but also the quantity and sequence of the pages. Upload your sturgeon bay plumbing plumbing to the editor and make adjustments in a matter of seconds. Text in PDFs may be blacked out, typed in, and erased using the editor. You may also include photos, sticky notes, and text boxes, among other things.
How do I make edits in sturgeon bay plumbing plumbing without leaving Chrome?
Install the pdfFiller Chrome Extension to modify, fill out, and eSign your sturgeon bay plumbing plumbing, which you can access right from a Google search page. Fillable documents without leaving Chrome on any internet-connected device.
How do I complete sturgeon bay plumbing plumbing on an iOS device?
Install the pdfFiller app on your iOS device to fill out papers. If you have a subscription to the service, create an account or log in to an existing one. After completing the registration process, upload your sturgeon bay plumbing plumbing. You may now use pdfFiller's advanced features, such as adding fillable fields and eSigning documents, and accessing them from any device, wherever you are.
What is sturgeon bay plumbing plumbing?
Sturgeon Bay plumbing plumbing refers to the process of submitting plumbing documentation and information related to plumbing services in Sturgeon Bay.
Who is required to file sturgeon bay plumbing plumbing?
Plumbing contractors, plumbing companies, and individuals performing plumbing services in Sturgeon Bay are required to file sturgeon bay plumbing plumbing.
How to fill out sturgeon bay plumbing plumbing?
To fill out sturgeon bay plumbing plumbing, one must provide detailed information about the plumbing services provided, including the type of services, location, dates, and any other relevant details.
What is the purpose of sturgeon bay plumbing plumbing?
The purpose of sturgeon bay plumbing plumbing is to ensure that plumbing services in Sturgeon Bay meet the necessary standards and regulations to protect public health and safety.
What information must be reported on sturgeon bay plumbing plumbing?
Information such as the type of plumbing services provided, location of the services, dates of service, and any permits or licenses associated with the plumbing work must be reported on sturgeon bay plumbing plumbing.
Fill out your sturgeon bay plumbing plumbing online with pdfFiller!
pdfFiller is an end-to-end solution for managing, creating, and editing documents and forms in the cloud. Save time and hassle by preparing your tax forms online.
Sturgeon Bay Plumbing Plumbing is not the form you're looking for?Search for another form here.
Relevant keywords
Related Forms
If you believe that this page should be taken down, please follow our DMCA take down process
here
.
This form may include fields for payment information. Data entered in these fields is not covered by PCI DSS compliance.