
Get the free Chapter 34A: Existing Structures, California Building Code ...
Show details
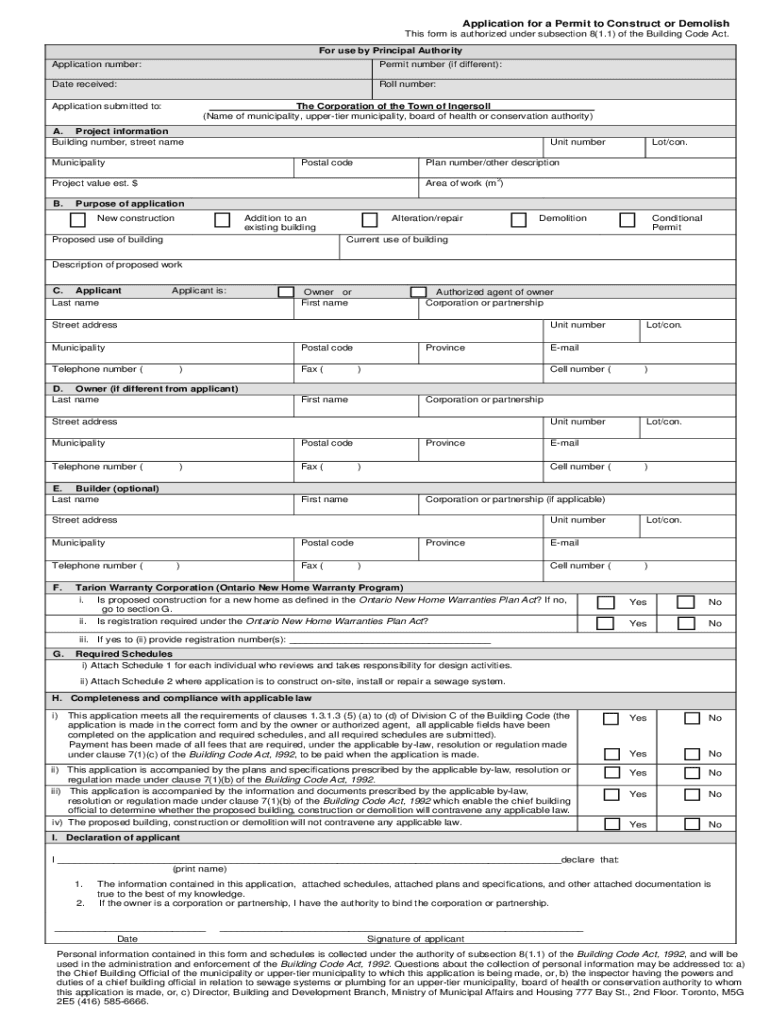
Application for a Permit to Construct or Demolish This form is authorized under subsection 8(1.1) of the Building Code Act. For use by Principal Authority Application number:Permit number (if different):Date
We are not affiliated with any brand or entity on this form
Get, Create, Make and Sign chapter 34a existing structures

Edit your chapter 34a existing structures form online
Type text, complete fillable fields, insert images, highlight or blackout data for discretion, add comments, and more.

Add your legally-binding signature
Draw or type your signature, upload a signature image, or capture it with your digital camera.

Share your form instantly
Email, fax, or share your chapter 34a existing structures form via URL. You can also download, print, or export forms to your preferred cloud storage service.
How to edit chapter 34a existing structures online
To use our professional PDF editor, follow these steps:
1
Set up an account. If you are a new user, click Start Free Trial and establish a profile.
2
Upload a file. Select Add New on your Dashboard and upload a file from your device or import it from the cloud, online, or internal mail. Then click Edit.
3
Edit chapter 34a existing structures. Add and change text, add new objects, move pages, add watermarks and page numbers, and more. Then click Done when you're done editing and go to the Documents tab to merge or split the file. If you want to lock or unlock the file, click the lock or unlock button.
4
Get your file. Select your file from the documents list and pick your export method. You may save it as a PDF, email it, or upload it to the cloud.
Dealing with documents is always simple with pdfFiller. Try it right now
Uncompromising security for your PDF editing and eSignature needs
Your private information is safe with pdfFiller. We employ end-to-end encryption, secure cloud storage, and advanced access control to protect your documents and maintain regulatory compliance.
How to fill out chapter 34a existing structures

How to fill out chapter 34a existing structures
01
Identify the existing structures that need to be included in Chapter 34a.
02
Obtain the necessary documentation and information about the structures.
03
Fill out the form provided by Chapter 34a, making sure to include all relevant details and specifications of the existing structures.
04
Review the completed form for accuracy and completeness before submitting it for approval.
Who needs chapter 34a existing structures?
01
Engineers and architects who are working on projects that involve existing structures.
02
Construction companies and contractors who need to document and assess the condition of existing structures.
03
Government agencies and regulatory bodies that require detailed information about existing structures for safety and compliance purposes.
Fill
form
: Try Risk Free
For pdfFiller’s FAQs
Below is a list of the most common customer questions. If you can’t find an answer to your question, please don’t hesitate to reach out to us.
How can I modify chapter 34a existing structures without leaving Google Drive?
You can quickly improve your document management and form preparation by integrating pdfFiller with Google Docs so that you can create, edit and sign documents directly from your Google Drive. The add-on enables you to transform your chapter 34a existing structures into a dynamic fillable form that you can manage and eSign from any internet-connected device.
How do I make changes in chapter 34a existing structures?
pdfFiller allows you to edit not only the content of your files, but also the quantity and sequence of the pages. Upload your chapter 34a existing structures to the editor and make adjustments in a matter of seconds. Text in PDFs may be blacked out, typed in, and erased using the editor. You may also include photos, sticky notes, and text boxes, among other things.
How can I edit chapter 34a existing structures on a smartphone?
Using pdfFiller's mobile-native applications for iOS and Android is the simplest method to edit documents on a mobile device. You may get them from the Apple App Store and Google Play, respectively. More information on the apps may be found here. Install the program and log in to begin editing chapter 34a existing structures.
What is chapter 34a existing structures?
Chapter 34a existing structures refers to a section of the law that governs the reporting and documentation of existing structures.
Who is required to file chapter 34a existing structures?
Individuals or entities who own or oversee existing structures are required to file chapter 34a existing structures.
How to fill out chapter 34a existing structures?
Chapter 34a existing structures can be filled out by providing relevant information about the existing structures owned or overseen.
What is the purpose of chapter 34a existing structures?
The purpose of chapter 34a existing structures is to ensure that accurate information about existing structures is documented and reported.
What information must be reported on chapter 34a existing structures?
Information such as the location, size, and condition of the existing structures must be reported on chapter 34a existing structures.
Fill out your chapter 34a existing structures online with pdfFiller!
pdfFiller is an end-to-end solution for managing, creating, and editing documents and forms in the cloud. Save time and hassle by preparing your tax forms online.

Chapter 34a Existing Structures is not the form you're looking for?Search for another form here.
Relevant keywords
Related Forms
If you believe that this page should be taken down, please follow our DMCA take down process
here
.
This form may include fields for payment information. Data entered in these fields is not covered by PCI DSS compliance.