
Get the free New Solar Market Development Tax Credit Form 1 Version 073120
Show details
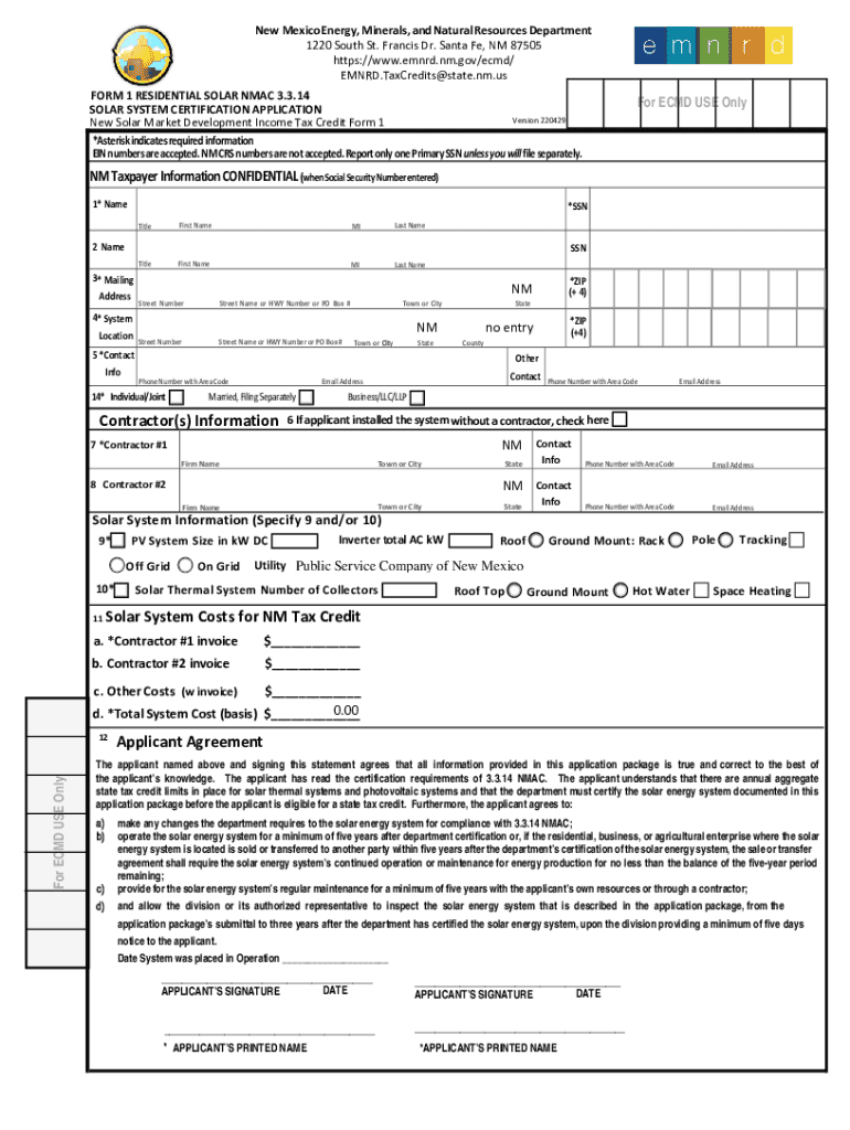
New Mexico Energy, Minerals, and Natural Resources Department 1220 South St. Francis Dr. Santa Fe, NM 87505 https://www.emnrd.nm.gov/ecmd/ EMNRD.TaxCredits@state.nm.us FORM 1 RESIDENTIAL SOLAR MAC
We are not affiliated with any brand or entity on this form
Get, Create, Make and Sign new solar market development

Edit your new solar market development form online
Type text, complete fillable fields, insert images, highlight or blackout data for discretion, add comments, and more.

Add your legally-binding signature
Draw or type your signature, upload a signature image, or capture it with your digital camera.

Share your form instantly
Email, fax, or share your new solar market development form via URL. You can also download, print, or export forms to your preferred cloud storage service.
How to edit new solar market development online
Use the instructions below to start using our professional PDF editor:
1
Create an account. Begin by choosing Start Free Trial and, if you are a new user, establish a profile.
2
Upload a file. Select Add New on your Dashboard and upload a file from your device or import it from the cloud, online, or internal mail. Then click Edit.
3
Edit new solar market development. Rearrange and rotate pages, insert new and alter existing texts, add new objects, and take advantage of other helpful tools. Click Done to apply changes and return to your Dashboard. Go to the Documents tab to access merging, splitting, locking, or unlocking functions.
4
Save your file. Select it in the list of your records. Then, move the cursor to the right toolbar and choose one of the available exporting methods: save it in multiple formats, download it as a PDF, send it by email, or store it in the cloud.
Uncompromising security for your PDF editing and eSignature needs
Your private information is safe with pdfFiller. We employ end-to-end encryption, secure cloud storage, and advanced access control to protect your documents and maintain regulatory compliance.
How to fill out new solar market development

How to fill out new solar market development
01
Research the current solar market trends and demand
02
Identify potential locations for solar projects
03
Obtain necessary permits and approvals for the solar development
04
Secure funding for the project
05
Hire qualified professionals to design and install the solar systems
06
Monitor the progress of the development and make adjustments as needed
07
Promote the new solar market development to attract customers and investors
Who needs new solar market development?
01
Governments looking to promote renewable energy and reduce carbon emissions
02
Businesses seeking to lower their energy costs and demonstrate corporate social responsibility
03
Communities interested in creating local job opportunities and enhancing energy independence
04
Individuals looking to reduce their environmental impact and save money on electricity bills
Fill
form
: Try Risk Free
For pdfFiller’s FAQs
Below is a list of the most common customer questions. If you can’t find an answer to your question, please don’t hesitate to reach out to us.
How can I edit new solar market development from Google Drive?
Using pdfFiller with Google Docs allows you to create, amend, and sign documents straight from your Google Drive. The add-on turns your new solar market development into a dynamic fillable form that you can manage and eSign from anywhere.
How do I edit new solar market development in Chrome?
Download and install the pdfFiller Google Chrome Extension to your browser to edit, fill out, and eSign your new solar market development, which you can open in the editor with a single click from a Google search page. Fillable documents may be executed from any internet-connected device without leaving Chrome.
Can I sign the new solar market development electronically in Chrome?
Yes. You can use pdfFiller to sign documents and use all of the features of the PDF editor in one place if you add this solution to Chrome. In order to use the extension, you can draw or write an electronic signature. You can also upload a picture of your handwritten signature. There is no need to worry about how long it takes to sign your new solar market development.
What is new solar market development?
New solar market development refers to the expansion and growth of the solar energy market through the implementation of new projects and initiatives.
Who is required to file new solar market development?
Companies, organizations, and entities involved in the solar energy industry are required to file new solar market development reports.
How to fill out new solar market development?
To fill out new solar market development reports, companies need to provide detailed information about their projects, including capacity, location, funding sources, and expected outcomes.
What is the purpose of new solar market development?
The purpose of new solar market development is to track and monitor the growth of the solar energy sector, identify trends, and drive investment and innovation in renewable energy.
What information must be reported on new solar market development?
Information such as project size, location, technology used, funding sources, regulatory approvals, and expected timeline must be reported on new solar market development.
Fill out your new solar market development online with pdfFiller!
pdfFiller is an end-to-end solution for managing, creating, and editing documents and forms in the cloud. Save time and hassle by preparing your tax forms online.

New Solar Market Development is not the form you're looking for?Search for another form here.
Relevant keywords
Related Forms
If you believe that this page should be taken down, please follow our DMCA take down process
here
.
This form may include fields for payment information. Data entered in these fields is not covered by PCI DSS compliance.