Get the free Environmental Assessment Form (Short)
Show details
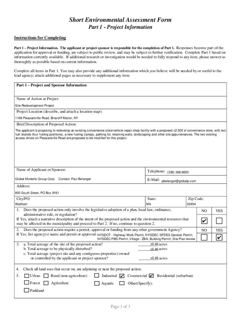
Short Environmental Assessment Form Part 1 Project Information Instructions for Completing Part 1 Project Information. The applicant or project sponsor is responsible for the completion of Part 1.
We are not affiliated with any brand or entity on this form
Get, Create, Make and Sign environmental assessment form short
Edit your environmental assessment form short form online
Type text, complete fillable fields, insert images, highlight or blackout data for discretion, add comments, and more.
Add your legally-binding signature
Draw or type your signature, upload a signature image, or capture it with your digital camera.
Share your form instantly
Email, fax, or share your environmental assessment form short form via URL. You can also download, print, or export forms to your preferred cloud storage service.
Editing environmental assessment form short online
Follow the steps below to take advantage of the professional PDF editor:
1
Log in. Click Start Free Trial and create a profile if necessary.
2
Prepare a file. Use the Add New button. Then upload your file to the system from your device, importing it from internal mail, the cloud, or by adding its URL.
3
Edit environmental assessment form short. Rearrange and rotate pages, add new and changed texts, add new objects, and use other useful tools. When you're done, click Done. You can use the Documents tab to merge, split, lock, or unlock your files.
4
Get your file. Select your file from the documents list and pick your export method. You may save it as a PDF, email it, or upload it to the cloud.
It's easier to work with documents with pdfFiller than you can have ever thought. You can sign up for an account to see for yourself.
Uncompromising security for your PDF editing and eSignature needs
Your private information is safe with pdfFiller. We employ end-to-end encryption, secure cloud storage, and advanced access control to protect your documents and maintain regulatory compliance.
How to fill out environmental assessment form short
How to fill out environmental assessment form short
01
Read the instructions provided on the form carefully.
02
Fill in all the required fields with accurate information.
03
Provide any relevant documentation or evidence to support your answers.
04
Double check your responses before submitting the form.
Who needs environmental assessment form short?
01
Anyone involved in a project that may have an impact on the environment.
02
Government agencies responsible for approving projects.
03
Environmental consultants conducting assessments.
Fill
form
: Try Risk Free
For pdfFiller’s FAQs
Below is a list of the most common customer questions. If you can’t find an answer to your question, please don’t hesitate to reach out to us.
Where do I find environmental assessment form short?
The premium version of pdfFiller gives you access to a huge library of fillable forms (more than 25 million fillable templates). You can download, fill out, print, and sign them all. State-specific environmental assessment form short and other forms will be easy to find in the library. Find the template you need and use advanced editing tools to make it your own.
Can I create an eSignature for the environmental assessment form short in Gmail?
With pdfFiller's add-on, you may upload, type, or draw a signature in Gmail. You can eSign your environmental assessment form short and other papers directly in your mailbox with pdfFiller. To preserve signed papers and your personal signatures, create an account.
How do I edit environmental assessment form short on an Android device?
The pdfFiller app for Android allows you to edit PDF files like environmental assessment form short. Mobile document editing, signing, and sending. Install the app to ease document management anywhere.
What is environmental assessment form short?
The environmental assessment form short is a condensed version of the full environmental assessment form.
Who is required to file environmental assessment form short?
Anyone undertaking a project that may have environmental impacts is required to file the environmental assessment form short.
How to fill out environmental assessment form short?
The environmental assessment form short can be filled out online or submitted in person at the designated office.
What is the purpose of environmental assessment form short?
The purpose of the environmental assessment form short is to assess and mitigate potential environmental impacts of a project.
What information must be reported on environmental assessment form short?
The environmental assessment form short requires information on the project description, potential environmental impacts, and proposed mitigation measures.
Fill out your environmental assessment form short online with pdfFiller!
pdfFiller is an end-to-end solution for managing, creating, and editing documents and forms in the cloud. Save time and hassle by preparing your tax forms online.
Environmental Assessment Form Short is not the form you're looking for?Search for another form here.
Relevant keywords
Related Forms
If you believe that this page should be taken down, please follow our DMCA take down process
here
.
This form may include fields for payment information. Data entered in these fields is not covered by PCI DSS compliance.