
Get the free Building Inspection/Building Permits
Show details
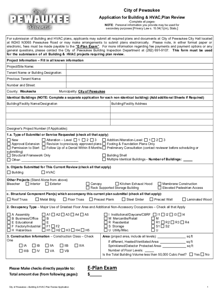
City of Peaked Application for Building & HVAC, Plan Review Complete all pageant: Personal information you provide may be used for secondary purposes [Privacy Law s. 15.04(1)(m), Stats.] For submission
We are not affiliated with any brand or entity on this form
Get, Create, Make and Sign building inspectionbuilding permits

Edit your building inspectionbuilding permits form online
Type text, complete fillable fields, insert images, highlight or blackout data for discretion, add comments, and more.

Add your legally-binding signature
Draw or type your signature, upload a signature image, or capture it with your digital camera.

Share your form instantly
Email, fax, or share your building inspectionbuilding permits form via URL. You can also download, print, or export forms to your preferred cloud storage service.
How to edit building inspectionbuilding permits online
Use the instructions below to start using our professional PDF editor:
1
Log in. Click Start Free Trial and create a profile if necessary.
2
Simply add a document. Select Add New from your Dashboard and import a file into the system by uploading it from your device or importing it via the cloud, online, or internal mail. Then click Begin editing.
3
Edit building inspectionbuilding permits. Rearrange and rotate pages, insert new and alter existing texts, add new objects, and take advantage of other helpful tools. Click Done to apply changes and return to your Dashboard. Go to the Documents tab to access merging, splitting, locking, or unlocking functions.
4
Save your file. Select it from your list of records. Then, move your cursor to the right toolbar and choose one of the exporting options. You can save it in multiple formats, download it as a PDF, send it by email, or store it in the cloud, among other things.
It's easier to work with documents with pdfFiller than you could have ever thought. You may try it out for yourself by signing up for an account.
Uncompromising security for your PDF editing and eSignature needs
Your private information is safe with pdfFiller. We employ end-to-end encryption, secure cloud storage, and advanced access control to protect your documents and maintain regulatory compliance.
How to fill out building inspectionbuilding permits

How to fill out building inspectionbuilding permits
01
Determine the type of building inspection or permit you need based on the project you are undertaking.
02
Check with your local building department to see what forms and documents are required for the application process.
03
Fill out the necessary forms completely and accurately, providing all requested information about the project.
04
Submit the completed forms along with any required fees to the building department.
05
Wait for the building department to review your application and either approve or deny the permit.
06
If approved, schedule any necessary inspections as required throughout the construction process.
07
Once the project is completed and passes all inspections, obtain a final approval from the building department.
Who needs building inspectionbuilding permits?
01
Homeowners planning to make renovations or additions to their property.
02
Contractors or builders working on new construction projects.
03
Architects or engineers designing buildings that need to meet building codes.
04
Property developers looking to subdivide land or build multiple structures.
Fill
form
: Try Risk Free
For pdfFiller’s FAQs
Below is a list of the most common customer questions. If you can’t find an answer to your question, please don’t hesitate to reach out to us.
How do I make changes in building inspectionbuilding permits?
pdfFiller not only allows you to edit the content of your files but fully rearrange them by changing the number and sequence of pages. Upload your building inspectionbuilding permits to the editor and make any required adjustments in a couple of clicks. The editor enables you to blackout, type, and erase text in PDFs, add images, sticky notes and text boxes, and much more.
How do I edit building inspectionbuilding permits in Chrome?
Download and install the pdfFiller Google Chrome Extension to your browser to edit, fill out, and eSign your building inspectionbuilding permits, which you can open in the editor with a single click from a Google search page. Fillable documents may be executed from any internet-connected device without leaving Chrome.
Can I create an eSignature for the building inspectionbuilding permits in Gmail?
You can easily create your eSignature with pdfFiller and then eSign your building inspectionbuilding permits directly from your inbox with the help of pdfFiller’s add-on for Gmail. Please note that you must register for an account in order to save your signatures and signed documents.
What is building inspectionbuilding permits?
Building inspection permits are required approvals from a local government authority to ensure that a building complies with relevant building codes and regulations before construction can begin.
Who is required to file building inspectionbuilding permits?
Property owners or contractors responsible for the construction or renovation of a building are required to file building inspection permits.
How to fill out building inspectionbuilding permits?
Building inspection permits typically require detailed information about the proposed construction project, including building plans, type of materials used, and intended use of the building.
What is the purpose of building inspectionbuilding permits?
The purpose of building inspection permits is to ensure that buildings are constructed or renovated in compliance with safety and building codes, to protect public health and safety.
What information must be reported on building inspectionbuilding permits?
Information such as building plans, materials used, intended use, contractor information, and dates of inspections must be reported on building inspection permits.
Fill out your building inspectionbuilding permits online with pdfFiller!
pdfFiller is an end-to-end solution for managing, creating, and editing documents and forms in the cloud. Save time and hassle by preparing your tax forms online.

Building Inspectionbuilding Permits is not the form you're looking for?Search for another form here.
Relevant keywords
Related Forms
If you believe that this page should be taken down, please follow our DMCA take down process
here
.
This form may include fields for payment information. Data entered in these fields is not covered by PCI DSS compliance.