
Get the free PORTABLE RIG BOILER INSTALLATION PERMIT APPLICATION
Show details
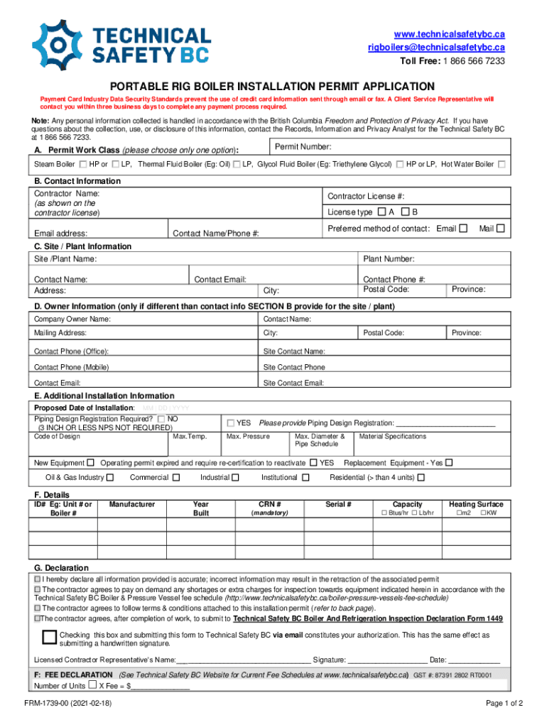
WWW.technicalsafetybc.ca rigboilers@technicalsafetybc.ca Toll Free: 1 866 566 7233PORTABLE RIG BOILER INSTALLATION PERMIT APPLICATION Payment Card Industry Data Security Standards prevent the use
We are not affiliated with any brand or entity on this form
Get, Create, Make and Sign portable rig boiler installation

Edit your portable rig boiler installation form online
Type text, complete fillable fields, insert images, highlight or blackout data for discretion, add comments, and more.

Add your legally-binding signature
Draw or type your signature, upload a signature image, or capture it with your digital camera.

Share your form instantly
Email, fax, or share your portable rig boiler installation form via URL. You can also download, print, or export forms to your preferred cloud storage service.
Editing portable rig boiler installation online
To use the services of a skilled PDF editor, follow these steps:
1
Log in. Click Start Free Trial and create a profile if necessary.
2
Simply add a document. Select Add New from your Dashboard and import a file into the system by uploading it from your device or importing it via the cloud, online, or internal mail. Then click Begin editing.
3
Edit portable rig boiler installation. Rearrange and rotate pages, add new and changed texts, add new objects, and use other useful tools. When you're done, click Done. You can use the Documents tab to merge, split, lock, or unlock your files.
4
Save your file. Select it in the list of your records. Then, move the cursor to the right toolbar and choose one of the available exporting methods: save it in multiple formats, download it as a PDF, send it by email, or store it in the cloud.
Uncompromising security for your PDF editing and eSignature needs
Your private information is safe with pdfFiller. We employ end-to-end encryption, secure cloud storage, and advanced access control to protect your documents and maintain regulatory compliance.
How to fill out portable rig boiler installation

How to fill out portable rig boiler installation
01
Identify the location where the portable rig boiler will be installed.
02
Make sure the area is flat and stable to support the weight of the boiler.
03
Secure the boiler in place using appropriate restraints to prevent movement during operation.
04
Connect the boiler to the power source and fuel supply according to the manufacturer's instructions.
05
Test the boiler to ensure proper functioning and adjust settings as needed.
Who needs portable rig boiler installation?
01
Oil and gas companies operating in remote locations
02
Construction companies working on job sites without access to traditional heating systems
03
Event organizers hosting outdoor events in cold climates
Fill
form
: Try Risk Free
For pdfFiller’s FAQs
Below is a list of the most common customer questions. If you can’t find an answer to your question, please don’t hesitate to reach out to us.
Can I create an eSignature for the portable rig boiler installation in Gmail?
You may quickly make your eSignature using pdfFiller and then eSign your portable rig boiler installation right from your mailbox using pdfFiller's Gmail add-on. Please keep in mind that in order to preserve your signatures and signed papers, you must first create an account.
How do I fill out portable rig boiler installation using my mobile device?
Use the pdfFiller mobile app to complete and sign portable rig boiler installation on your mobile device. Visit our web page (https://edit-pdf-ios-android.pdffiller.com/) to learn more about our mobile applications, the capabilities you’ll have access to, and the steps to take to get up and running.
Can I edit portable rig boiler installation on an iOS device?
No, you can't. With the pdfFiller app for iOS, you can edit, share, and sign portable rig boiler installation right away. At the Apple Store, you can buy and install it in a matter of seconds. The app is free, but you will need to set up an account if you want to buy a subscription or start a free trial.
What is portable rig boiler installation?
Portable rig boiler installation refers to the process of setting up a boiler on a portable rig for use in various industries.
Who is required to file portable rig boiler installation?
Any company or individual who owns or operates a portable rig with a boiler is required to file the installation.
How to fill out portable rig boiler installation?
To fill out portable rig boiler installation, one must provide details such as the make and model of the boiler, installation date, location of the rig, and contact information.
What is the purpose of portable rig boiler installation?
The purpose of portable rig boiler installation is to ensure that the boiler is set up correctly and safely for use on the rig.
What information must be reported on portable rig boiler installation?
Information such as boiler specifications, rig location, installation date, and contact details must be reported on portable rig boiler installation.
Fill out your portable rig boiler installation online with pdfFiller!
pdfFiller is an end-to-end solution for managing, creating, and editing documents and forms in the cloud. Save time and hassle by preparing your tax forms online.

Portable Rig Boiler Installation is not the form you're looking for?Search for another form here.
Relevant keywords
Related Forms
If you believe that this page should be taken down, please follow our DMCA take down process
here
.
This form may include fields for payment information. Data entered in these fields is not covered by PCI DSS compliance.