
Get the free joint application for permits - Department of State - dos ny
Show details
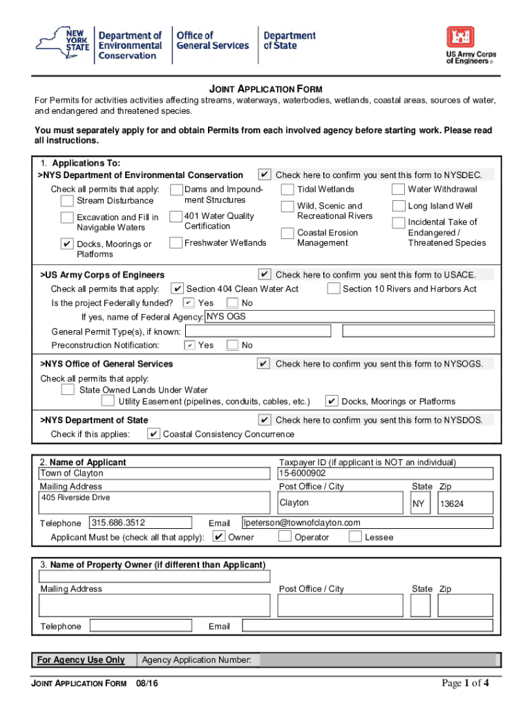
JOINT APPLICATION FOR PERMITS
TOWN OF CLAYTON
RIVERBANK SHORELINE STABILIZATIONSubmitted to
US Army Corps of Engineers
NYS Department of Environmental Conservation
NYS DOGS Office of General Services
NYS
We are not affiliated with any brand or entity on this form
Get, Create, Make and Sign joint application for permits

Edit your joint application for permits form online
Type text, complete fillable fields, insert images, highlight or blackout data for discretion, add comments, and more.

Add your legally-binding signature
Draw or type your signature, upload a signature image, or capture it with your digital camera.

Share your form instantly
Email, fax, or share your joint application for permits form via URL. You can also download, print, or export forms to your preferred cloud storage service.
Editing joint application for permits online
Follow the steps down below to take advantage of the professional PDF editor:
1
Create an account. Begin by choosing Start Free Trial and, if you are a new user, establish a profile.
2
Simply add a document. Select Add New from your Dashboard and import a file into the system by uploading it from your device or importing it via the cloud, online, or internal mail. Then click Begin editing.
3
Edit joint application for permits. Rearrange and rotate pages, insert new and alter existing texts, add new objects, and take advantage of other helpful tools. Click Done to apply changes and return to your Dashboard. Go to the Documents tab to access merging, splitting, locking, or unlocking functions.
4
Get your file. Select your file from the documents list and pick your export method. You may save it as a PDF, email it, or upload it to the cloud.
pdfFiller makes working with documents easier than you could ever imagine. Try it for yourself by creating an account!
Uncompromising security for your PDF editing and eSignature needs
Your private information is safe with pdfFiller. We employ end-to-end encryption, secure cloud storage, and advanced access control to protect your documents and maintain regulatory compliance.
How to fill out joint application for permits

How to fill out joint application for permits
01
Determine the specific permits required for your project.
02
Fill out the joint application form with all the necessary information.
03
Gather any supporting documents or plans required for the permits.
04
Submit the completed application and supporting documents to the appropriate permitting agency.
05
Follow up with the agency to track the progress of your application and address any additional requirements.
Who needs joint application for permits?
01
Individuals or entities engaging in projects that require multiple permits from different agencies or departments.
Fill
form
: Try Risk Free
For pdfFiller’s FAQs
Below is a list of the most common customer questions. If you can’t find an answer to your question, please don’t hesitate to reach out to us.
How can I send joint application for permits for eSignature?
Once your joint application for permits is ready, you can securely share it with recipients and collect eSignatures in a few clicks with pdfFiller. You can send a PDF by email, text message, fax, USPS mail, or notarize it online - right from your account. Create an account now and try it yourself.
How do I execute joint application for permits online?
pdfFiller makes it easy to finish and sign joint application for permits online. It lets you make changes to original PDF content, highlight, black out, erase, and write text anywhere on a page, legally eSign your form, and more, all from one place. Create a free account and use the web to keep track of professional documents.
How do I edit joint application for permits on an iOS device?
Yes, you can. With the pdfFiller mobile app, you can instantly edit, share, and sign joint application for permits on your iOS device. Get it at the Apple Store and install it in seconds. The application is free, but you will have to create an account to purchase a subscription or activate a free trial.
What is joint application for permits?
Joint application for permits is a process where multiple parties submit a single application for various permits required for a specific project or activity.
Who is required to file joint application for permits?
Any parties involved in a project or activity that require multiple permits are required to file a joint application.
How to fill out joint application for permits?
The joint application for permits typically involves inputting information about the project, the involved parties, and the permits required. Each party must provide their specific details.
What is the purpose of joint application for permits?
The purpose of joint application for permits is to streamline the permitting process for projects involving multiple parties by submitting a single application.
What information must be reported on joint application for permits?
The joint application for permits must include details about the project, the parties involved, the specific permits needed, and any relevant supporting documents.
Fill out your joint application for permits online with pdfFiller!
pdfFiller is an end-to-end solution for managing, creating, and editing documents and forms in the cloud. Save time and hassle by preparing your tax forms online.

Joint Application For Permits is not the form you're looking for?Search for another form here.
Relevant keywords
Related Forms
If you believe that this page should be taken down, please follow our DMCA take down process
here
.
This form may include fields for payment information. Data entered in these fields is not covered by PCI DSS compliance.