Get the free SITE INSPECTION FORM
Show details
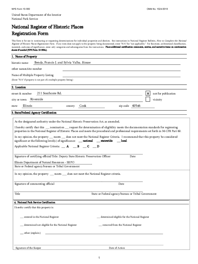
NPS Form 10900OMB No. 10240018United States Department of the Interior National Park ServiceNational Register of Historic Places Registration Form This form is for use in nominating or requesting
We are not affiliated with any brand or entity on this form
Get, Create, Make and Sign site inspection form
Edit your site inspection form form online
Type text, complete fillable fields, insert images, highlight or blackout data for discretion, add comments, and more.
Add your legally-binding signature
Draw or type your signature, upload a signature image, or capture it with your digital camera.
Share your form instantly
Email, fax, or share your site inspection form form via URL. You can also download, print, or export forms to your preferred cloud storage service.
Editing site inspection form online
Use the instructions below to start using our professional PDF editor:
1
Create an account. Begin by choosing Start Free Trial and, if you are a new user, establish a profile.
2
Prepare a file. Use the Add New button to start a new project. Then, using your device, upload your file to the system by importing it from internal mail, the cloud, or adding its URL.
3
Edit site inspection form. Rearrange and rotate pages, insert new and alter existing texts, add new objects, and take advantage of other helpful tools. Click Done to apply changes and return to your Dashboard. Go to the Documents tab to access merging, splitting, locking, or unlocking functions.
4
Get your file. When you find your file in the docs list, click on its name and choose how you want to save it. To get the PDF, you can save it, send an email with it, or move it to the cloud.
With pdfFiller, dealing with documents is always straightforward. Now is the time to try it!
Uncompromising security for your PDF editing and eSignature needs
Your private information is safe with pdfFiller. We employ end-to-end encryption, secure cloud storage, and advanced access control to protect your documents and maintain regulatory compliance.
How to fill out site inspection form
How to fill out site inspection form
01
Start by gathering all necessary information about the site being inspected.
02
Use the designated form provided by the organization or create a checklist with all the required fields.
03
Begin by documenting the date and time of the inspection.
04
Walk through the site and note down any potential hazards, maintenance issues, or violations.
05
Take photos or videos to support your findings.
06
Fill out the form accurately and thoroughly, providing detailed descriptions of any issues observed.
07
Double-check the completed form for any errors or missing information before submitting it to the appropriate department.
Who needs site inspection form?
01
Construction companies
02
Property owners
03
Insurance companies
04
Government agencies
05
Environmental agencies
Fill
form
: Try Risk Free
For pdfFiller’s FAQs
Below is a list of the most common customer questions. If you can’t find an answer to your question, please don’t hesitate to reach out to us.
How can I get site inspection form?
It's simple with pdfFiller, a full online document management tool. Access our huge online form collection (over 25M fillable forms are accessible) and find the site inspection form in seconds. Open it immediately and begin modifying it with powerful editing options.
How can I edit site inspection form on a smartphone?
The pdfFiller apps for iOS and Android smartphones are available in the Apple Store and Google Play Store. You may also get the program at https://edit-pdf-ios-android.pdffiller.com/. Open the web app, sign in, and start editing site inspection form.
How do I edit site inspection form on an iOS device?
Use the pdfFiller mobile app to create, edit, and share site inspection form from your iOS device. Install it from the Apple Store in seconds. You can benefit from a free trial and choose a subscription that suits your needs.
What is site inspection form?
The site inspection form is a document used to record the details of a physical inspection of a location or property.
Who is required to file site inspection form?
Anyone conducting a physical inspection of a site or property is required to file a site inspection form.
How to fill out site inspection form?
The site inspection form can be filled out by entering relevant information such as location details, inspection date, and observations made during the inspection.
What is the purpose of site inspection form?
The purpose of the site inspection form is to document the condition of a site or property, record any findings during the inspection, and ensure compliance with regulations.
What information must be reported on site inspection form?
Information such as location details, inspection date, observations made during the inspection, and any corrective actions taken must be reported on the site inspection form.
Fill out your site inspection form online with pdfFiller!
pdfFiller is an end-to-end solution for managing, creating, and editing documents and forms in the cloud. Save time and hassle by preparing your tax forms online.
Site Inspection Form is not the form you're looking for?Search for another form here.
Relevant keywords
Related Forms
If you believe that this page should be taken down, please follow our DMCA take down process
here
.
This form may include fields for payment information. Data entered in these fields is not covered by PCI DSS compliance.