
Get the free BUILDING PERMIT APPLICATION: RESIDENTIAL
Show details
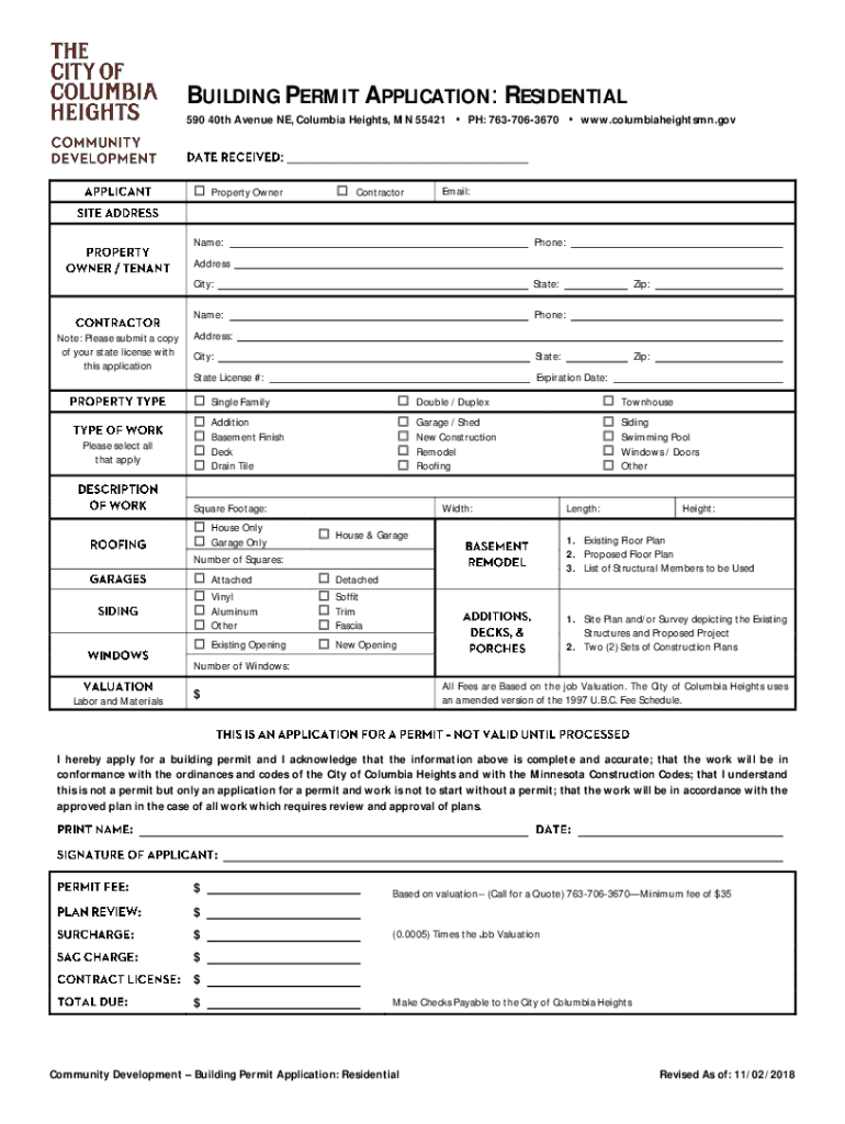
BUILDING PERMIT APPLICATION: RESIDENTIAL
590 40th Avenue NE, Columbia Heights, MN 55421 PH: 7637063670 www.columbiaheightsmn.gov:
Property Owner ContractorEmail:Name:Phone:Addressable: Please submit
We are not affiliated with any brand or entity on this form
Get, Create, Make and Sign building permit application residential

Edit your building permit application residential form online
Type text, complete fillable fields, insert images, highlight or blackout data for discretion, add comments, and more.

Add your legally-binding signature
Draw or type your signature, upload a signature image, or capture it with your digital camera.

Share your form instantly
Email, fax, or share your building permit application residential form via URL. You can also download, print, or export forms to your preferred cloud storage service.
How to edit building permit application residential online
Follow the guidelines below to benefit from a competent PDF editor:
1
Sign into your account. If you don't have a profile yet, click Start Free Trial and sign up for one.
2
Prepare a file. Use the Add New button. Then upload your file to the system from your device, importing it from internal mail, the cloud, or by adding its URL.
3
Edit building permit application residential. Rearrange and rotate pages, add and edit text, and use additional tools. To save changes and return to your Dashboard, click Done. The Documents tab allows you to merge, divide, lock, or unlock files.
4
Get your file. Select your file from the documents list and pick your export method. You may save it as a PDF, email it, or upload it to the cloud.
Uncompromising security for your PDF editing and eSignature needs
Your private information is safe with pdfFiller. We employ end-to-end encryption, secure cloud storage, and advanced access control to protect your documents and maintain regulatory compliance.
How to fill out building permit application residential

How to fill out building permit application residential
01
Obtain the required application form from your local building department.
02
Fill out all the necessary information, including property address, project details, and contact information.
03
Include any additional documentation required, such as building plans, site surveys, and structural calculations.
04
Submit the completed application form and all supporting documents to the building department.
05
Pay any applicable fees for the permit application.
Who needs building permit application residential?
01
Anyone who is planning to build, renovate, or make structural changes to a residential property needs to fill out a building permit application residential.
Fill
form
: Try Risk Free
For pdfFiller’s FAQs
Below is a list of the most common customer questions. If you can’t find an answer to your question, please don’t hesitate to reach out to us.
How do I modify my building permit application residential in Gmail?
building permit application residential and other documents can be changed, filled out, and signed right in your Gmail inbox. You can use pdfFiller's add-on to do this, as well as other things. When you go to Google Workspace, you can find pdfFiller for Gmail. You should use the time you spend dealing with your documents and eSignatures for more important things, like going to the gym or going to the dentist.
How do I execute building permit application residential online?
pdfFiller has made it easy to fill out and sign building permit application residential. You can use the solution to change and move PDF content, add fields that can be filled in, and sign the document electronically. Start a free trial of pdfFiller, the best tool for editing and filling in documents.
How do I complete building permit application residential on an iOS device?
Get and install the pdfFiller application for iOS. Next, open the app and log in or create an account to get access to all of the solution’s editing features. To open your building permit application residential, upload it from your device or cloud storage, or enter the document URL. After you complete all of the required fields within the document and eSign it (if that is needed), you can save it or share it with others.
What is building permit application residential?
Building permit application residential is a document submitted to the local government to obtain permission for construction or renovation of residential buildings.
Who is required to file building permit application residential?
Homeowners, contractors, or developers planning to undertake construction or renovation of residential buildings are required to file a building permit application residential.
How to fill out building permit application residential?
Building permit application residential can typically be filled out online or in-person by providing details such as project location, construction plans, project scope, and contact information.
What is the purpose of building permit application residential?
The purpose of building permit application residential is to ensure that construction or renovation projects comply with local building codes, zoning regulations, and safety standards.
What information must be reported on building permit application residential?
Information such as project address, property owner's name, contractor's license number, construction plans, project description, estimated cost, and timeline must be reported on building permit application residential.
Fill out your building permit application residential online with pdfFiller!
pdfFiller is an end-to-end solution for managing, creating, and editing documents and forms in the cloud. Save time and hassle by preparing your tax forms online.

Building Permit Application Residential is not the form you're looking for?Search for another form here.
Relevant keywords
Related Forms
If you believe that this page should be taken down, please follow our DMCA take down process
here
.
This form may include fields for payment information. Data entered in these fields is not covered by PCI DSS compliance.