Get the free New YorkCapital, Map, Population, History, & Facts - dos ny
Show details
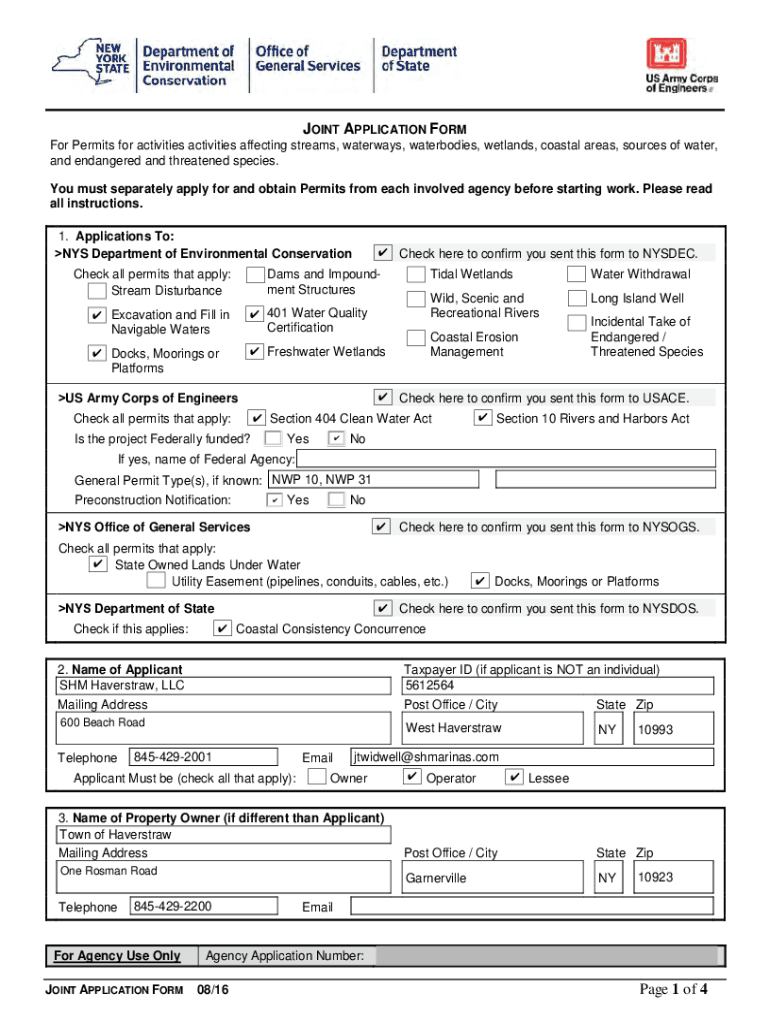
NEW YORK STATE & US ARMY CORPS OF ENGINEERSJOINT APPLICATION APPLICANT: Safe Harbor Haverstraw Marina Waterfront Repairs 600 Beach Road West Haverstraw, NY 10993May 2022Prepared By:611 Access Road
We are not affiliated with any brand or entity on this form
Get, Create, Make and Sign new yorkcapital map population
Edit your new yorkcapital map population form online
Type text, complete fillable fields, insert images, highlight or blackout data for discretion, add comments, and more.
Add your legally-binding signature
Draw or type your signature, upload a signature image, or capture it with your digital camera.
Share your form instantly
Email, fax, or share your new yorkcapital map population form via URL. You can also download, print, or export forms to your preferred cloud storage service.
Editing new yorkcapital map population online
Follow the guidelines below to benefit from the PDF editor's expertise:
1
Check your account. It's time to start your free trial.
2
Prepare a file. Use the Add New button to start a new project. Then, using your device, upload your file to the system by importing it from internal mail, the cloud, or adding its URL.
3
Edit new yorkcapital map population. Replace text, adding objects, rearranging pages, and more. Then select the Documents tab to combine, divide, lock or unlock the file.
4
Get your file. Select the name of your file in the docs list and choose your preferred exporting method. You can download it as a PDF, save it in another format, send it by email, or transfer it to the cloud.
With pdfFiller, it's always easy to work with documents.
Uncompromising security for your PDF editing and eSignature needs
Your private information is safe with pdfFiller. We employ end-to-end encryption, secure cloud storage, and advanced access control to protect your documents and maintain regulatory compliance.
How to fill out new yorkcapital map population
How to fill out new yorkcapital map population
01
Obtain a New York capital map with population data
02
Locate the key that represents population information on the map
03
Identify the different areas or regions within New York on the map
04
Use the provided data to fill in the population numbers for each area or region
05
Ensure the accuracy of the population numbers before finalizing the map
Who needs new yorkcapital map population?
01
Researchers studying demographic trends in New York
02
City planners looking to understand population distribution
03
Government officials making decisions based on population data
04
Students learning about urban geography
Fill
form
: Try Risk Free
For pdfFiller’s FAQs
Below is a list of the most common customer questions. If you can’t find an answer to your question, please don’t hesitate to reach out to us.
How do I modify my new yorkcapital map population in Gmail?
You can use pdfFiller’s add-on for Gmail in order to modify, fill out, and eSign your new yorkcapital map population along with other documents right in your inbox. Find pdfFiller for Gmail in Google Workspace Marketplace. Use time you spend on handling your documents and eSignatures for more important things.
How can I get new yorkcapital map population?
The premium subscription for pdfFiller provides you with access to an extensive library of fillable forms (over 25M fillable templates) that you can download, fill out, print, and sign. You won’t have any trouble finding state-specific new yorkcapital map population and other forms in the library. Find the template you need and customize it using advanced editing functionalities.
How do I complete new yorkcapital map population on an iOS device?
Make sure you get and install the pdfFiller iOS app. Next, open the app and log in or set up an account to use all of the solution's editing tools. If you want to open your new yorkcapital map population, you can upload it from your device or cloud storage, or you can type the document's URL into the box on the right. After you fill in all of the required fields in the document and eSign it, if that is required, you can save or share it with other people.
What is new yorkcapital map population?
New York city population is approximately 8.4 million.
Who is required to file new yorkcapital map population?
All residents of New York city are required to file the population census.
How to fill out new yorkcapital map population?
You can fill out the population census online on the official government website or by mail.
What is the purpose of new yorkcapital map population?
The purpose is to accurately count the population of New York city for planning and resource allocation purposes.
What information must be reported on new yorkcapital map population?
Residents must report their name, age, gender, address, and number of people living in the household.
Fill out your new yorkcapital map population online with pdfFiller!
pdfFiller is an end-to-end solution for managing, creating, and editing documents and forms in the cloud. Save time and hassle by preparing your tax forms online.
New Yorkcapital Map Population is not the form you're looking for?Search for another form here.
Relevant keywords
Related Forms
If you believe that this page should be taken down, please follow our DMCA take down process
here
.
This form may include fields for payment information. Data entered in these fields is not covered by PCI DSS compliance.