Get the free How to Appeal Your Tax Assessment - Mountain Luxury
Show details
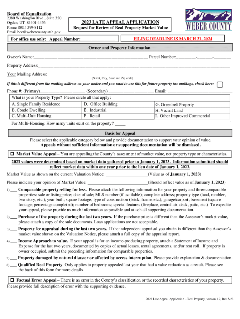
Board of Equalization 2380 Washington Blvd., Suite 320 Ogden, UT 844011456 Phone (801) 3998112 Email boe@webercountyutah.gov2023 LATE APPEAL APPLICATION Request for Review of Real Property Market
We are not affiliated with any brand or entity on this form
Get, Create, Make and Sign how to appeal your
Edit your how to appeal your form online
Type text, complete fillable fields, insert images, highlight or blackout data for discretion, add comments, and more.
Add your legally-binding signature
Draw or type your signature, upload a signature image, or capture it with your digital camera.
Share your form instantly
Email, fax, or share your how to appeal your form via URL. You can also download, print, or export forms to your preferred cloud storage service.
Editing how to appeal your online
Use the instructions below to start using our professional PDF editor:
1
Register the account. Begin by clicking Start Free Trial and create a profile if you are a new user.
2
Upload a file. Select Add New on your Dashboard and upload a file from your device or import it from the cloud, online, or internal mail. Then click Edit.
3
Edit how to appeal your. Rearrange and rotate pages, add and edit text, and use additional tools. To save changes and return to your Dashboard, click Done. The Documents tab allows you to merge, divide, lock, or unlock files.
4
Save your file. Choose it from the list of records. Then, shift the pointer to the right toolbar and select one of the several exporting methods: save it in multiple formats, download it as a PDF, email it, or save it to the cloud.
It's easier to work with documents with pdfFiller than you could have ever thought. You may try it out for yourself by signing up for an account.
Uncompromising security for your PDF editing and eSignature needs
Your private information is safe with pdfFiller. We employ end-to-end encryption, secure cloud storage, and advanced access control to protect your documents and maintain regulatory compliance.
How to fill out how to appeal your
How to fill out how to appeal your
01
Review the decision you want to appeal.
02
Gather any pertinent evidence or documentation that supports your case.
03
Write a formal letter or email outlining the reasons for your appeal.
04
Submit your appeal to the appropriate person or department.
05
Follow up as needed and be prepared to provide additional information if requested.
Who needs how to appeal your?
01
Anyone who has received a decision they disagree with and wants to challenge or overturn it.
Fill
form
: Try Risk Free
For pdfFiller’s FAQs
Below is a list of the most common customer questions. If you can’t find an answer to your question, please don’t hesitate to reach out to us.
How can I manage my how to appeal your directly from Gmail?
Using pdfFiller's Gmail add-on, you can edit, fill out, and sign your how to appeal your and other papers directly in your email. You may get it through Google Workspace Marketplace. Make better use of your time by handling your papers and eSignatures.
How do I edit how to appeal your in Chrome?
Install the pdfFiller Google Chrome Extension to edit how to appeal your and other documents straight from Google search results. When reading documents in Chrome, you may edit them. Create fillable PDFs and update existing PDFs using pdfFiller.
How do I edit how to appeal your on an iOS device?
No, you can't. With the pdfFiller app for iOS, you can edit, share, and sign how to appeal your right away. At the Apple Store, you can buy and install it in a matter of seconds. The app is free, but you will need to set up an account if you want to buy a subscription or start a free trial.
What is how to appeal your?
How to appeal your is a process of requesting a review or reconsideration of a decision that has been made.
Who is required to file how to appeal your?
Any individual or organization who disagrees with a decision and wishes to challenge it.
How to fill out how to appeal your?
To file an appeal, one must typically submit a written request outlining the reasons for the appeal and any supporting documentation.
What is the purpose of how to appeal your?
The purpose of filing an appeal is to seek a fair reconsideration of a decision that one believes is incorrect or unjust.
What information must be reported on how to appeal your?
The appeal should include specific details about the decision being challenged, reasons for disagreeing with it, and any relevant evidence or arguments.
Fill out your how to appeal your online with pdfFiller!
pdfFiller is an end-to-end solution for managing, creating, and editing documents and forms in the cloud. Save time and hassle by preparing your tax forms online.
How To Appeal Your is not the form you're looking for?Search for another form here.
Relevant keywords
Related Forms
If you believe that this page should be taken down, please follow our DMCA take down process
here
.
This form may include fields for payment information. Data entered in these fields is not covered by PCI DSS compliance.