
Get the free Harvesting the Value of Metrorail in Loudoun County, Virginia
Show details
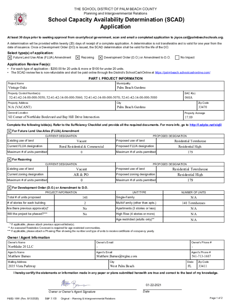
THE SCHOOL DISTRICT OF PALM BEACH COUNTY Planning and Intergovernmental RelationsSchool Capacity Availability Determination (SCAD) Application At least 30 days prior to seeking approval from county/local
We are not affiliated with any brand or entity on this form
Get, Create, Make and Sign harvesting form value of

Edit your harvesting form value of form online
Type text, complete fillable fields, insert images, highlight or blackout data for discretion, add comments, and more.

Add your legally-binding signature
Draw or type your signature, upload a signature image, or capture it with your digital camera.

Share your form instantly
Email, fax, or share your harvesting form value of form via URL. You can also download, print, or export forms to your preferred cloud storage service.
Editing harvesting form value of online
To use the services of a skilled PDF editor, follow these steps below:
1
Log in to account. Click Start Free Trial and sign up a profile if you don't have one.
2
Prepare a file. Use the Add New button. Then upload your file to the system from your device, importing it from internal mail, the cloud, or by adding its URL.
3
Edit harvesting form value of. Rearrange and rotate pages, add and edit text, and use additional tools. To save changes and return to your Dashboard, click Done. The Documents tab allows you to merge, divide, lock, or unlock files.
4
Save your file. Select it from your list of records. Then, move your cursor to the right toolbar and choose one of the exporting options. You can save it in multiple formats, download it as a PDF, send it by email, or store it in the cloud, among other things.
Dealing with documents is always simple with pdfFiller.
Uncompromising security for your PDF editing and eSignature needs
Your private information is safe with pdfFiller. We employ end-to-end encryption, secure cloud storage, and advanced access control to protect your documents and maintain regulatory compliance.
How to fill out harvesting form value of

How to fill out harvesting form value of
01
Gather all the necessary information required for filling out the harvesting form value.
02
Start by entering the date of harvest and the specific crop or product being harvested.
03
Fill in the quantity or weight of the crop/product being harvested.
04
Provide any additional details or notes related to the harvest if necessary.
05
Review the form for accuracy and completeness before submitting.
Who needs harvesting form value of?
01
Farmers, agricultural workers, and anyone involved in the harvesting process may need to fill out a harvesting form value. This form helps to keep track of harvest data, yields, and other important information for record-keeping and analysis purposes.
Fill
form
: Try Risk Free
For pdfFiller’s FAQs
Below is a list of the most common customer questions. If you can’t find an answer to your question, please don’t hesitate to reach out to us.
How can I send harvesting form value of to be eSigned by others?
To distribute your harvesting form value of, simply send it to others and receive the eSigned document back instantly. Post or email a PDF that you've notarized online. Doing so requires never leaving your account.
Can I sign the harvesting form value of electronically in Chrome?
As a PDF editor and form builder, pdfFiller has a lot of features. It also has a powerful e-signature tool that you can add to your Chrome browser. With our extension, you can type, draw, or take a picture of your signature with your webcam to make your legally-binding eSignature. Choose how you want to sign your harvesting form value of and you'll be done in minutes.
How do I fill out harvesting form value of using my mobile device?
Use the pdfFiller mobile app to complete and sign harvesting form value of on your mobile device. Visit our web page (https://edit-pdf-ios-android.pdffiller.com/) to learn more about our mobile applications, the capabilities you’ll have access to, and the steps to take to get up and running.
What is harvesting form value of?
The harvesting form typically refers to a specific document used to report the value of harvested crops or agricultural products for regulatory or tax purposes.
Who is required to file harvesting form value of?
Farmers, agricultural producers, or any entity involved in the harvesting of crops who generate a certain level of revenue from their harvests are usually required to file this form.
How to fill out harvesting form value of?
To fill out the harvesting form, provide details such as the type of crops harvested, quantities, value, and other relevant information as required by the regulating body.
What is the purpose of harvesting form value of?
The purpose of the harvesting form is to ensure proper reporting of agricultural outputs for tax assessment, compliance with agricultural regulations, and to support dairy or crop subsidy programs.
What information must be reported on harvesting form value of?
Information that must be reported includes the type and amount of crops harvested, their market value, the location of harvest, and any other relevant details per the requirements set by the regulatory authority.
Fill out your harvesting form value of online with pdfFiller!
pdfFiller is an end-to-end solution for managing, creating, and editing documents and forms in the cloud. Save time and hassle by preparing your tax forms online.

Harvesting Form Value Of is not the form you're looking for?Search for another form here.
Relevant keywords
Related Forms
If you believe that this page should be taken down, please follow our DMCA take down process
here
.
This form may include fields for payment information. Data entered in these fields is not covered by PCI DSS compliance.