Get the free Inspection ChecklistScratch Coat
Show details
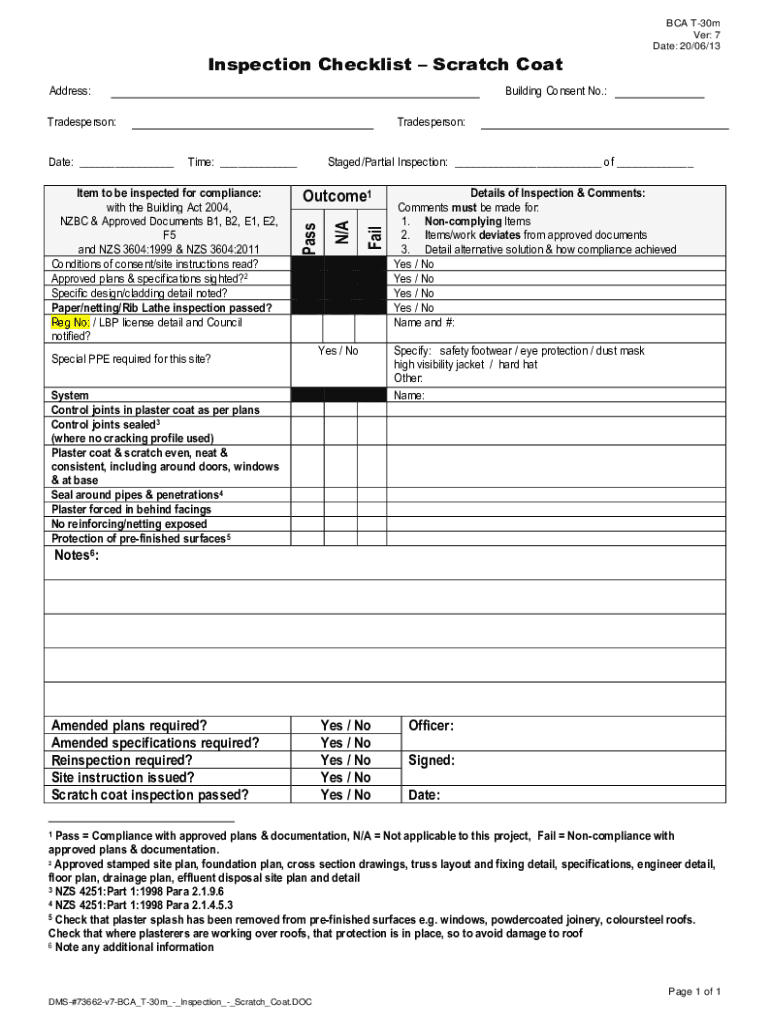
BCA T30m Very: 7 Date: 20/06/13Inspection Checklist Scratch Coat Address:Building Consent No.:Trades person: Time: ___Special PPE required for this site? FailOutcome1N/Item to be inspected for compliance:
We are not affiliated with any brand or entity on this form
Get, Create, Make and Sign inspection checklistscratch coat
Edit your inspection checklistscratch coat form online
Type text, complete fillable fields, insert images, highlight or blackout data for discretion, add comments, and more.
Add your legally-binding signature
Draw or type your signature, upload a signature image, or capture it with your digital camera.
Share your form instantly
Email, fax, or share your inspection checklistscratch coat form via URL. You can also download, print, or export forms to your preferred cloud storage service.
Editing inspection checklistscratch coat online
Follow the steps below to benefit from the PDF editor's expertise:
1
Create an account. Begin by choosing Start Free Trial and, if you are a new user, establish a profile.
2
Upload a document. Select Add New on your Dashboard and transfer a file into the system in one of the following ways: by uploading it from your device or importing from the cloud, web, or internal mail. Then, click Start editing.
3
Edit inspection checklistscratch coat. Text may be added and replaced, new objects can be included, pages can be rearranged, watermarks and page numbers can be added, and so on. When you're done editing, click Done and then go to the Documents tab to combine, divide, lock, or unlock the file.
4
Save your file. Select it from your list of records. Then, move your cursor to the right toolbar and choose one of the exporting options. You can save it in multiple formats, download it as a PDF, send it by email, or store it in the cloud, among other things.
It's easier to work with documents with pdfFiller than you could have believed. Sign up for a free account to view.
Uncompromising security for your PDF editing and eSignature needs
Your private information is safe with pdfFiller. We employ end-to-end encryption, secure cloud storage, and advanced access control to protect your documents and maintain regulatory compliance.
How to fill out inspection checklistscratch coat
How to fill out inspection checklistscratch coat
01
Gather all necessary tools and materials such as the inspection checklist and scratch coat material.
02
Begin by identifying all the areas that require inspection and mark them on the checklist.
03
Follow the guidelines provided on the checklist to assess the condition of the scratch coat in each identified area.
04
Make note of any damages or defects found during the inspection.
05
Once the inspection is complete, fill out the checklist with the findings and recommendations for repair or maintenance.
06
Submit the completed inspection checklist to the relevant authorities or stakeholders for review and action.
Who needs inspection checklistscratch coat?
01
Construction professionals such as contractors, builders, and inspectors who are responsible for ensuring the quality and safety of the scratch coat materials used in construction projects.
Fill
form
: Try Risk Free
For pdfFiller’s FAQs
Below is a list of the most common customer questions. If you can’t find an answer to your question, please don’t hesitate to reach out to us.
How do I execute inspection checklistscratch coat online?
pdfFiller has made filling out and eSigning inspection checklistscratch coat easy. The solution is equipped with a set of features that enable you to edit and rearrange PDF content, add fillable fields, and eSign the document. Start a free trial to explore all the capabilities of pdfFiller, the ultimate document editing solution.
How do I complete inspection checklistscratch coat on an iOS device?
pdfFiller has an iOS app that lets you fill out documents on your phone. A subscription to the service means you can make an account or log in to one you already have. As soon as the registration process is done, upload your inspection checklistscratch coat. You can now use pdfFiller's more advanced features, like adding fillable fields and eSigning documents, as well as accessing them from any device, no matter where you are in the world.
How do I fill out inspection checklistscratch coat on an Android device?
Use the pdfFiller mobile app to complete your inspection checklistscratch coat on an Android device. The application makes it possible to perform all needed document management manipulations, like adding, editing, and removing text, signing, annotating, and more. All you need is your smartphone and an internet connection.
What is inspection checklistscratch coat?
The inspection checklist for scratch coat is a document used in construction to ensure that the initial layer of plaster or stucco (scratch coat) has been applied correctly according to the specifications.
Who is required to file inspection checklistscratch coat?
Contractors and builders who are responsible for applying the scratch coat in construction projects are typically required to file the inspection checklist.
How to fill out inspection checklistscratch coat?
To fill out the inspection checklist for the scratch coat, you should provide details such as the project name, date of application, materials used, conditions observed, and signature of the inspector.
What is the purpose of inspection checklistscratch coat?
The purpose of the inspection checklist for scratch coat is to ensure quality control during the construction process, verify compliance with building codes, and ensure proper preparation for additional layers.
What information must be reported on inspection checklistscratch coat?
Information required on the inspection checklist typically includes the project details, date of inspection, materials used, compliance with thickness specifications, and any deficiencies noted.
Fill out your inspection checklistscratch coat online with pdfFiller!
pdfFiller is an end-to-end solution for managing, creating, and editing documents and forms in the cloud. Save time and hassle by preparing your tax forms online.
Inspection Checklistscratch Coat is not the form you're looking for?Search for another form here.
Relevant keywords
Related Forms
If you believe that this page should be taken down, please follow our DMCA take down process
here
.
This form may include fields for payment information. Data entered in these fields is not covered by PCI DSS compliance.