Get the free Application-Placement-of-a-Waste-Storage-Container-Skip ...
Show details
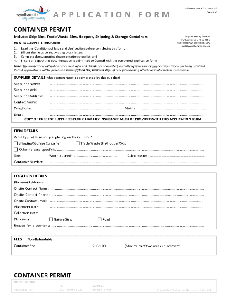
Effective July 2022 June 2023-Page 1 of 4APPLICATION FORM CONTAINER PERMIT Includes Skip Bins, Trade Waste Bins, Hoppers, Shipping & Storage Containers HOW TO COMPLETE THIS FORM: 1. 2. 3. 4. Read
We are not affiliated with any brand or entity on this form
Get, Create, Make and Sign application-placement-of-a-waste-storage-container-skip
Edit your application-placement-of-a-waste-storage-container-skip form online
Type text, complete fillable fields, insert images, highlight or blackout data for discretion, add comments, and more.
Add your legally-binding signature
Draw or type your signature, upload a signature image, or capture it with your digital camera.
Share your form instantly
Email, fax, or share your application-placement-of-a-waste-storage-container-skip form via URL. You can also download, print, or export forms to your preferred cloud storage service.
How to edit application-placement-of-a-waste-storage-container-skip online
To use the professional PDF editor, follow these steps below:
1
Set up an account. If you are a new user, click Start Free Trial and establish a profile.
2
Prepare a file. Use the Add New button to start a new project. Then, using your device, upload your file to the system by importing it from internal mail, the cloud, or adding its URL.
3
Edit application-placement-of-a-waste-storage-container-skip. Rearrange and rotate pages, add new and changed texts, add new objects, and use other useful tools. When you're done, click Done. You can use the Documents tab to merge, split, lock, or unlock your files.
4
Save your file. Choose it from the list of records. Then, shift the pointer to the right toolbar and select one of the several exporting methods: save it in multiple formats, download it as a PDF, email it, or save it to the cloud.
pdfFiller makes working with documents easier than you could ever imagine. Register for an account and see for yourself!
Uncompromising security for your PDF editing and eSignature needs
Your private information is safe with pdfFiller. We employ end-to-end encryption, secure cloud storage, and advanced access control to protect your documents and maintain regulatory compliance.
How to fill out application-placement-of-a-waste-storage-container-skip
How to fill out application-placement-of-a-waste-storage-container-skip
01
Obtain the application form for placement of a waste storage container or skip.
02
Fill out the application form completely and accurately with all necessary information.
03
Attach any required documents or permits to the application form.
04
Submit the completed application form along with any attachments to the appropriate authority or department.
05
Wait for approval and follow any further instructions given by the authority regarding the placement of the waste storage container or skip.
Who needs application-placement-of-a-waste-storage-container-skip?
01
Individuals or businesses who require the placement of a waste storage container or skip on their property.
Fill
form
: Try Risk Free
For pdfFiller’s FAQs
Below is a list of the most common customer questions. If you can’t find an answer to your question, please don’t hesitate to reach out to us.
How do I edit application-placement-of-a-waste-storage-container-skip straight from my smartphone?
You can do so easily with pdfFiller’s applications for iOS and Android devices, which can be found at the Apple Store and Google Play Store, respectively. Alternatively, you can get the app on our web page: https://edit-pdf-ios-android.pdffiller.com/. Install the application, log in, and start editing application-placement-of-a-waste-storage-container-skip right away.
How can I fill out application-placement-of-a-waste-storage-container-skip on an iOS device?
Install the pdfFiller app on your iOS device to fill out papers. If you have a subscription to the service, create an account or log in to an existing one. After completing the registration process, upload your application-placement-of-a-waste-storage-container-skip. You may now use pdfFiller's advanced features, such as adding fillable fields and eSigning documents, and accessing them from any device, wherever you are.
How do I complete application-placement-of-a-waste-storage-container-skip on an Android device?
Use the pdfFiller Android app to finish your application-placement-of-a-waste-storage-container-skip and other documents on your Android phone. The app has all the features you need to manage your documents, like editing content, eSigning, annotating, sharing files, and more. At any time, as long as there is an internet connection.
What is application-placement-of-a-waste-storage-container-skip?
The application-placement-of-a-waste-storage-container-skip is a form used to request permission for the placement of a waste storage container or skip on a specific location.
Who is required to file application-placement-of-a-waste-storage-container-skip?
Any individual or organization planning to place a waste storage container or skip needs to file the application-placement-of-a-waste-storage-container-skip.
How to fill out application-placement-of-a-waste-storage-container-skip?
The application-placement-of-a-waste-storage-container-skip form needs to be completed with relevant details about the location, size, and purpose of the waste storage container or skip.
What is the purpose of application-placement-of-a-waste-storage-container-skip?
The purpose of the application-placement-of-a-waste-storage-container-skip is to ensure that the placement of waste storage containers or skips meets regulations and does not pose a risk to the environment or public health.
What information must be reported on application-placement-of-a-waste-storage-container-skip?
Information such as the location of placement, size of the container, type of waste to be stored, and contact details of the applicant must be reported on the application-placement-of-a-waste-storage-container-skip.
Fill out your application-placement-of-a-waste-storage-container-skip online with pdfFiller!
pdfFiller is an end-to-end solution for managing, creating, and editing documents and forms in the cloud. Save time and hassle by preparing your tax forms online.
Application-Placement-Of-A-Waste-Storage-Container-Skip is not the form you're looking for?Search for another form here.
Relevant keywords
Related Forms
If you believe that this page should be taken down, please follow our DMCA take down process
here
.
This form may include fields for payment information. Data entered in these fields is not covered by PCI DSS compliance.