Get the free Appendix A: Draft recommendations by sector
Show details
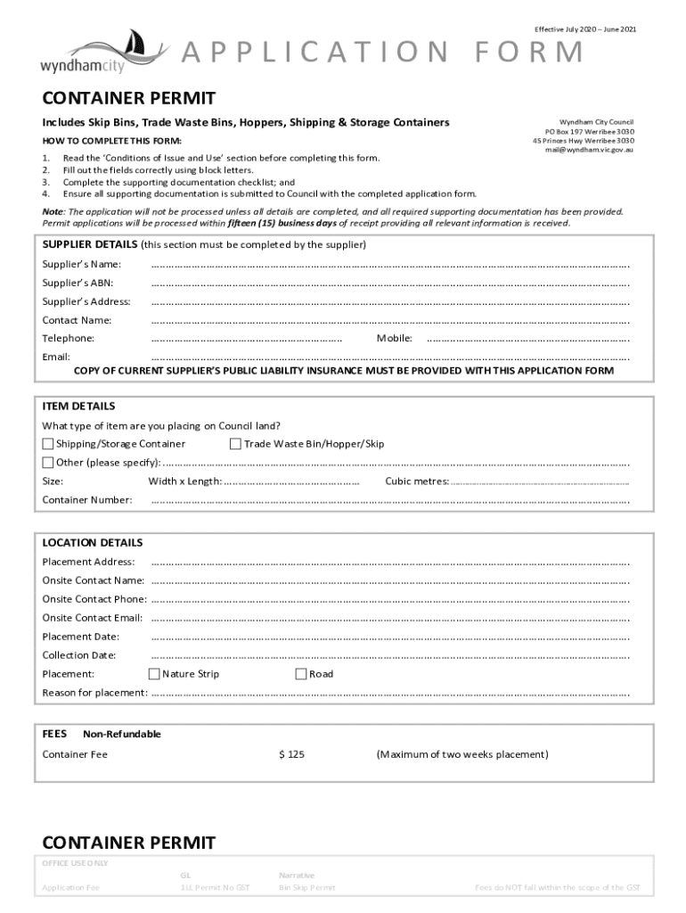
Effective July 2020 June 2021APPLICATION FORM CONTAINER PERMIT Includes Skip Bins, Trade Waste Bins, Hoppers, Shipping & Storage Containers HOW TO COMPLETE THIS FORM: 1. 2. 3. 4. Read the Conditions
We are not affiliated with any brand or entity on this form
Get, Create, Make and Sign appendix a draft recommendations
Edit your appendix a draft recommendations form online
Type text, complete fillable fields, insert images, highlight or blackout data for discretion, add comments, and more.
Add your legally-binding signature
Draw or type your signature, upload a signature image, or capture it with your digital camera.
Share your form instantly
Email, fax, or share your appendix a draft recommendations form via URL. You can also download, print, or export forms to your preferred cloud storage service.
How to edit appendix a draft recommendations online
Use the instructions below to start using our professional PDF editor:
1
Create an account. Begin by choosing Start Free Trial and, if you are a new user, establish a profile.
2
Simply add a document. Select Add New from your Dashboard and import a file into the system by uploading it from your device or importing it via the cloud, online, or internal mail. Then click Begin editing.
3
Edit appendix a draft recommendations. Text may be added and replaced, new objects can be included, pages can be rearranged, watermarks and page numbers can be added, and so on. When you're done editing, click Done and then go to the Documents tab to combine, divide, lock, or unlock the file.
4
Get your file. Select your file from the documents list and pick your export method. You may save it as a PDF, email it, or upload it to the cloud.
pdfFiller makes working with documents easier than you could ever imagine. Register for an account and see for yourself!
Uncompromising security for your PDF editing and eSignature needs
Your private information is safe with pdfFiller. We employ end-to-end encryption, secure cloud storage, and advanced access control to protect your documents and maintain regulatory compliance.
How to fill out appendix a draft recommendations
How to fill out appendix a draft recommendations
01
Review the specific guidelines for drafting recommendations outlined in the appendix.
02
Identify the key issues or objectives that need to be addressed in the recommendations.
03
Gather relevant data or information to support the recommendations.
04
Organize the recommendations in a clear and logical manner, using bullet points or numbered lists.
05
Review and revise the draft recommendations to ensure they are accurate and address the key issues effectively.
Who needs appendix a draft recommendations?
01
Government agencies
02
Policy makers
03
Organizations conducting research or studies
04
Consultants or experts providing advice
Fill
form
: Try Risk Free
For pdfFiller’s FAQs
Below is a list of the most common customer questions. If you can’t find an answer to your question, please don’t hesitate to reach out to us.
How do I complete appendix a draft recommendations online?
With pdfFiller, you may easily complete and sign appendix a draft recommendations online. It lets you modify original PDF material, highlight, blackout, erase, and write text anywhere on a page, legally eSign your document, and do a lot more. Create a free account to handle professional papers online.
Can I create an electronic signature for the appendix a draft recommendations in Chrome?
Yes. With pdfFiller for Chrome, you can eSign documents and utilize the PDF editor all in one spot. Create a legally enforceable eSignature by sketching, typing, or uploading a handwritten signature image. You may eSign your appendix a draft recommendations in seconds.
Can I create an electronic signature for signing my appendix a draft recommendations in Gmail?
Create your eSignature using pdfFiller and then eSign your appendix a draft recommendations immediately from your email with pdfFiller's Gmail add-on. To keep your signatures and signed papers, you must create an account.
What is appendix a draft recommendations?
Appendix A draft recommendations are proposed suggestions or advice given in a preliminary form for consideration.
Who is required to file appendix a draft recommendations?
Any individual, organization, or entity that is responsible for providing recommendations or suggestions related to a specific topic or subject.
How to fill out appendix a draft recommendations?
To fill out appendix A draft recommendations, one must carefully review the guidelines and instructions provided, gather all necessary information, and clearly articulate the proposed recommendations.
What is the purpose of appendix a draft recommendations?
The purpose of appendix A draft recommendations is to provide guidance, suggestions, or advice on a particular issue or topic for further consideration and discussion.
What information must be reported on appendix a draft recommendations?
The information reported on appendix A draft recommendations may vary depending on the specific requirements of the document, but typically includes background information, analysis, proposed recommendations, and supporting evidence or reasoning.
Fill out your appendix a draft recommendations online with pdfFiller!
pdfFiller is an end-to-end solution for managing, creating, and editing documents and forms in the cloud. Save time and hassle by preparing your tax forms online.
Appendix A Draft Recommendations is not the form you're looking for?Search for another form here.
Relevant keywords
Related Forms
If you believe that this page should be taken down, please follow our DMCA take down process
here
.
This form may include fields for payment information. Data entered in these fields is not covered by PCI DSS compliance.