Get the free New Homes Program Performance Path Rebate Application
Show details
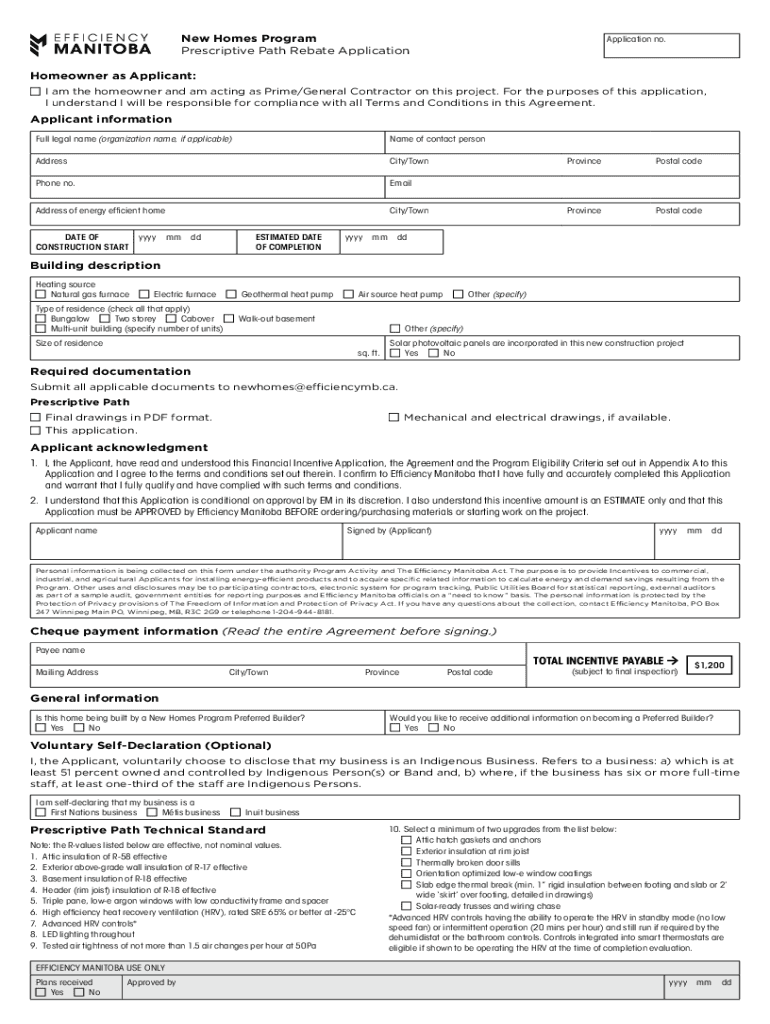
New Homes Program
Prescriptive Path Rebate ApplicationApplication no. Homeowner as Applicant:
I am the homeowner and am I acting as Prime/General Contractor on this project. For the purposes of this
We are not affiliated with any brand or entity on this form
Get, Create, Make and Sign new homes program performance
Edit your new homes program performance form online
Type text, complete fillable fields, insert images, highlight or blackout data for discretion, add comments, and more.
Add your legally-binding signature
Draw or type your signature, upload a signature image, or capture it with your digital camera.
Share your form instantly
Email, fax, or share your new homes program performance form via URL. You can also download, print, or export forms to your preferred cloud storage service.
How to edit new homes program performance online
Here are the steps you need to follow to get started with our professional PDF editor:
1
Check your account. If you don't have a profile yet, click Start Free Trial and sign up for one.
2
Upload a file. Select Add New on your Dashboard and upload a file from your device or import it from the cloud, online, or internal mail. Then click Edit.
3
Edit new homes program performance. Rearrange and rotate pages, insert new and alter existing texts, add new objects, and take advantage of other helpful tools. Click Done to apply changes and return to your Dashboard. Go to the Documents tab to access merging, splitting, locking, or unlocking functions.
4
Save your file. Select it in the list of your records. Then, move the cursor to the right toolbar and choose one of the available exporting methods: save it in multiple formats, download it as a PDF, send it by email, or store it in the cloud.
pdfFiller makes dealing with documents a breeze. Create an account to find out!
Uncompromising security for your PDF editing and eSignature needs
Your private information is safe with pdfFiller. We employ end-to-end encryption, secure cloud storage, and advanced access control to protect your documents and maintain regulatory compliance.
How to fill out new homes program performance
How to fill out new homes program performance
01
Gather all relevant data on the new homes program performance, such as number of new homes constructed, cost of construction, time taken for completion, etc.
02
Analyze the data to identify any areas where the program may be falling short or excelling.
03
Develop a performance measurement framework that includes key performance indicators (KPIs) to track the success of the program.
04
Regularly collect and input data into the performance measurement framework to assess the program's progress over time.
05
Use the data and analysis to make informed decisions on how to improve the program and achieve better outcomes.
Who needs new homes program performance?
01
Government agencies responsible for housing development
02
Nonprofit organizations working on affordable housing initiatives
03
Developers and contractors involved in building new homes
04
Community members in need of affordable housing options
Fill
form
: Try Risk Free
For pdfFiller’s FAQs
Below is a list of the most common customer questions. If you can’t find an answer to your question, please don’t hesitate to reach out to us.
Can I edit new homes program performance on an iOS device?
Use the pdfFiller app for iOS to make, edit, and share new homes program performance from your phone. Apple's store will have it up and running in no time. It's possible to get a free trial and choose a subscription plan that fits your needs.
How do I complete new homes program performance on an iOS device?
In order to fill out documents on your iOS device, install the pdfFiller app. Create an account or log in to an existing one if you have a subscription to the service. Once the registration process is complete, upload your new homes program performance. You now can take advantage of pdfFiller's advanced functionalities: adding fillable fields and eSigning documents, and accessing them from any device, wherever you are.
Can I edit new homes program performance on an Android device?
With the pdfFiller Android app, you can edit, sign, and share new homes program performance on your mobile device from any place. All you need is an internet connection to do this. Keep your documents in order from anywhere with the help of the app!
What is new homes program performance?
New homes program performance refers to the evaluation of the effectiveness and success of a program aimed at promoting the construction and sale of new homes.
Who is required to file new homes program performance?
Developers, builders, or entities involved in the new homes program are typically required to file the program performance report.
How to fill out new homes program performance?
To fill out the new homes program performance report, specific data regarding home construction, sales, pricing, and program outcomes must be collected and submitted according to the program guidelines.
What is the purpose of new homes program performance?
The purpose of new homes program performance is to track the progress and impact of the program in increasing new home construction, improving affordability, and stimulating economic growth within the housing sector.
What information must be reported on new homes program performance?
Information such as the number of new homes built, sold, pricing trends, types of incentives used, and overall program outcomes must be reported on the new homes program performance report.
Fill out your new homes program performance online with pdfFiller!
pdfFiller is an end-to-end solution for managing, creating, and editing documents and forms in the cloud. Save time and hassle by preparing your tax forms online.
New Homes Program Performance is not the form you're looking for?Search for another form here.
Relevant keywords
Related Forms
If you believe that this page should be taken down, please follow our DMCA take down process
here
.
This form may include fields for payment information. Data entered in these fields is not covered by PCI DSS compliance.