Get the free Building & SafetyEl Monte, CA
Show details
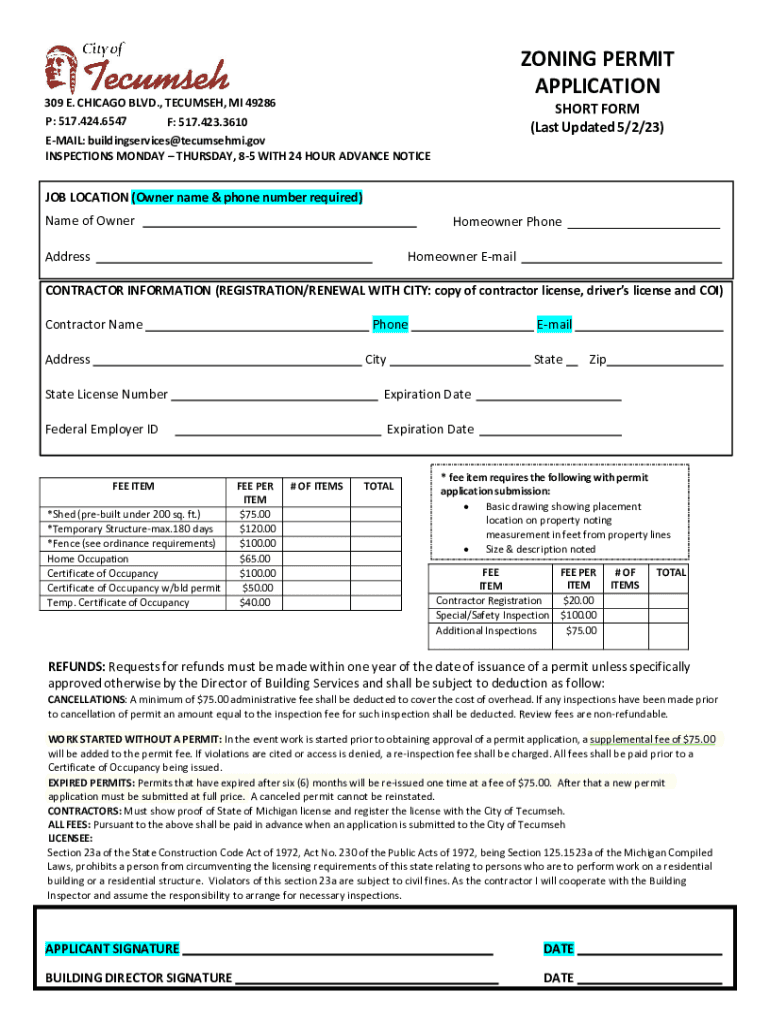
ZONING PERMIT
APPLICATION309 E. CHICAGO BLVD., TECUMSEH, MI 49286
P: 517.424.6547
F: 517.423.3610SHORT FORM
(Last Updated 5/2/23)EMAIL: buildingservices@tecumsehmi.gov
INSPECTIONS MONDAY THURSDAY,
We are not affiliated with any brand or entity on this form
Get, Create, Make and Sign building ampamp safetyel monte
Edit your building ampamp safetyel monte form online
Type text, complete fillable fields, insert images, highlight or blackout data for discretion, add comments, and more.
Add your legally-binding signature
Draw or type your signature, upload a signature image, or capture it with your digital camera.
Share your form instantly
Email, fax, or share your building ampamp safetyel monte form via URL. You can also download, print, or export forms to your preferred cloud storage service.
Editing building ampamp safetyel monte online
Follow the guidelines below to use a professional PDF editor:
1
Set up an account. If you are a new user, click Start Free Trial and establish a profile.
2
Simply add a document. Select Add New from your Dashboard and import a file into the system by uploading it from your device or importing it via the cloud, online, or internal mail. Then click Begin editing.
3
Edit building ampamp safetyel monte. Rearrange and rotate pages, add and edit text, and use additional tools. To save changes and return to your Dashboard, click Done. The Documents tab allows you to merge, divide, lock, or unlock files.
4
Get your file. Select your file from the documents list and pick your export method. You may save it as a PDF, email it, or upload it to the cloud.
With pdfFiller, dealing with documents is always straightforward. Try it right now!
Uncompromising security for your PDF editing and eSignature needs
Your private information is safe with pdfFiller. We employ end-to-end encryption, secure cloud storage, and advanced access control to protect your documents and maintain regulatory compliance.
How to fill out building ampamp safetyel monte
How to fill out building ampamp safetyel monte
01
Obtain the necessary building and safety permit application form from the El Monte City website or office.
02
Gather all required documents such as plans, drawings, property information, and permit fee payment.
03
Fill out the application form completely and accurately, providing all requested information.
04
Submit the completed application form and supporting documents to the El Monte building and safety department for review.
05
Wait for the department to process the application and issue the building and safety permit if approved.
Who needs building ampamp safetyel monte?
01
Anyone who is planning to undertake construction or renovation work on a property in El Monte that requires building and safety regulations to be followed.
Fill
form
: Try Risk Free
For pdfFiller’s FAQs
Below is a list of the most common customer questions. If you can’t find an answer to your question, please don’t hesitate to reach out to us.
How do I make changes in building ampamp safetyel monte?
The editing procedure is simple with pdfFiller. Open your building ampamp safetyel monte in the editor. You may also add photos, draw arrows and lines, insert sticky notes and text boxes, and more.
How do I make edits in building ampamp safetyel monte without leaving Chrome?
Add pdfFiller Google Chrome Extension to your web browser to start editing building ampamp safetyel monte and other documents directly from a Google search page. The service allows you to make changes in your documents when viewing them in Chrome. Create fillable documents and edit existing PDFs from any internet-connected device with pdfFiller.
Can I create an electronic signature for the building ampamp safetyel monte in Chrome?
Yes. By adding the solution to your Chrome browser, you can use pdfFiller to eSign documents and enjoy all of the features of the PDF editor in one place. Use the extension to create a legally-binding eSignature by drawing it, typing it, or uploading a picture of your handwritten signature. Whatever you choose, you will be able to eSign your building ampamp safetyel monte in seconds.
What is building ampamp safetyel monte?
Building ampamp safetyel monte refers to the process of ensuring construction projects in El Monte comply with building codes and safety regulations.
Who is required to file building ampamp safetyel monte?
Property owners, contractors, or developers involved in construction projects in El Monte are required to file building ampamp safetyel monte.
How to fill out building ampamp safetyel monte?
Building ampamp safetyel monte forms can be filled out online or submitted in person at the designated government office in El Monte.
What is the purpose of building ampamp safetyel monte?
The purpose of building ampamp safetyel monte is to ensure that construction projects in El Monte meet the necessary safety standards and building codes.
What information must be reported on building ampamp safetyel monte?
Building ampamp safetyel monte forms typically require information such as project details, contractor information, materials used, and safety measures implemented.
Fill out your building ampamp safetyel monte online with pdfFiller!
pdfFiller is an end-to-end solution for managing, creating, and editing documents and forms in the cloud. Save time and hassle by preparing your tax forms online.
Building Ampamp Safetyel Monte is not the form you're looking for?Search for another form here.
Relevant keywords
Related Forms
If you believe that this page should be taken down, please follow our DMCA take down process
here
.
This form may include fields for payment information. Data entered in these fields is not covered by PCI DSS compliance.