
Get the free Interpretation of the Land Owner Transparency Act and ...
Show details
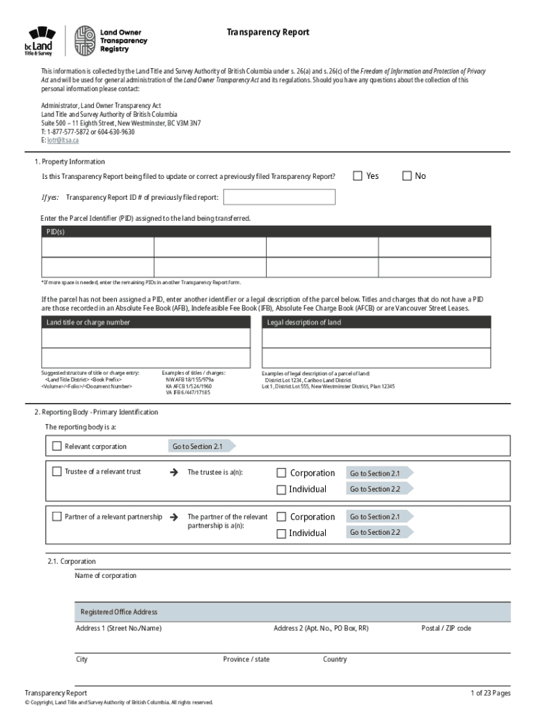
Transparency Reports information is collected by the Land Title and Survey Authority of British Columbia under s. 26(a) and s. 26(c) of the Freedom of Information and Protection of Privacy Act and
We are not affiliated with any brand or entity on this form
Get, Create, Make and Sign interpretation of form land

Edit your interpretation of form land form online
Type text, complete fillable fields, insert images, highlight or blackout data for discretion, add comments, and more.

Add your legally-binding signature
Draw or type your signature, upload a signature image, or capture it with your digital camera.

Share your form instantly
Email, fax, or share your interpretation of form land form via URL. You can also download, print, or export forms to your preferred cloud storage service.
Editing interpretation of form land online
To use our professional PDF editor, follow these steps:
1
Set up an account. If you are a new user, click Start Free Trial and establish a profile.
2
Prepare a file. Use the Add New button to start a new project. Then, using your device, upload your file to the system by importing it from internal mail, the cloud, or adding its URL.
3
Edit interpretation of form land. Rearrange and rotate pages, insert new and alter existing texts, add new objects, and take advantage of other helpful tools. Click Done to apply changes and return to your Dashboard. Go to the Documents tab to access merging, splitting, locking, or unlocking functions.
4
Save your file. Choose it from the list of records. Then, shift the pointer to the right toolbar and select one of the several exporting methods: save it in multiple formats, download it as a PDF, email it, or save it to the cloud.
With pdfFiller, it's always easy to deal with documents.
Uncompromising security for your PDF editing and eSignature needs
Your private information is safe with pdfFiller. We employ end-to-end encryption, secure cloud storage, and advanced access control to protect your documents and maintain regulatory compliance.
How to fill out interpretation of form land

How to fill out interpretation of form land
01
Start by reading the instructions provided with the form to understand the purpose of each section.
02
Carefully review the questions and provide accurate and detailed information.
03
Use a black or blue pen to fill out the form neatly and legibly.
04
Double-check your responses before submitting the form to ensure accuracy.
05
If you are unsure about how to answer a question, seek clarification from the appropriate authority.
06
Sign and date the form where required to validate your responses.
Who needs interpretation of form land?
01
Individuals or entities who own or are interested in purchasing land may need to fill out interpretation of form land.
02
Real estate agents, land surveyors, and government officials involved in land transactions may also need to interpret and fill out this form.
Fill
form
: Try Risk Free
For pdfFiller’s FAQs
Below is a list of the most common customer questions. If you can’t find an answer to your question, please don’t hesitate to reach out to us.
Can I create an electronic signature for signing my interpretation of form land in Gmail?
You may quickly make your eSignature using pdfFiller and then eSign your interpretation of form land right from your mailbox using pdfFiller's Gmail add-on. Please keep in mind that in order to preserve your signatures and signed papers, you must first create an account.
How can I edit interpretation of form land on a smartphone?
The pdfFiller mobile applications for iOS and Android are the easiest way to edit documents on the go. You may get them from the Apple Store and Google Play. More info about the applications here. Install and log in to edit interpretation of form land.
How do I fill out interpretation of form land using my mobile device?
Use the pdfFiller mobile app to complete and sign interpretation of form land on your mobile device. Visit our web page (https://edit-pdf-ios-android.pdffiller.com/) to learn more about our mobile applications, the capabilities you’ll have access to, and the steps to take to get up and running.
What is interpretation of form land?
Interpretation of form land is a document that outlines the details and characteristics of a particular piece of land.
Who is required to file interpretation of form land?
Property owners or individuals responsible for managing the land are required to file interpretation of form land.
How to fill out interpretation of form land?
Interpretation of form land can be filled out by providing accurate information about the land's location, dimensions, classification, and any relevant details.
What is the purpose of interpretation of form land?
The purpose of interpretation of form land is to provide a comprehensive overview of the land for legal, planning, and development purposes.
What information must be reported on interpretation of form land?
Information such as the land's address, size, boundaries, zoning restrictions, and any existing structures must be reported on interpretation of form land.
Fill out your interpretation of form land online with pdfFiller!
pdfFiller is an end-to-end solution for managing, creating, and editing documents and forms in the cloud. Save time and hassle by preparing your tax forms online.

Interpretation Of Form Land is not the form you're looking for?Search for another form here.
Relevant keywords
Related Forms
If you believe that this page should be taken down, please follow our DMCA take down process
here
.
This form may include fields for payment information. Data entered in these fields is not covered by PCI DSS compliance.