
Get the free DOT Form 224-696 Utility Accommodation Application
Show details
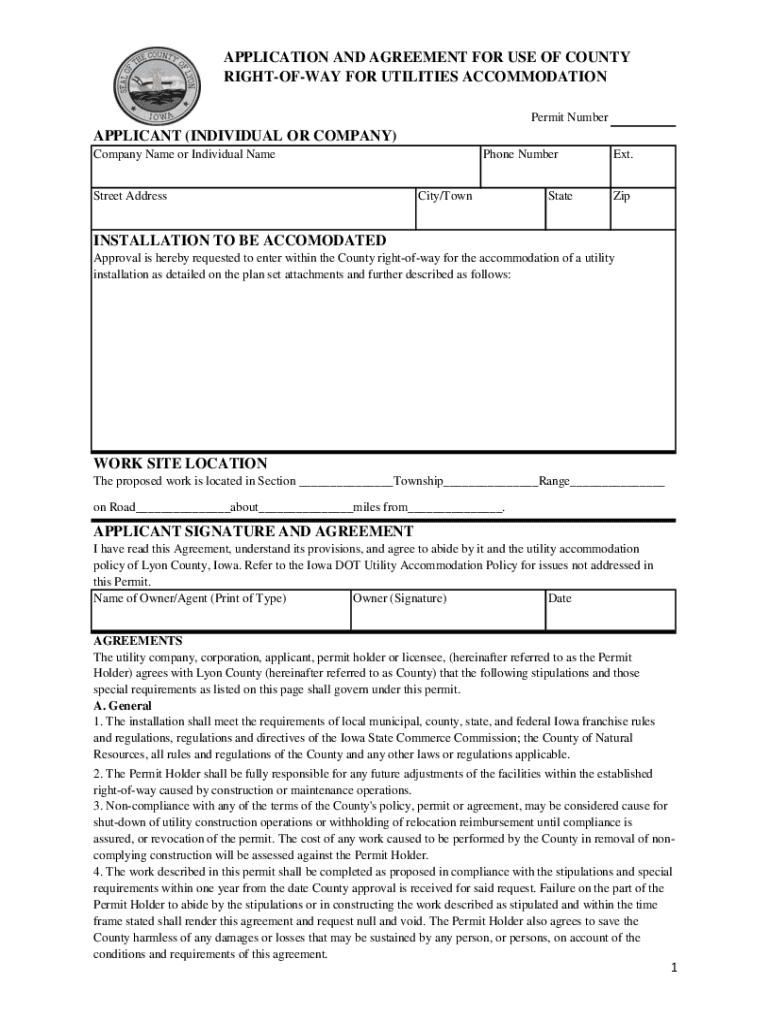
APPLICATION AND AGREEMENT FOR USE OF COUNTY
RIGHTOFWAY FOR UTILITIES ACCOMMODATION
Permit NumberAPPLICANT (INDIVIDUAL OR COMPANY)
Company Name or Individual Name
Street AddressPhone Number
City/TownStateExt.
Installation
We are not affiliated with any brand or entity on this form
Get, Create, Make and Sign dot form 224-696 utility

Edit your dot form 224-696 utility form online
Type text, complete fillable fields, insert images, highlight or blackout data for discretion, add comments, and more.

Add your legally-binding signature
Draw or type your signature, upload a signature image, or capture it with your digital camera.

Share your form instantly
Email, fax, or share your dot form 224-696 utility form via URL. You can also download, print, or export forms to your preferred cloud storage service.
How to edit dot form 224-696 utility online
Here are the steps you need to follow to get started with our professional PDF editor:
1
Log in. Click Start Free Trial and create a profile if necessary.
2
Prepare a file. Use the Add New button to start a new project. Then, using your device, upload your file to the system by importing it from internal mail, the cloud, or adding its URL.
3
Edit dot form 224-696 utility. Add and replace text, insert new objects, rearrange pages, add watermarks and page numbers, and more. Click Done when you are finished editing and go to the Documents tab to merge, split, lock or unlock the file.
4
Save your file. Select it from your list of records. Then, move your cursor to the right toolbar and choose one of the exporting options. You can save it in multiple formats, download it as a PDF, send it by email, or store it in the cloud, among other things.
pdfFiller makes dealing with documents a breeze. Create an account to find out!
Uncompromising security for your PDF editing and eSignature needs
Your private information is safe with pdfFiller. We employ end-to-end encryption, secure cloud storage, and advanced access control to protect your documents and maintain regulatory compliance.
How to fill out dot form 224-696 utility

How to fill out dot form 224-696 utility
01
Obtain a copy of DOT Form 224-696 utility either online or from a local Department of Transportation office.
02
Read the instructions provided on the form carefully before filling it out.
03
Fill in your personal information such as name, address, and contact details in the designated fields.
04
Provide all necessary information about the utility project for which the form is being filled out.
05
Double-check the form for any errors or missing information before submitting it.
06
Submit the completed form according to the instructions provided.
Who needs dot form 224-696 utility?
01
Individuals or organizations involved in utility projects that require approval or oversight from the Department of Transportation.
02
Contractors, engineers, or other professionals working on utility projects that need to comply with regulatory requirements.
03
Government agencies or departments responsible for managing and regulating utility projects within their jurisdiction.
Fill
form
: Try Risk Free
For pdfFiller’s FAQs
Below is a list of the most common customer questions. If you can’t find an answer to your question, please don’t hesitate to reach out to us.
Where do I find dot form 224-696 utility?
It's simple using pdfFiller, an online document management tool. Use our huge online form collection (over 25M fillable forms) to quickly discover the dot form 224-696 utility. Open it immediately and start altering it with sophisticated capabilities.
How do I complete dot form 224-696 utility on an iOS device?
Download and install the pdfFiller iOS app. Then, launch the app and log in or create an account to have access to all of the editing tools of the solution. Upload your dot form 224-696 utility from your device or cloud storage to open it, or input the document URL. After filling out all of the essential areas in the document and eSigning it (if necessary), you may save it or share it with others.
Can I edit dot form 224-696 utility on an Android device?
The pdfFiller app for Android allows you to edit PDF files like dot form 224-696 utility. Mobile document editing, signing, and sending. Install the app to ease document management anywhere.
What is dot form 224-696 utility?
Dot form 224-696 utility is a report filed with the Department of Transportation (DOT) by utility companies to provide information about their operations.
Who is required to file dot form 224-696 utility?
Utility companies are required to file dot form 224-696 utility.
How to fill out dot form 224-696 utility?
Dot form 224-696 utility can be filled out online or on paper by providing required information such as company details, operational data, and financial information.
What is the purpose of dot form 224-696 utility?
The purpose of dot form 224-696 utility is to collect data from utility companies for regulatory and compliance purposes.
What information must be reported on dot form 224-696 utility?
Information such as company name, contact details, service territory, number of customers, revenues, expenses, and operational data must be reported on dot form 224-696 utility.
Fill out your dot form 224-696 utility online with pdfFiller!
pdfFiller is an end-to-end solution for managing, creating, and editing documents and forms in the cloud. Save time and hassle by preparing your tax forms online.

Dot Form 224-696 Utility is not the form you're looking for?Search for another form here.
Relevant keywords
Related Forms
If you believe that this page should be taken down, please follow our DMCA take down process
here
.
This form may include fields for payment information. Data entered in these fields is not covered by PCI DSS compliance.