Get the free Business Application Process - Trico Electric Coop
Show details
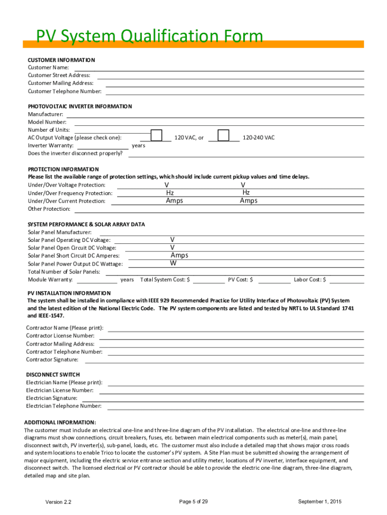
VERSION [2.2]
SEPTEMBER 1, 2015INTERCONNECTION
APPLICATION
(LEASED Grittier Systems)PO Box 930 Marina, Arizona 856530930 (520) 7442944, ext. 1524 www.trico.coop
Trio is an equal opportunity provider
We are not affiliated with any brand or entity on this form
Get, Create, Make and Sign business application process
Edit your business application process form online
Type text, complete fillable fields, insert images, highlight or blackout data for discretion, add comments, and more.
Add your legally-binding signature
Draw or type your signature, upload a signature image, or capture it with your digital camera.
Share your form instantly
Email, fax, or share your business application process form via URL. You can also download, print, or export forms to your preferred cloud storage service.
Editing business application process online
Use the instructions below to start using our professional PDF editor:
1
Set up an account. If you are a new user, click Start Free Trial and establish a profile.
2
Upload a file. Select Add New on your Dashboard and upload a file from your device or import it from the cloud, online, or internal mail. Then click Edit.
3
Edit business application process. Rearrange and rotate pages, add new and changed texts, add new objects, and use other useful tools. When you're done, click Done. You can use the Documents tab to merge, split, lock, or unlock your files.
4
Get your file. Select your file from the documents list and pick your export method. You may save it as a PDF, email it, or upload it to the cloud.
Dealing with documents is always simple with pdfFiller.
Uncompromising security for your PDF editing and eSignature needs
Your private information is safe with pdfFiller. We employ end-to-end encryption, secure cloud storage, and advanced access control to protect your documents and maintain regulatory compliance.
How to fill out business application process
How to fill out business application process
01
Research and gather all necessary information needed for the application process.
02
Fill out the application form accurately and completely.
03
Double-check all information provided in the application form for any errors or missing details.
04
Submit the application form along with any required supporting documents.
05
Follow up with the organization or company regarding the status of your application.
Who needs business application process?
01
Entrepreneurs looking to start a new business
02
Existing business owners seeking to expand or take their business to the next level
03
Individuals applying for business loans or grants
Fill
form
: Try Risk Free
For pdfFiller’s FAQs
Below is a list of the most common customer questions. If you can’t find an answer to your question, please don’t hesitate to reach out to us.
How do I execute business application process online?
Completing and signing business application process online is easy with pdfFiller. It enables you to edit original PDF content, highlight, blackout, erase and type text anywhere on a page, legally eSign your form, and much more. Create your free account and manage professional documents on the web.
How do I make edits in business application process without leaving Chrome?
Install the pdfFiller Google Chrome Extension to edit business application process and other documents straight from Google search results. When reading documents in Chrome, you may edit them. Create fillable PDFs and update existing PDFs using pdfFiller.
Can I sign the business application process electronically in Chrome?
Yes. By adding the solution to your Chrome browser, you may use pdfFiller to eSign documents while also enjoying all of the PDF editor's capabilities in one spot. Create a legally enforceable eSignature by sketching, typing, or uploading a photo of your handwritten signature using the extension. Whatever option you select, you'll be able to eSign your business application process in seconds.
What is business application process?
The business application process is the procedure for submitting an application to start a new business or make changes to an existing business.
Who is required to file business application process?
Any individual or entity looking to establish a new business or modify an existing business is required to file a business application process.
How to fill out business application process?
To fill out a business application process, one must provide details about the business entity, ownership structure, address, contact information, and any other required information as per the application form.
What is the purpose of business application process?
The purpose of the business application process is to formally establish a business or make changes to an existing business in compliance with legal regulations.
What information must be reported on business application process?
The information required on a business application process typically includes details about the business entity, ownership, business activities, address, contact information, and any additional information as requested by the application form.
Fill out your business application process online with pdfFiller!
pdfFiller is an end-to-end solution for managing, creating, and editing documents and forms in the cloud. Save time and hassle by preparing your tax forms online.
Business Application Process is not the form you're looking for?Search for another form here.
Relevant keywords
Related Forms
If you believe that this page should be taken down, please follow our DMCA take down process
here
.
This form may include fields for payment information. Data entered in these fields is not covered by PCI DSS compliance.