Get the free INSPECTION NOTICE (Results/Remedies) MB JB
Show details
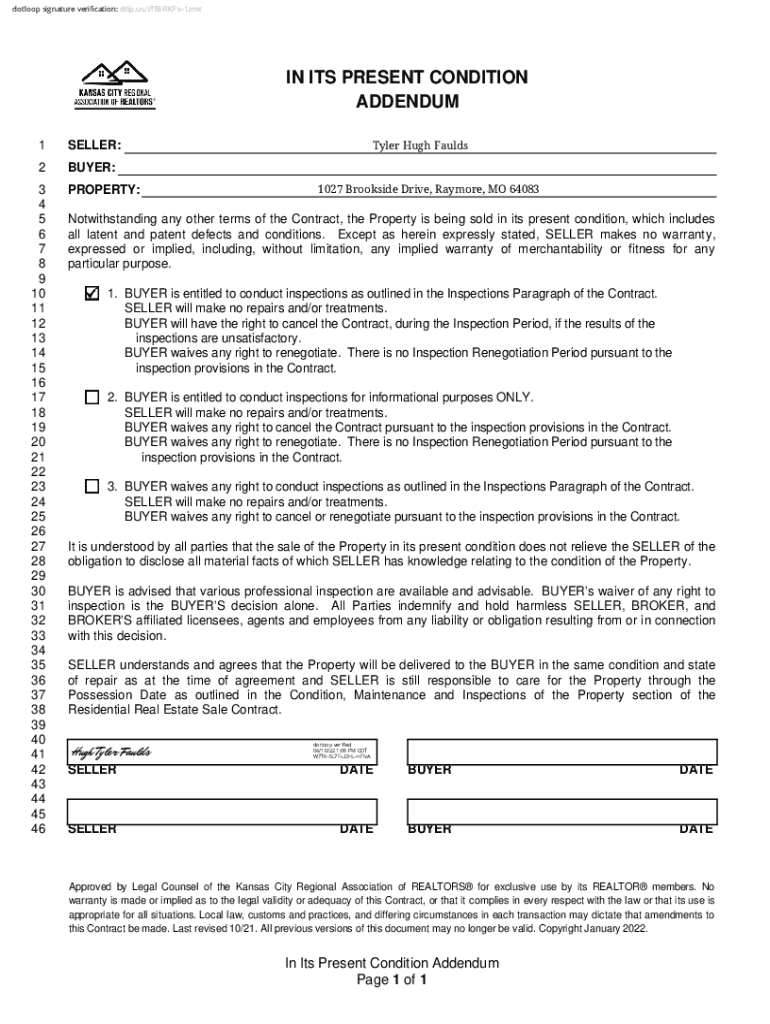
Dot loop signature verification: dtlp.us/zTlBRKPx1zmtIN ITS PRESENT CONDITION ADDENDUM 1SELLER: ___ Tyler Hugh Faulds2BUYER: ___3 4 5 6 7 8 9 10 11 12 13 14 15 16 17 18 19 20 21 22 23 24 25 26 27
We are not affiliated with any brand or entity on this form
Get, Create, Make and Sign inspection notice resultsremedies mb
Edit your inspection notice resultsremedies mb form online
Type text, complete fillable fields, insert images, highlight or blackout data for discretion, add comments, and more.
Add your legally-binding signature
Draw or type your signature, upload a signature image, or capture it with your digital camera.
Share your form instantly
Email, fax, or share your inspection notice resultsremedies mb form via URL. You can also download, print, or export forms to your preferred cloud storage service.
How to edit inspection notice resultsremedies mb online
To use the professional PDF editor, follow these steps below:
1
Log in. Click Start Free Trial and create a profile if necessary.
2
Prepare a file. Use the Add New button. Then upload your file to the system from your device, importing it from internal mail, the cloud, or by adding its URL.
3
Edit inspection notice resultsremedies mb. Add and replace text, insert new objects, rearrange pages, add watermarks and page numbers, and more. Click Done when you are finished editing and go to the Documents tab to merge, split, lock or unlock the file.
4
Get your file. When you find your file in the docs list, click on its name and choose how you want to save it. To get the PDF, you can save it, send an email with it, or move it to the cloud.
With pdfFiller, dealing with documents is always straightforward. Now is the time to try it!
Uncompromising security for your PDF editing and eSignature needs
Your private information is safe with pdfFiller. We employ end-to-end encryption, secure cloud storage, and advanced access control to protect your documents and maintain regulatory compliance.
How to fill out inspection notice resultsremedies mb
How to fill out inspection notice resultsremedies mb
01
Obtain the inspection notice for the specific project or property.
02
Review the results of the inspection to identify any violations or issues.
03
Develop a plan for addressing the identified issues, including any necessary remedies or corrections.
04
Fill out the inspection notice form with details of the results and proposed remedies.
05
Submit the completed inspection notice form to the appropriate regulatory agency or governing body.
Who needs inspection notice resultsremedies mb?
01
Property owners
02
Contractors
03
Construction companies
04
Architects/Engineers
05
Government agencies
Fill
form
: Try Risk Free
For pdfFiller’s FAQs
Below is a list of the most common customer questions. If you can’t find an answer to your question, please don’t hesitate to reach out to us.
How can I manage my inspection notice resultsremedies mb directly from Gmail?
It's easy to use pdfFiller's Gmail add-on to make and edit your inspection notice resultsremedies mb and any other documents you get right in your email. You can also eSign them. Take a look at the Google Workspace Marketplace and get pdfFiller for Gmail. Get rid of the time-consuming steps and easily manage your documents and eSignatures with the help of an app.
Can I create an eSignature for the inspection notice resultsremedies mb in Gmail?
Upload, type, or draw a signature in Gmail with the help of pdfFiller’s add-on. pdfFiller enables you to eSign your inspection notice resultsremedies mb and other documents right in your inbox. Register your account in order to save signed documents and your personal signatures.
Can I edit inspection notice resultsremedies mb on an iOS device?
You certainly can. You can quickly edit, distribute, and sign inspection notice resultsremedies mb on your iOS device with the pdfFiller mobile app. Purchase it from the Apple Store and install it in seconds. The program is free, but in order to purchase a subscription or activate a free trial, you must first establish an account.
What is inspection notice resultsremedies mb?
Inspection notice results/remedies mb is a form used to report the results of inspections and any necessary remedies taken to address any issues found.
Who is required to file inspection notice resultsremedies mb?
Any entity or individual responsible for conducting inspections and implementing remedies as a result of those inspections is required to file the inspection notice results/remedies mb form.
How to fill out inspection notice resultsremedies mb?
The inspection notice results/remedies mb form can usually be filled out online or in paper format, with details of the inspection results and the actions taken to address any issues.
What is the purpose of inspection notice resultsremedies mb?
The purpose of the inspection notice results/remedies mb form is to provide a summary of the results of inspections conducted and the remedies implemented to maintain compliance with regulations or standards.
What information must be reported on inspection notice resultsremedies mb?
Information such as the date of inspection, findings, remedial actions taken, responsible parties, and any follow-up plans must be reported on the inspection notice results/remedies mb form.
Fill out your inspection notice resultsremedies mb online with pdfFiller!
pdfFiller is an end-to-end solution for managing, creating, and editing documents and forms in the cloud. Save time and hassle by preparing your tax forms online.
Inspection Notice Resultsremedies Mb is not the form you're looking for?Search for another form here.
Relevant keywords
Related Forms
If you believe that this page should be taken down, please follow our DMCA take down process
here
.
This form may include fields for payment information. Data entered in these fields is not covered by PCI DSS compliance.