
Get the free State Historic Preservation Office Awards Project Images ... - crawler dep state pa
Show details
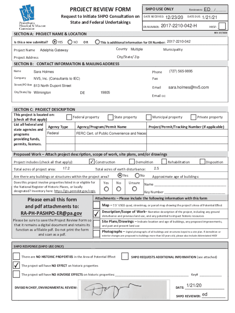
PROJECT REVIEW FORMS USE ONLYRequest to Inmate SHOO Consultant on
State and Federal UndertakingsDATE RECEIVED:
ER NUMBER:Z
ED12/23/20dh1/21/2120172210042H,ZOO
REV: SECTION A: PROJECT NAME & LOCATION
Is
We are not affiliated with any brand or entity on this form
Get, Create, Make and Sign state historic preservation office

Edit your state historic preservation office form online
Type text, complete fillable fields, insert images, highlight or blackout data for discretion, add comments, and more.

Add your legally-binding signature
Draw or type your signature, upload a signature image, or capture it with your digital camera.

Share your form instantly
Email, fax, or share your state historic preservation office form via URL. You can also download, print, or export forms to your preferred cloud storage service.
Editing state historic preservation office online
Follow the steps down below to take advantage of the professional PDF editor:
1
Create an account. Begin by choosing Start Free Trial and, if you are a new user, establish a profile.
2
Prepare a file. Use the Add New button to start a new project. Then, using your device, upload your file to the system by importing it from internal mail, the cloud, or adding its URL.
3
Edit state historic preservation office. Rearrange and rotate pages, add new and changed texts, add new objects, and use other useful tools. When you're done, click Done. You can use the Documents tab to merge, split, lock, or unlock your files.
4
Save your file. Select it from your list of records. Then, move your cursor to the right toolbar and choose one of the exporting options. You can save it in multiple formats, download it as a PDF, send it by email, or store it in the cloud, among other things.
Dealing with documents is simple using pdfFiller. Try it right now!
Uncompromising security for your PDF editing and eSignature needs
Your private information is safe with pdfFiller. We employ end-to-end encryption, secure cloud storage, and advanced access control to protect your documents and maintain regulatory compliance.
How to fill out state historic preservation office

How to fill out state historic preservation office
01
Research the specific requirements and application process for your state's historic preservation office.
02
Complete and submit the necessary forms and documentation. This may include information about the historic property, its significance, and proposed changes or renovations.
03
Be prepared to pay any associated fees for the review process.
04
Wait for a response from the state historic preservation office regarding your application and any necessary approvals or permits.
Who needs state historic preservation office?
01
Property owners looking to make changes or renovations to a historic property.
02
Developers working on projects that involve historic buildings or sites.
03
Architects and contractors involved in projects that require compliance with historic preservation laws and guidelines.
Fill
form
: Try Risk Free
For pdfFiller’s FAQs
Below is a list of the most common customer questions. If you can’t find an answer to your question, please don’t hesitate to reach out to us.
How can I manage my state historic preservation office directly from Gmail?
state historic preservation office and other documents can be changed, filled out, and signed right in your Gmail inbox. You can use pdfFiller's add-on to do this, as well as other things. When you go to Google Workspace, you can find pdfFiller for Gmail. You should use the time you spend dealing with your documents and eSignatures for more important things, like going to the gym or going to the dentist.
How do I edit state historic preservation office straight from my smartphone?
The easiest way to edit documents on a mobile device is using pdfFiller’s mobile-native apps for iOS and Android. You can download those from the Apple Store and Google Play, respectively. You can learn more about the apps here. Install and log in to the application to start editing state historic preservation office.
How do I fill out state historic preservation office on an Android device?
On Android, use the pdfFiller mobile app to finish your state historic preservation office. Adding, editing, deleting text, signing, annotating, and more are all available with the app. All you need is a smartphone and internet.
What is state historic preservation office?
State Historic Preservation Office (SHPO) is a government agency or office responsible for preserving, protecting, and promoting historic resources within a state.
Who is required to file state historic preservation office?
Property owners, developers, and government agencies are typically required to file with the State Historic Preservation Office when working on projects that may impact historic resources.
How to fill out state historic preservation office?
To fill out State Historic Preservation Office forms, you will need to provide detailed information about the project, including the location, historic significance, proposed changes, and any potential impacts on historic resources.
What is the purpose of state historic preservation office?
The main purpose of State Historic Preservation Office is to identify, protect, and preserve historic buildings, sites, and districts for future generations to appreciate and enjoy.
What information must be reported on state historic preservation office?
Information on the project location, historical significance, proposed changes, and potential impacts on historic resources must be reported on State Historic Preservation Office forms.
Fill out your state historic preservation office online with pdfFiller!
pdfFiller is an end-to-end solution for managing, creating, and editing documents and forms in the cloud. Save time and hassle by preparing your tax forms online.

State Historic Preservation Office is not the form you're looking for?Search for another form here.
Relevant keywords
Related Forms
If you believe that this page should be taken down, please follow our DMCA take down process
here
.
This form may include fields for payment information. Data entered in these fields is not covered by PCI DSS compliance.