Get the free Manufactured Home Placement Permit - Benton County Oregon
Show details
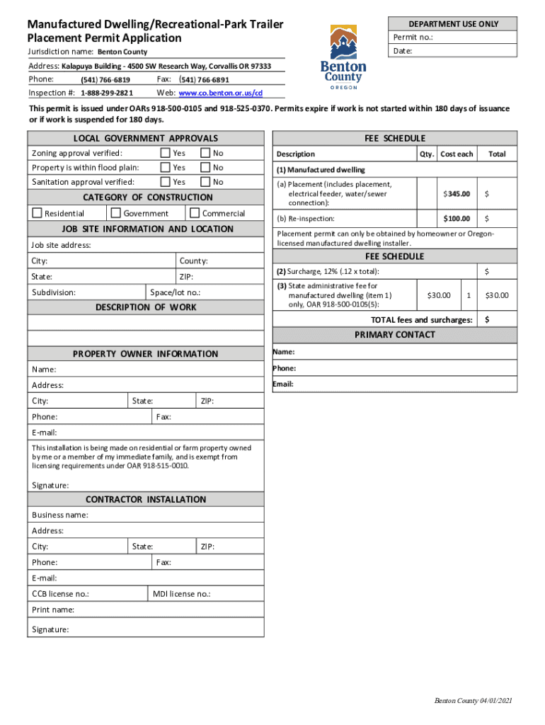
Manufactured Dwelling/Recreational Park Trailer
Placement Permit ApplicationDEPARTMENT USE ONLY
Permit no.:
Date:Jurisdiction name: Benton County
Address: Malaya Building 4500 SW Research Way, Corvallis
We are not affiliated with any brand or entity on this form
Get, Create, Make and Sign manufactured home placement permit
Edit your manufactured home placement permit form online
Type text, complete fillable fields, insert images, highlight or blackout data for discretion, add comments, and more.
Add your legally-binding signature
Draw or type your signature, upload a signature image, or capture it with your digital camera.
Share your form instantly
Email, fax, or share your manufactured home placement permit form via URL. You can also download, print, or export forms to your preferred cloud storage service.
Editing manufactured home placement permit online
To use our professional PDF editor, follow these steps:
1
Log into your account. It's time to start your free trial.
2
Prepare a file. Use the Add New button. Then upload your file to the system from your device, importing it from internal mail, the cloud, or by adding its URL.
3
Edit manufactured home placement permit. Add and replace text, insert new objects, rearrange pages, add watermarks and page numbers, and more. Click Done when you are finished editing and go to the Documents tab to merge, split, lock or unlock the file.
4
Get your file. When you find your file in the docs list, click on its name and choose how you want to save it. To get the PDF, you can save it, send an email with it, or move it to the cloud.
It's easier to work with documents with pdfFiller than you could have believed. You may try it out for yourself by signing up for an account.
Uncompromising security for your PDF editing and eSignature needs
Your private information is safe with pdfFiller. We employ end-to-end encryption, secure cloud storage, and advanced access control to protect your documents and maintain regulatory compliance.
How to fill out manufactured home placement permit
How to fill out manufactured home placement permit
01
Contact the local zoning office to obtain a manufactured home placement permit application form.
02
Fill out the application form completely and accurately, providing all required information such as property address, legal description, and proposed placement location.
03
Include any necessary supporting documentation, such as site plans, building permits, and title documents.
04
Submit the completed application form and supporting documents to the zoning office along with the required fee.
05
Wait for the zoning office to review your application and issue the manufactured home placement permit.
Who needs manufactured home placement permit?
01
Anyone who is looking to place a manufactured home on a specific property will need to obtain a manufactured home placement permit.
Fill
form
: Try Risk Free
For pdfFiller’s FAQs
Below is a list of the most common customer questions. If you can’t find an answer to your question, please don’t hesitate to reach out to us.
How can I send manufactured home placement permit to be eSigned by others?
Once you are ready to share your manufactured home placement permit, you can easily send it to others and get the eSigned document back just as quickly. Share your PDF by email, fax, text message, or USPS mail, or notarize it online. You can do all of this without ever leaving your account.
How do I edit manufactured home placement permit online?
With pdfFiller, you may not only alter the content but also rearrange the pages. Upload your manufactured home placement permit and modify it with a few clicks. The editor lets you add photos, sticky notes, text boxes, and more to PDFs.
Can I edit manufactured home placement permit on an Android device?
With the pdfFiller Android app, you can edit, sign, and share manufactured home placement permit on your mobile device from any place. All you need is an internet connection to do this. Keep your documents in order from anywhere with the help of the app!
What is manufactured home placement permit?
A manufactured home placement permit is a permit that allows for the placement of a manufactured home on a specific piece of land.
Who is required to file manufactured home placement permit?
The property owner or the individual placing the manufactured home on the land is required to file the manufactured home placement permit.
How to fill out manufactured home placement permit?
Manufactured home placement permits can usually be filled out online or in person at the local government office. The form will require information about the property, the manufactured home, and the individuals involved.
What is the purpose of manufactured home placement permit?
The purpose of a manufactured home placement permit is to ensure that the placement of the home complies with local zoning regulations and building codes.
What information must be reported on manufactured home placement permit?
Information that must be reported on a manufactured home placement permit includes details about the property where the home will be placed, the size and type of the manufactured home, and any necessary permits or approvals.
Fill out your manufactured home placement permit online with pdfFiller!
pdfFiller is an end-to-end solution for managing, creating, and editing documents and forms in the cloud. Save time and hassle by preparing your tax forms online.
Manufactured Home Placement Permit is not the form you're looking for?Search for another form here.
Relevant keywords
Related Forms
If you believe that this page should be taken down, please follow our DMCA take down process
here
.
This form may include fields for payment information. Data entered in these fields is not covered by PCI DSS compliance.