Form preview

Get the free P-126 - 115 W Washington - new library - DT-80 - 92-00604

Get Form
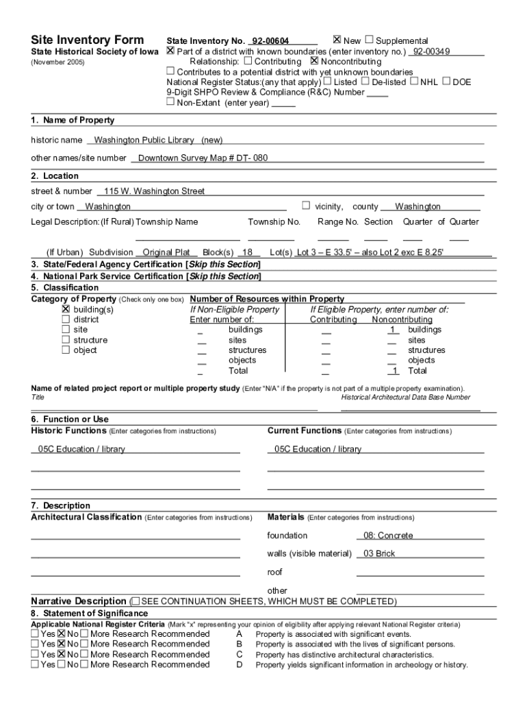
Site Inventory Form State Historical Society of Iowa (November 2005)State Inventory No. 9200604 New Supplemental Part of a district with known boundaries (enter inventory no.) 9200349 Relationship:
We are not affiliated with any brand or entity on this form

Get, Create, Make and Sign p-126 - 115 w

Edit
Edit your p-126 - 115 w form online
Type text, complete fillable fields, insert images, highlight or blackout data for discretion, add comments, and more.
Add
Add your legally-binding signature
Draw or type your signature, upload a signature image, or capture it with your digital camera.
Share
Share your form instantly
Email, fax, or share your p-126 - 115 w form via URL. You can also download, print, or export forms to your preferred cloud storage service.

Editing p-126 - 115 w online

9.5
Ease of Setup
pdfFiller User Ratings on G2
9.0
Ease of Use
pdfFiller User Ratings on G2
To use our professional PDF editor, follow these steps:
1
Create an account. Begin by choosing Start Free Trial and, if you are a new user, establish a profile.
2
Upload a document. Select Add New on your Dashboard and transfer a file into the system in one of the following ways: by uploading it from your device or importing from the cloud, web, or internal mail. Then, click Start editing.
3
Edit p-126 - 115 w. Rearrange and rotate pages, add and edit text, and use additional tools. To save changes and return to your Dashboard, click Done. The Documents tab allows you to merge, divide, lock, or unlock files.
4
Save your file. Select it from your list of records. Then, move your cursor to the right toolbar and choose one of the exporting options. You can save it in multiple formats, download it as a PDF, send it by email, or store it in the cloud, among other things.
With pdfFiller, dealing with documents is always straightforward.

Uncompromising security for your PDF editing and eSignature needs

Your private information is safe with pdfFiller. We employ end-to-end encryption, secure cloud storage, and advanced access control to protect your documents and maintain regulatory compliance.
GDPR
AICPA SOC 2
PCI
HIPAA
CCPA
FDA

How to fill out p-126 - 115 w

Illustration

How to fill out p-126 - 115 w

01
Begin by gathering all necessary information needed for the form p-126 - 115 w.
02
Make sure to fill out each section of the form accurately and completely.
03
Double-check all information before submitting the form to ensure accuracy.
04
Follow any specific instructions or guidelines provided for filling out the form.

Who needs p-126 - 115 w?

01
Individuals who are required to complete form p-126 - 115 w for a specific purpose or organization.
02
Organizations or companies that request this form as part of their application or registration process.
Fill form : Try Risk Free
Users Most Likely To Recommend - Summer 2025
Grid Leader in Small-Business - Summer 2025
High Performer - Summer 2025
Regional Leader - Summer 2025
Easiest To Do Business With - Summer 2025
Best Meets Requirements- Summer 2025
Rate the form
4.5
Satisfied
40 Votes

For pdfFiller’s FAQs

Below is a list of the most common customer questions. If you can’t find an answer to your question, please don’t hesitate to reach out to us.

When you're ready to share your p-126 - 115 w, you can swiftly email it to others and receive the eSigned document back. You may send your PDF through email, fax, text message, or USPS mail, or you can notarize it online. All of this may be done without ever leaving your account.
The pdfFiller mobile app makes it simple to design and fill out legal paperwork. Complete and sign p-126 - 115 w and other papers using the app. Visit pdfFiller's website to learn more about the PDF editor's features.
Create, modify, and share p-126 - 115 w using the pdfFiller iOS app. Easy to install from the Apple Store. You may sign up for a free trial and then purchase a membership.
p-126 - 115 w is a tax form used for reporting income and expenses related to rental properties.
Individuals or businesses who own rental properties and earn rental income are required to file p-126 - 115 w.
You can fill out p-126 - 115 w by providing details of your rental income, expenses, and other relevant information as requested on the form.
The purpose of p-126 - 115 w is to report rental income and expenses to the tax authorities for taxation purposes.
You must report details of your rental income, expenses, and any other relevant financial information related to your rental properties on p-126 - 115 w.
Fill out your p-126 - 115 w online with pdfFiller!

pdfFiller is an end-to-end solution for managing, creating, and editing documents and forms in the cloud. Save time and hassle by preparing your tax forms online.

Get started now
Form preview
If you believe that this page should be taken down, please follow our DMCA take down process here .
This form may include fields for payment information. Data entered in these fields is not covered by PCI DSS compliance.